Prodej rodinného domu 180 m², Horní Planá - Pernek
Dvougenerační dům po kompletní rekonstrukci (2024) – plně vybavený, připravený k bydlení či pronájmu
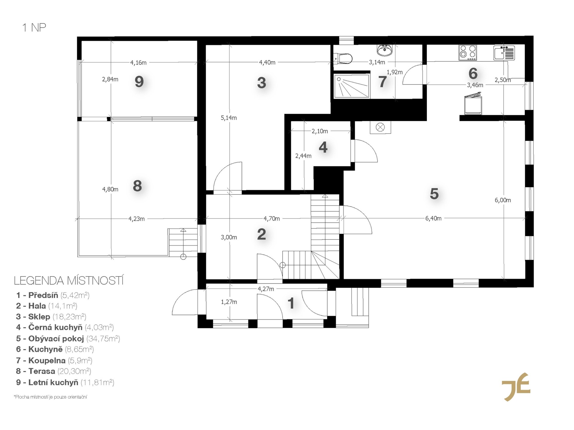
Na úpatí Šumavy, jen pár minut od Lipna, nabízíme k prodeji unikátní dvougenerační rodinný dům v obci Pernek. Stavba z roku 1836 prošla v letech 2024 kompletní rekonstrukcí – zůstaly jen obvodové zdi a některé nosné prvky, vše ostatní je nové. Dům se prodává kompletně zařízený.
Hlavní výhody:
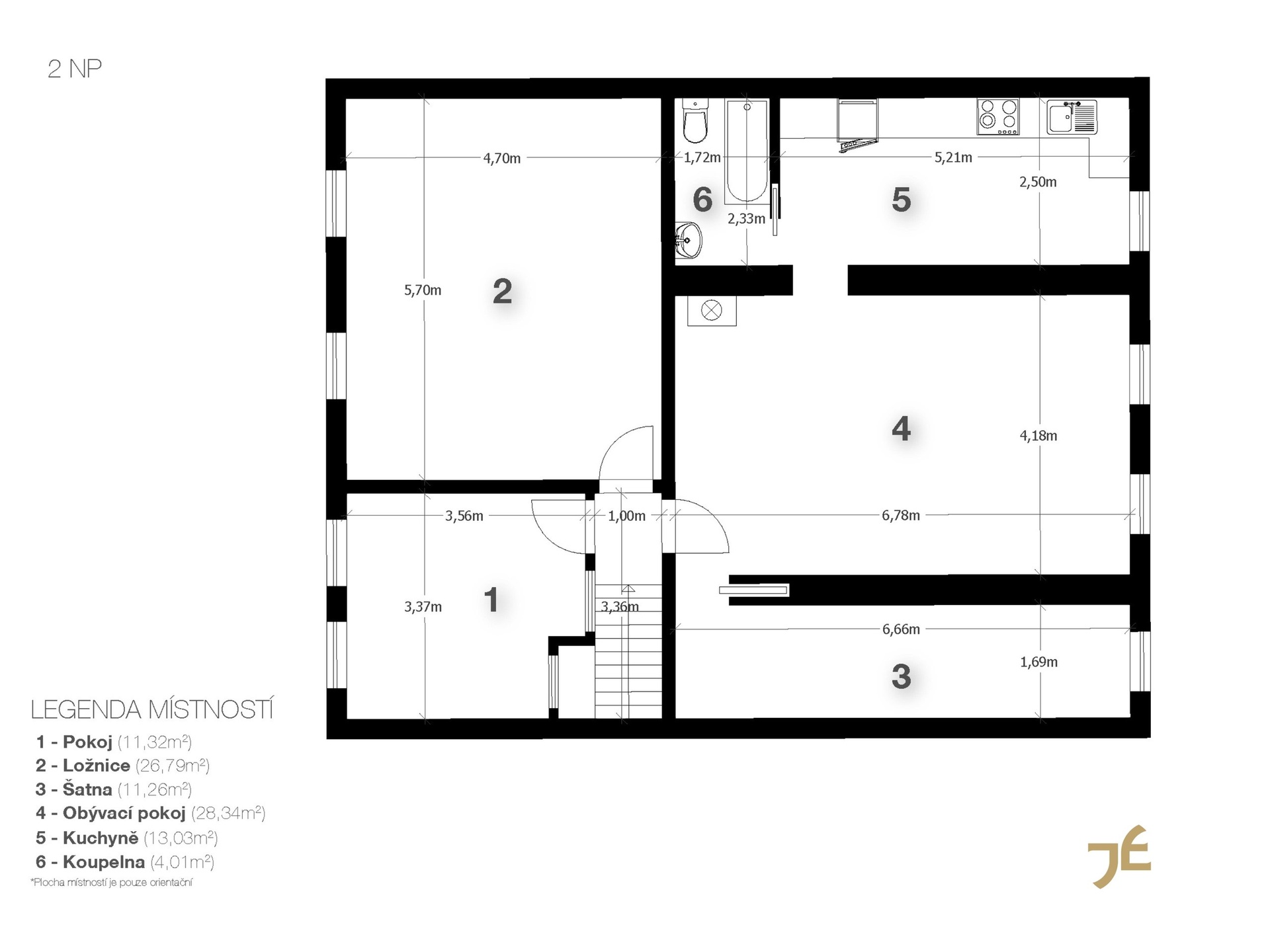
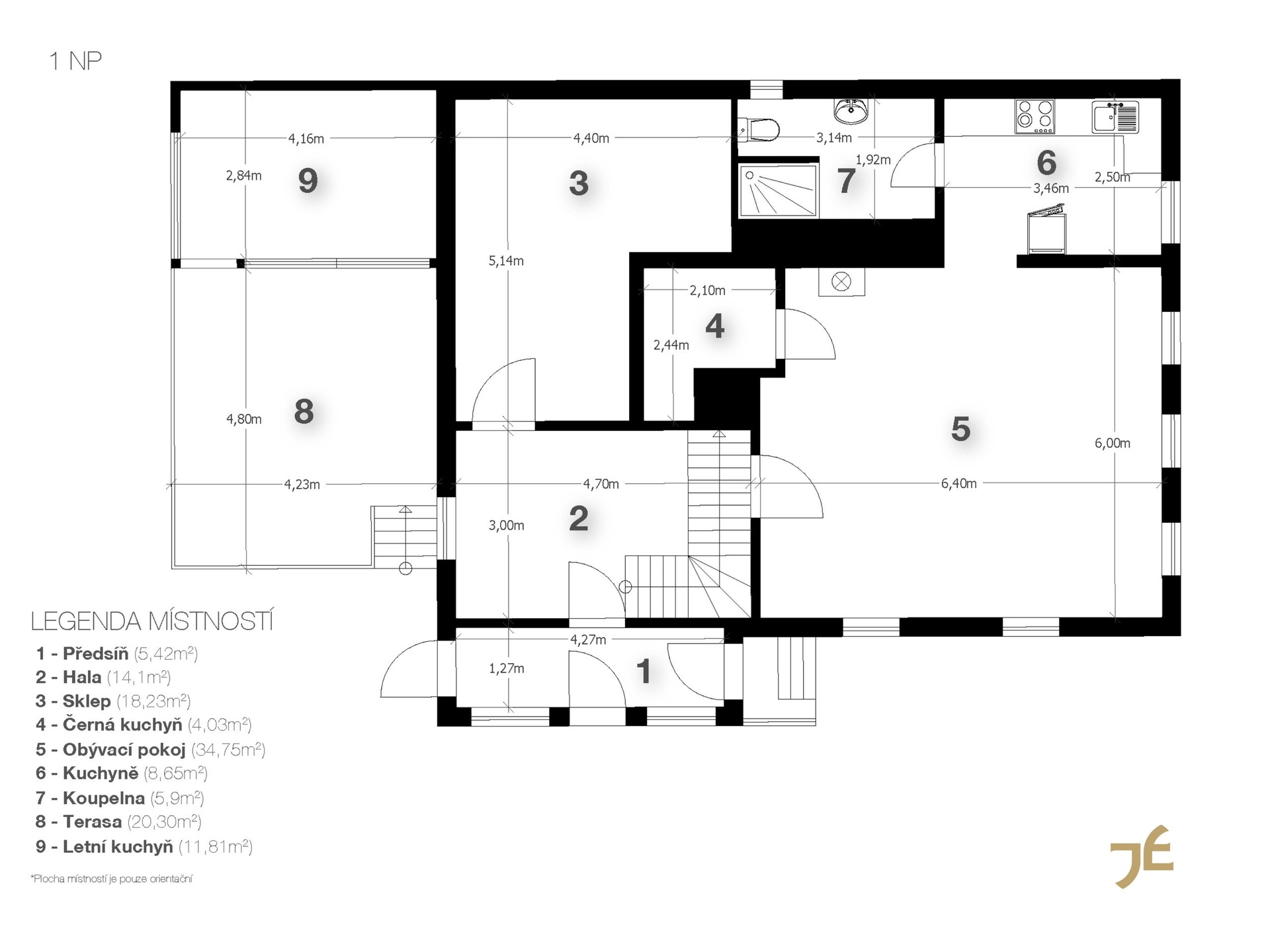
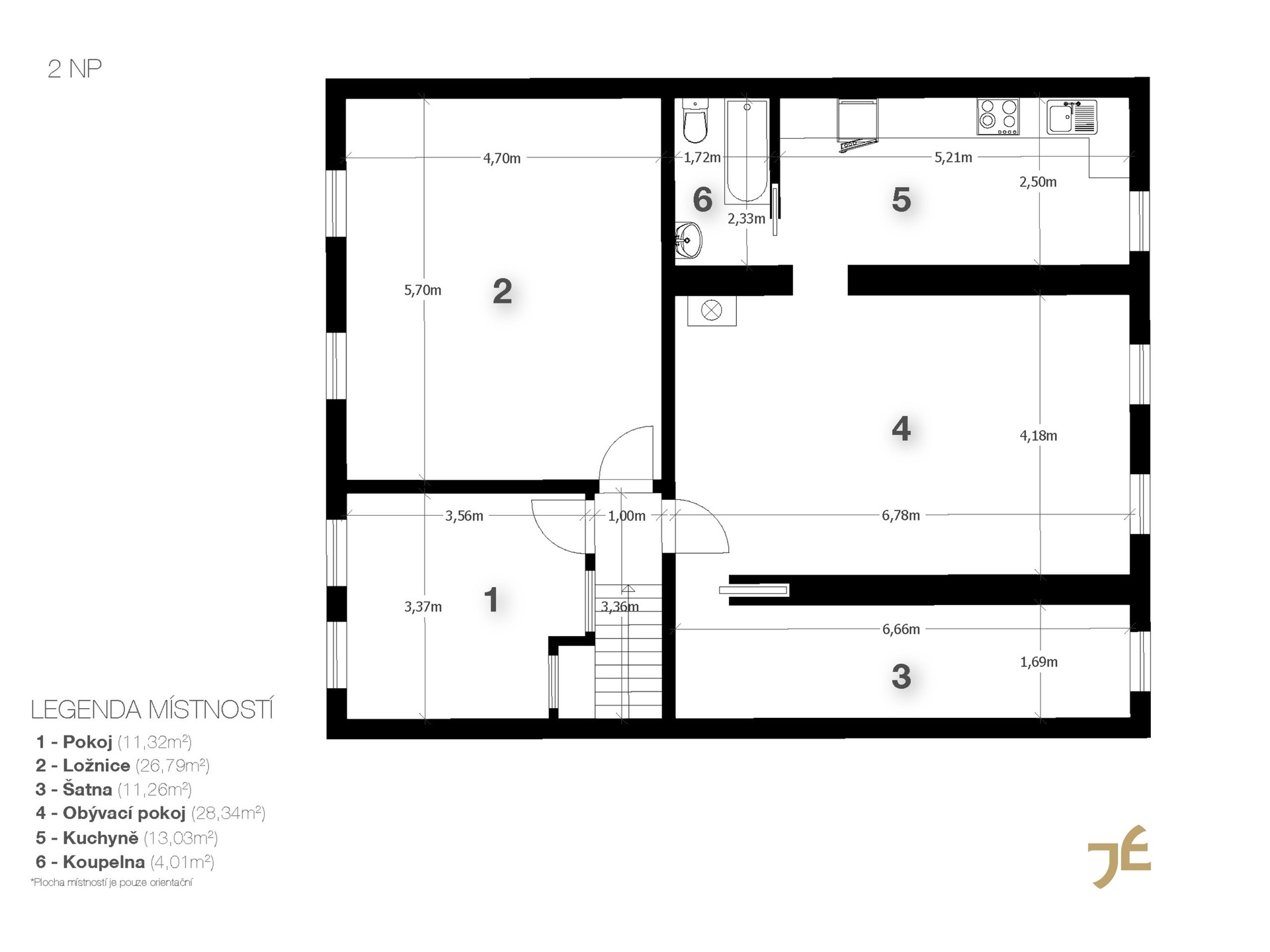
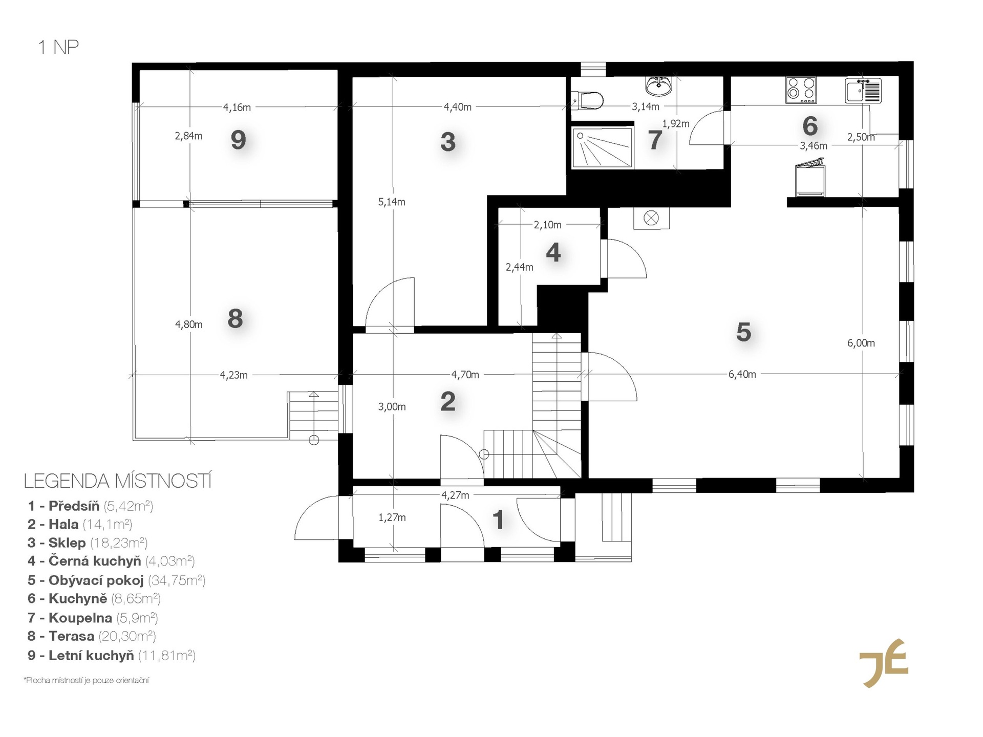
- 2 samostatné jednotky: 1+1 (55 m²) v přízemí a 3+1 (95 m²) v 1. patře se šatnou
- každé patro má vlastní kuchyň a koupelnu s WC
- centrální komín, v obou patrech krbová kamna
- nové rozvody, elektroinstalace, podlahy, stropy, izolace, okna s trojsklem (imitace dřeva) a nová střecha (tašky BRAMAC)
- fasáda domu je od zahrady izolována (10 cm), izolace stropu pod půdou (35 - 38 cm), izolací vyfoukané stropy mezi přízemím a 1. NP plní i zvukovou izolaci proti otřesům
- 2 elektrické kotle s dálkovým ovládáním přes telefon
- půda 120 m² s možností vestavby
- sklep (18 m²) s klenutým stropem a historickými prvky
Exteriér:
- oplocený pozemek s upravenou zahradou
- 2 krytá parkovací stání
- částečně zastřešená terasa a letní kuchyně
Lokalita:
Pernek se nachází jen 5 minut od Horní Plané s písečnou pláží a přívozem na protější břeh Lipna. V blízkosti je lyžařský areál Hochficht (skibusová zastávka přímo u domu). Dostupnost zajišťuje i vlakové spojení.
Pro koho je dům ideální:
- dvougenerační bydlení
- investice s možností pronájmu dvou apartmánů v turisticky vyhledávané oblasti.
Pomocí naší hypoteční kalkulačky si můžete udělat orientační představu o výši měsíčních splátek hypotéky. O vše ostatní se pak postaráme my ve spolupráci s našimi obchodními partnery.
40 042 Kč
* Odhadovaná měsíční splátka vychází z výše úvěru Kč s pevnou úrokovou sazbou % po celou dobu trvání úvěru.
Uživatel serveru RealityMIX.cz (dále jen „Server“) dostupného na internetové adrese (URL) https://www.realitymix.cz, který provozuje společnost DALTEN media s.r.o., se sídlem Na Harfě 916/9a, Praha 9, 190 00, IČO: 271 35 306 (dále jen „Správce“) jako provozovateli tohoto Serveru uděluje svůj výslovný souhlas v souladu s ustanovením § 5 zákona č. 101/2000 Sb. O ochraně osobních údajů a o změně některých zákonů, v platném znění (dále jen „zákon o ochraně osobních údajů“), se zpracováním uživatelem poskytnutých osobních údajů a dalších dat.
Uživatel poskytuje Správci osobní údaje v rozsahu: jméno, příjmení, e-mailová adresa, telefonický kontakt a další data, a to z důvodu projeveného zájmu o nemovitost, kde prostřednictvím služby Serveru Správce osloví Uživatel inzerenta uvedeného v detailu
nemovitosti - Bc. Šimon Jelínek - realitní makléř (IČ 87830809) se zájmem o jeho služby.
Uživatel tyto osobní údaje poskytuje dobrovolně a bere na vědomí, že součástí služeb Správce, které Správce Uživateli poskytuje, je vyhledání všech Uživateli vyhovujících (dle parametrů - cena, typ nemovitosti, lokalita atd.) nemovitostí. Správce za tímto účelem provozuje aplikace Hlídací pes a newsletter. Tyto služby je možné z každého zaslaného emailu odhlásit. Souhlas se zpracováním osobních údajů Uživatel poskytuje Správci na dobu neurčitou s tím, že svůj udělený souhlas může Uživatel kdykoliv na drese správce info@realitymix.cz odvolat. Správce garantuje Uživateli i další práva uvedené v ustanovení §11 a §21 zákoba č. 101/200 Sb. Ve znění pozdějších předpisů.
Více informací o zpracování údajů získáte zde (realitymix.cz/zasady-ochrany-osobnich-udaju)