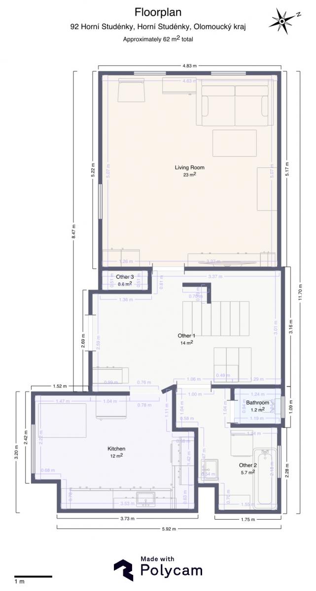
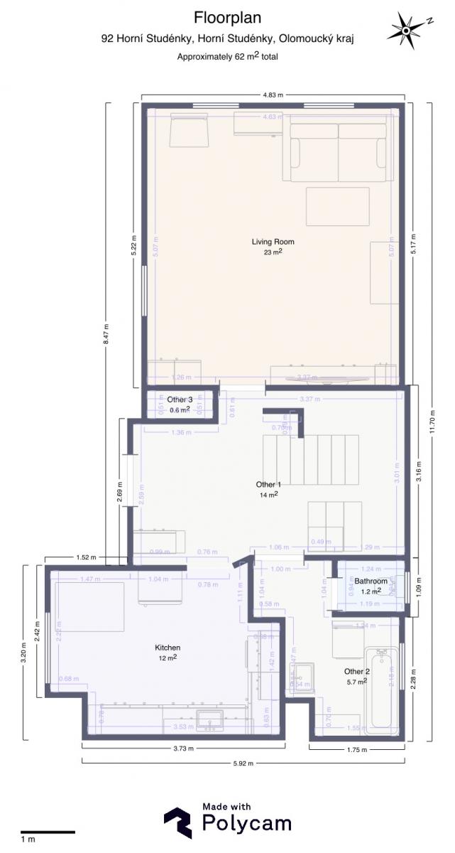
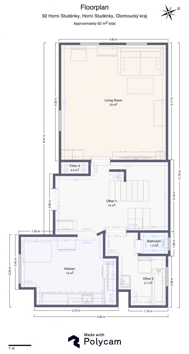
Rodinný dům, Horní Studénky | 135 m | pozemek 1 058 m | garáž, pergola
Nabízíme k prodeji rodinný dům v obci Horní Studénky (okres Šumperk) s užitnou plochou cca 135 m a pozemkem 1 058 m. Praktické zázemí pro bydlení i rekreaci, k dispozici garáž a pergola.
Základní informace
Lokalita: Horní Studénky (okres Šumperk)
Užitná plocha: cca 135 m
Pozemek: 1 058 m
Využití: trvalé bydlení / rekreace
Exteriér a zázemí
Pergola pro venkovní posezení
Garáž
Pozemek vhodný pro zahradu, relax i praktické využití
Dopravní dostupnost
Autobusová zastávka: Horní Studénky, rozc.
Časy spojů doplníme dle požadovaného dne a času
Lyžování v okolí (do 30 km)
Ski areál Buková hora (Červená Voda / Čenkovice)
(Sem doplníme další areály/vleky do 30 km, jakmile je upřesníš)
Prohlídka
Pro více informací a domluvení prohlídky nás kontaktujte.
Pomocí naší hypoteční kalkulačky si můžete udělat orientační představu o výši měsíčních splátek hypotéky. O vše ostatní se pak postaráme my ve spolupráci s našimi obchodními partnery.
15 750 Kč
* Odhadovaná měsíční splátka vychází z výše úvěru Kč s pevnou úrokovou sazbou % po celou dobu trvání úvěru.
Uživatel serveru RealityMIX.cz (dále jen „Server“) dostupného na internetové adrese (URL) https://www.realitymix.cz, který provozuje společnost DALTEN media s.r.o., se sídlem Na Harfě 916/9a, Praha 9, 190 00, IČO: 271 35 306 (dále jen „Správce“) jako provozovateli tohoto Serveru uděluje svůj výslovný souhlas v souladu s ustanovením § 5 zákona č. 101/2000 Sb. O ochraně osobních údajů a o změně některých zákonů, v platném znění (dále jen „zákon o ochraně osobních údajů“), se zpracováním uživatelem poskytnutých osobních údajů a dalších dat.
Uživatel poskytuje Správci osobní údaje v rozsahu: jméno, příjmení, e-mailová adresa, telefonický kontakt a další data, a to z důvodu projeveného zájmu o nemovitost, kde prostřednictvím služby Serveru Správce osloví Uživatel inzerenta uvedeného v detailu
nemovitosti - Moravia service R.K s.r.o. (IČ 07966806) se zájmem o jeho služby.
Uživatel tyto osobní údaje poskytuje dobrovolně a bere na vědomí, že součástí služeb Správce, které Správce Uživateli poskytuje, je vyhledání všech Uživateli vyhovujících (dle parametrů - cena, typ nemovitosti, lokalita atd.) nemovitostí. Správce za tímto účelem provozuje aplikace Hlídací pes a newsletter. Tyto služby je možné z každého zaslaného emailu odhlásit. Souhlas se zpracováním osobních údajů Uživatel poskytuje Správci na dobu neurčitou s tím, že svůj udělený souhlas může Uživatel kdykoliv na drese správce info@realitymix.cz odvolat. Správce garantuje Uživateli i další práva uvedené v ustanovení §11 a §21 zákoba č. 101/200 Sb. Ve znění pozdějších předpisů.
Více informací o zpracování údajů získáte zde (realitymix.cz/zasady-ochrany-osobnich-udaju)