Polyfunkční objekt v srdci nové lokality v Horoušanech
Hledáte místo, kam v této uspěchané době uložit své peníze, nebo najít ideální investici? Pak jste zde správně. Přesně pro vaše potřeby zde stavíme polyfunkční dům v nové lokalitě obce Horoušany 2 kilometry od Nehvizd a velmi blízko budoucímu terminálu pro vysokorychlostní vlakovou dopravu Praha Východ. Budova je navržena v nízkoenergetickém standartu provedení s důrazem na design i funkčnost. Nachází se v lokalitě, kde již postupně vzniká přes 140 domů s rodinami a dále se bude rozvíjet.
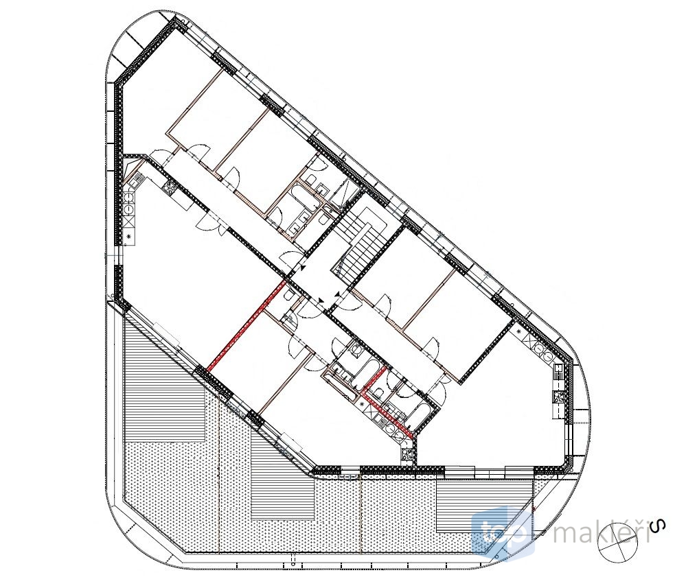
V přízemí je situována soukromá mateřská školka s kavárnou, ordinace pro lékaře a prostor pro lékárnu (možno upravit na druhou ordinaci). V patře jsou aktuálně koncipovány 3 bytové jednotky s velkorysými terasami dispozičně řešené jako 2+kk, 3+kk a 4+kk. Vše dostanete za vaše peníze v kompletním dokončeném stavu. Součástí projektu jsou i venkovní parkovací plochy a další potřebné vybavení.
Disponuje v číslech dvěma podlažími a celkovou zastavěnou plochou 438m² a užitnou plochou 747m². Celá parcela má plochu 2192m² a nabízí 20 míst k parkování.
Dostupnost je vynikající, jelikož se nachází poblíž dálnice, silnice, budoucího vlakového nádraží a autobusové zastávky. Telekomunikační připojení je také k dispozici v podobě vysokorychlostního internetového připojení.
Celkově lze říci, že tento objekt nabízí mnoho výhod pro investory, kteří hledají výnosnou investici v atraktivní lokalitě.
Pojďte se se mnou potkat a získat více informací o vaší nové investici.
Pomocí naší hypoteční kalkulačky si můžete udělat orientační představu o výši měsíčních splátek hypotéky. O vše ostatní se pak postaráme my ve spolupráci s našimi obchodními partnery.
255 070 Kč
* Odhadovaná měsíční splátka vychází z výše úvěru Kč s pevnou úrokovou sazbou % po celou dobu trvání úvěru.
Uživatel serveru RealityMIX.cz (dále jen „Server“) dostupného na internetové adrese (URL) https://www.realitymix.cz, který provozuje společnost DALTEN media s.r.o., se sídlem Na Harfě 916/9a, Praha 9, 190 00, IČO: 271 35 306 (dále jen „Správce“) jako provozovateli tohoto Serveru uděluje svůj výslovný souhlas v souladu s ustanovením § 5 zákona č. 101/2000 Sb. O ochraně osobních údajů a o změně některých zákonů, v platném znění (dále jen „zákon o ochraně osobních údajů“), se zpracováním uživatelem poskytnutých osobních údajů a dalších dat.
Uživatel poskytuje Správci osobní údaje v rozsahu: jméno, příjmení, e-mailová adresa, telefonický kontakt a další data, a to z důvodu projeveného zájmu o nemovitost, kde prostřednictvím služby Serveru Správce osloví Uživatel inzerenta uvedeného v detailu
nemovitosti - TOP makléři (IČ 04081170) se zájmem o jeho služby. Tato společnost je součástí seskupení/sítě/franšízového modelu realitních kanceláří, jejich seznam můžete zobrazit kliknutím na tento odkaz.
4 PROPERTY Plzeň (IČ 034 79 439) , TOP makléři (IČ 04081170)
Uživatel tyto osobní údaje poskytuje dobrovolně a bere na vědomí, že součástí služeb Správce, které Správce Uživateli poskytuje, je vyhledání všech Uživateli vyhovujících (dle parametrů - cena, typ nemovitosti, lokalita atd.) nemovitostí. Správce za tímto účelem provozuje aplikace Hlídací pes a newsletter. Tyto služby je možné z každého zaslaného emailu odhlásit. Souhlas se zpracováním osobních údajů Uživatel poskytuje Správci na dobu neurčitou s tím, že svůj udělený souhlas může Uživatel kdykoliv na drese správce info@realitymix.cz odvolat. Správce garantuje Uživateli i další práva uvedené v ustanovení §11 a §21 zákoba č. 101/200 Sb. Ve znění pozdějších předpisů.
Více informací o zpracování údajů získáte zde (realitymix.cz/zasady-ochrany-osobnich-udaju)