Rodinný dům 5+1 s garáží a velkou zahradou - Hostín
Nabízím k prodeji rodinný dům 5+kk s garáží a zahradou, na klidném místě v centru obce Hostín. Bydlete v obci, která byla v roce 2017 vyhlášena Vesnicí roku, kdy získala Zelenou stuhu za péči o zeleň a životní prostředí.
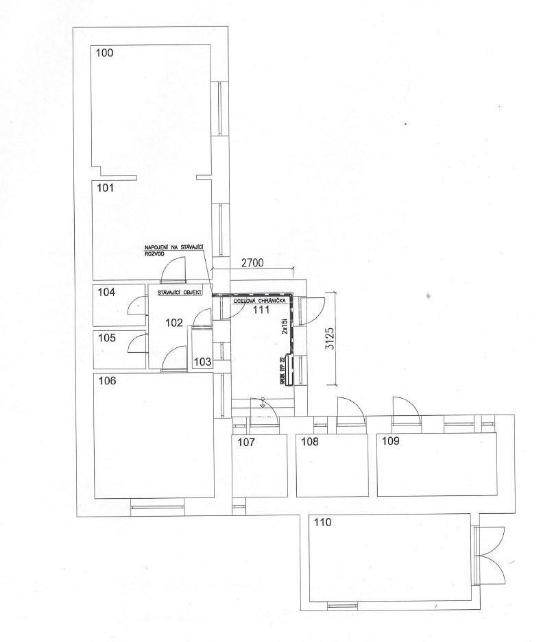
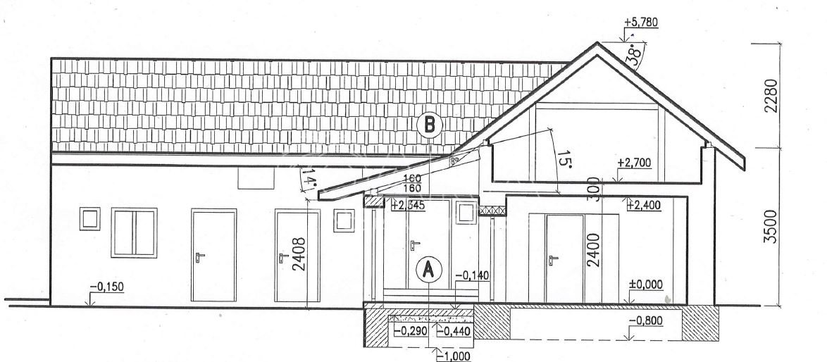
Dispozice domu na konci slepé ulice, který v roce 2012 prošel zdařilou rekonstrukcí. V přízemí, kde zůstane většina vybavení: vstupní chodba se šatnou, obývací pokoj spojený s kuchyní a vstupem do zadní zahrady se vzrostlými stromy, technická místnost, ložnice, koupelna s vanou a samostatné WC. V horním patře tři místnosti, tedy dva pokoje a pracovna se skladem, kde se dá udělat další obytná místnost. Venku sklad a garáž.
• Celková velikost pozemku 919 m2.
• Zastavěná plocha 199 m2.
• Přední a zadní zahrada o celkové velikosti 720 m2.
• Na zahradě ovocné stromy a květiny.
• Vytápění tepelným čerpadlem Daikin (vzduch /vzduch), v přízemí podlahové topení a krb v obývacím pokoji.
• Napojeno na elektřinu, obecní vodovod a septik.
• V obci oblíbená hospůdka, volnočasový areál s rybníkem, dětské a tenisové hřiště, lesy plné hub.
Vhodné k trvalému bydlení či rekreaci. Na nemovitosti nevázne žádné zástavní právo, ani jiná překážka rychlého prodeje. Možnost financování hypotečním úvěrem, se kterým Vám rádi pomůžeme. Více informací na níže uvedeném kontaktu.
Pomocí naší hypoteční kalkulačky si můžete udělat orientační představu o výši měsíčních splátek hypotéky. O vše ostatní se pak postaráme my ve spolupráci s našimi obchodními partnery.
48 099 Kč
* Odhadovaná měsíční splátka vychází z výše úvěru Kč s pevnou úrokovou sazbou % po celou dobu trvání úvěru.
Uživatel serveru RealityMIX.cz (dále jen „Server“) dostupného na internetové adrese (URL) https://www.realitymix.cz, který provozuje společnost DALTEN media s.r.o., se sídlem Na Harfě 916/9a, Praha 9, 190 00, IČO: 271 35 306 (dále jen „Správce“) jako provozovateli tohoto Serveru uděluje svůj výslovný souhlas v souladu s ustanovením § 5 zákona č. 101/2000 Sb. O ochraně osobních údajů a o změně některých zákonů, v platném znění (dále jen „zákon o ochraně osobních údajů“), se zpracováním uživatelem poskytnutých osobních údajů a dalších dat.
Uživatel poskytuje Správci osobní údaje v rozsahu: jméno, příjmení, e-mailová adresa, telefonický kontakt a další data, a to z důvodu projeveného zájmu o nemovitost, kde prostřednictvím služby Serveru Správce osloví Uživatel inzerenta uvedeného v detailu
nemovitosti - QARA s.r.o. (IČ 01740113) se zájmem o jeho služby. Tato společnost je součástí seskupení/sítě/franšízového modelu realitních kanceláří, jejich seznam můžete zobrazit kliknutím na tento odkaz.
QARA s.r.o. Ostrava (IČ 01740113) , QARA s.r.o. Brno (IČ 01740113) , QARA s.r.o. (IČ 01740113)
Uživatel tyto osobní údaje poskytuje dobrovolně a bere na vědomí, že součástí služeb Správce, které Správce Uživateli poskytuje, je vyhledání všech Uživateli vyhovujících (dle parametrů - cena, typ nemovitosti, lokalita atd.) nemovitostí. Správce za tímto účelem provozuje aplikace Hlídací pes a newsletter. Tyto služby je možné z každého zaslaného emailu odhlásit. Souhlas se zpracováním osobních údajů Uživatel poskytuje Správci na dobu neurčitou s tím, že svůj udělený souhlas může Uživatel kdykoliv na drese správce info@realitymix.cz odvolat. Správce garantuje Uživateli i další práva uvedené v ustanovení §11 a §21 zákoba č. 101/200 Sb. Ve znění pozdějších předpisů.
Více informací o zpracování údajů získáte zde (realitymix.cz/zasady-ochrany-osobnich-udaju)