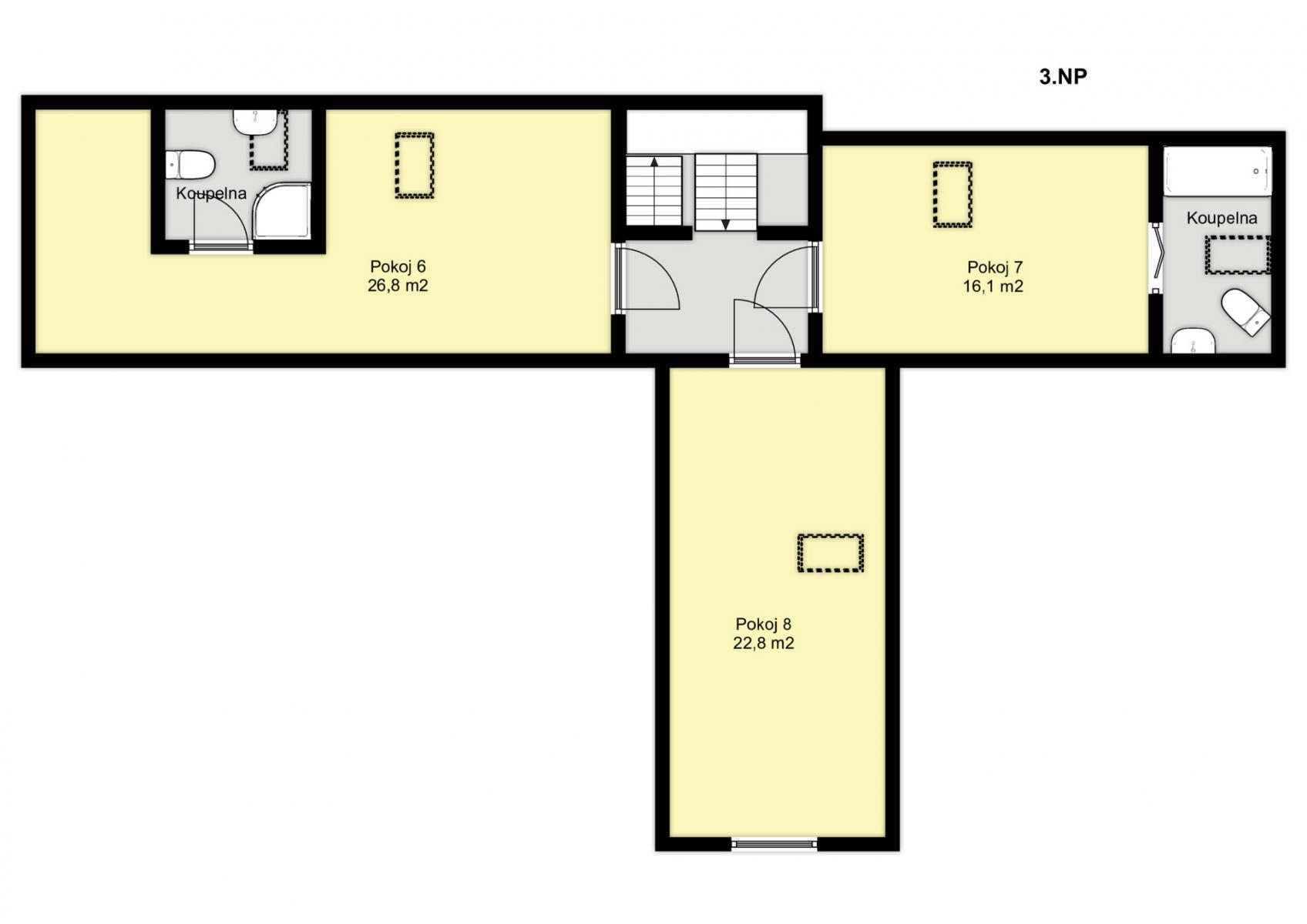
dovoluji si Vám nabídnout ke koupi stylový horský pension U Jelena, který se nachází na okraji malebné vesnice Hraběšice. Pension nabízí 9 pokojů s celkovou ubytovací kapacitou 35 pevných lůžek s možností 8 přistýlek. Všechny pokoje mají vlastní sociální zázemí, TV, Wi-fi.
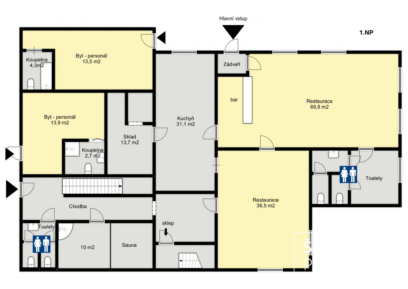
K penzionu náleží i restaurace s velkými prostory pro usazení ubytovaných hostů i kolemjdoucích zákazníků. Součástí restaurace je vybavená kuchyně a bar. Do dalšího vybavení objektu spadá také finská sauna, hřiště s umělým povrchem, venkovní posezení, ohniště, gril a parkoviště. Kromě zázemí pro hosty nemovitost disponuje také ubytováním pro zaměstnance, stodolou a sklepením.
Venkovní prostory pensionu skýtají nepřeberné možnosti vyžití a to v letních i zimních měsících. Na dohled je Skipark Hraběšice se čtyřmi sjezdovkami. V dojezdové vzdálenosti jsou pak další skirareály, například Kouty nad Desnou, Klepáčov nebo Branná. Okolí je přímo pohádkové s ideálním terénem pro cyklistiku či turistiku. Zdejší lesy jsou plné hub a zážitkem je rovněž koupání ve 4km vzdálené přehradě Na Krásném.
Ze zajímavých míst v okolí stojí za to navštívit například 7km vzdálené malebné město Šumperk, zámek Sobotní, zříceninu hradu Rabštejn, Veterán muzeum a ZOO v Rapotíně, zámek Velké Losiny apod.
Pro prohlídku, či více informací mě neváhejte kontaktovat.
Pomocí naší hypoteční kalkulačky si můžete udělat orientační představu o výši měsíčních splátek hypotéky. O vše ostatní se pak postaráme my ve spolupráci s našimi obchodními partnery.
30 365 Kč
* Odhadovaná měsíční splátka vychází z výše úvěru Kč s pevnou úrokovou sazbou % po celou dobu trvání úvěru.
Uživatel serveru RealityMIX.cz (dále jen „Server“) dostupného na internetové adrese (URL) https://www.realitymix.cz, který provozuje společnost DALTEN media s.r.o., se sídlem Na Harfě 916/9a, Praha 9, 190 00, IČO: 271 35 306 (dále jen „Správce“) jako provozovateli tohoto Serveru uděluje svůj výslovný souhlas v souladu s ustanovením § 5 zákona č. 101/2000 Sb. O ochraně osobních údajů a o změně některých zákonů, v platném znění (dále jen „zákon o ochraně osobních údajů“), se zpracováním uživatelem poskytnutých osobních údajů a dalších dat.
Uživatel poskytuje Správci osobní údaje v rozsahu: jméno, příjmení, e-mailová adresa, telefonický kontakt a další data, a to z důvodu projeveného zájmu o nemovitost, kde prostřednictvím služby Serveru Správce osloví Uživatel inzerenta uvedeného v detailu
nemovitosti - ŠMÍD & PARTNERS (IČ 24122955) se zájmem o jeho služby.
Uživatel tyto osobní údaje poskytuje dobrovolně a bere na vědomí, že součástí služeb Správce, které Správce Uživateli poskytuje, je vyhledání všech Uživateli vyhovujících (dle parametrů - cena, typ nemovitosti, lokalita atd.) nemovitostí. Správce za tímto účelem provozuje aplikace Hlídací pes a newsletter. Tyto služby je možné z každého zaslaného emailu odhlásit. Souhlas se zpracováním osobních údajů Uživatel poskytuje Správci na dobu neurčitou s tím, že svůj udělený souhlas může Uživatel kdykoliv na drese správce info@realitymix.cz odvolat. Správce garantuje Uživateli i další práva uvedené v ustanovení §11 a §21 zákoba č. 101/200 Sb. Ve znění pozdějších předpisů.
Více informací o zpracování údajů získáte zde (realitymix.cz/zasady-ochrany-osobnich-udaju)