Prostorný byt 2+1 se dvěma lodžiemi po revitalizaci domu – Hradec Králové, Durychova
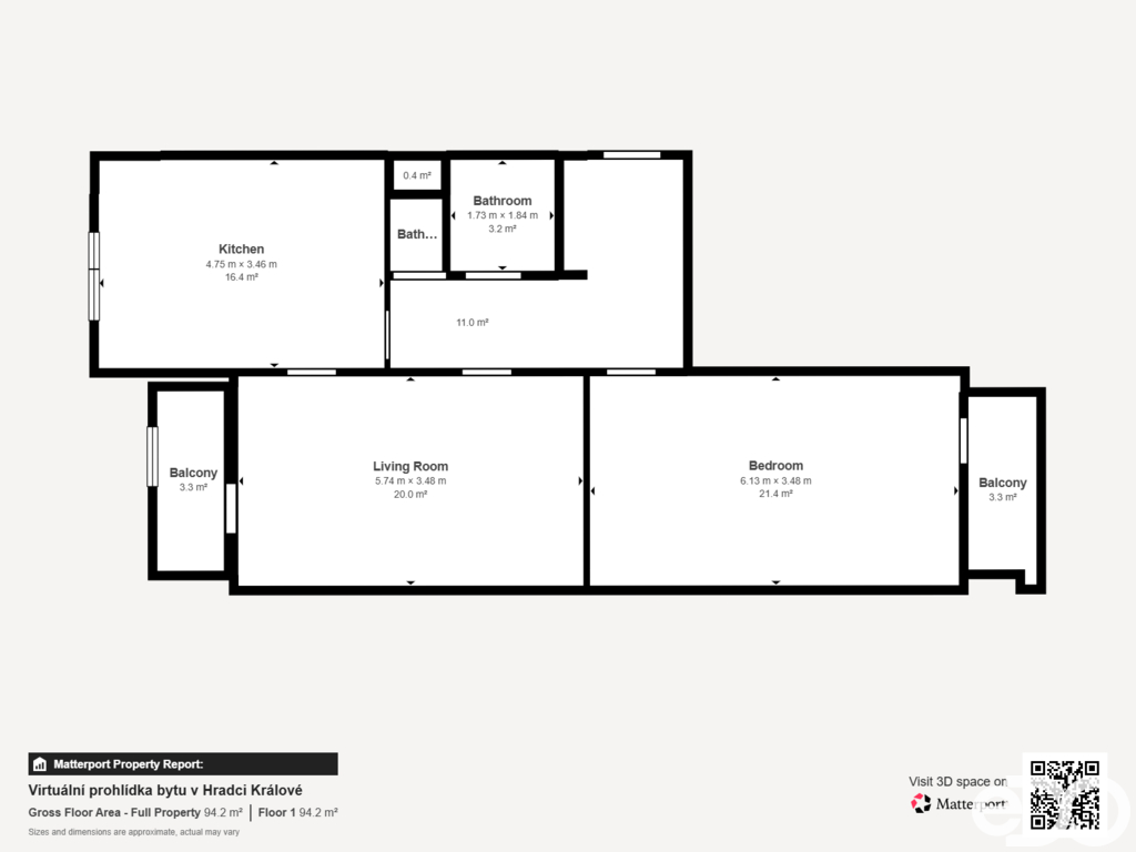
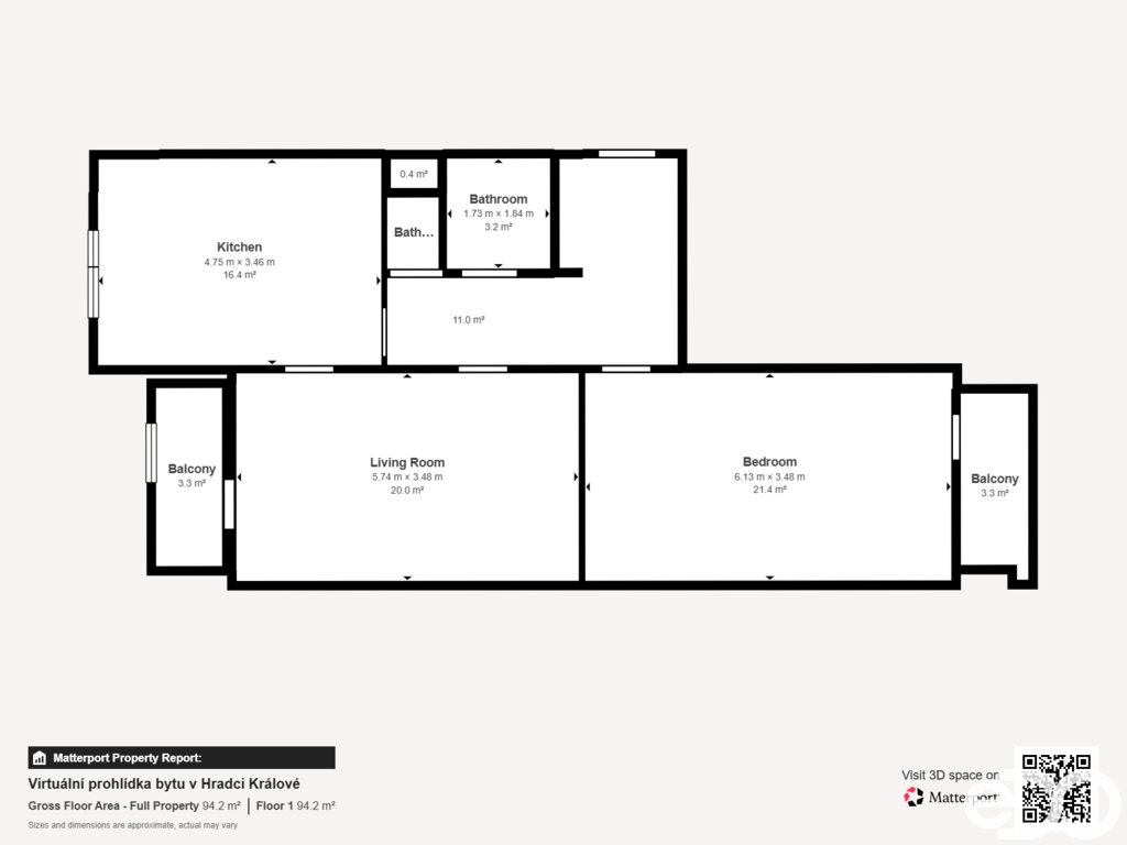
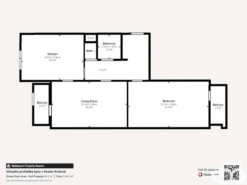
Nabízíme ke koupi světlý a vzdušný byt 2+1 v žádané lokalitě Hradce Králové, na adrese Durychova 1387/14. Byt se nachází v 7. patře z 11 a nabízí hezké výhledy do okolí města.
Byt zaujme velkorysou dispozicí, prostornými místnostmi a vyššími stropy (267 cm), které jsou nadstandardem oproti běžným panelovým domům. Oba pokoje mají vlastní lodžii, přičemž lodžie u obývacího pokoje byla v rámci revitalizace domu zvětšena a zasklena.
Bytové jádro je zděné, rekonstrukce proběhla přibližně v roce 2010. Byt je v udržovaném a funkčním stavu.
Dům prošel kompletní revitalizací v roce 2025 – zateplení, nová fasáda, vchodový portál, výtahy a úpravy lodžií výrazně zvyšují komfort bydlení i hodnotu nemovitosti.
Investiční příležitost i bydlení do budoucna
V bytě aktuálně bydlí spolehliví nájemníci s nájemní smlouvou do 30. 4. 2026, kteří mají zájem pokračovat v nájmu. Byt je tak vhodný jako investiční nemovitost, případně k vlastnímu bydlení.
K dispozici od 1. 5. 2026 nebo dle dohody.
Lokalita a občanská vybavenost:
- obchod s potravinami v docházkové vzdálenosti
- zastávka MHD
- zeleň a místa pro relax a procházky
- příjemným bonusem je kadeřnictví přímo ve vedlejším vchodě domu
Byt představuje ideální kombinaci prostoru, lokality a flexibility využití.
Doporučujeme osobní prohlídku.
Pomocí naší hypoteční kalkulačky si můžete udělat orientační představu o výši měsíčních splátek hypotéky. O vše ostatní se pak postaráme my ve spolupráci s našimi obchodními partnery.
25 503 Kč
* Odhadovaná měsíční splátka vychází z výše úvěru Kč s pevnou úrokovou sazbou % po celou dobu trvání úvěru.
Prodáváte nemovitost a potřebujete zjistit její reálnou hodnotu?
Uživatel serveru RealityMIX.cz (dále jen „Server“) dostupného na internetové adrese (URL) https://www.realitymix.cz, který provozuje společnost DALTEN media s.r.o., se sídlem Na Harfě 916/9a, Praha 9, 190 00, IČO: 271 35 306 (dále jen „Správce“) jako provozovateli tohoto Serveru uděluje svůj výslovný souhlas v souladu s ustanovením § 5 zákona č. 101/2000 Sb. O ochraně osobních údajů a o změně některých zákonů, v platném znění (dále jen „zákon o ochraně osobních údajů“), se zpracováním uživatelem poskytnutých osobních údajů a dalších dat.
Uživatel poskytuje Správci osobní údaje v rozsahu: jméno, příjmení, e-mailová adresa, telefonický kontakt a další data, a to z důvodu projeveného zájmu o nemovitost, kde prostřednictvím služby Serveru Správce osloví Uživatel inzerenta uvedeného v detailu
nemovitosti - eDO reality, s.r.o. (IČ 07268602) se zájmem o jeho služby.
Uživatel tyto osobní údaje poskytuje dobrovolně a bere na vědomí, že součástí služeb Správce, které Správce Uživateli poskytuje, je vyhledání všech Uživateli vyhovujících (dle parametrů - cena, typ nemovitosti, lokalita atd.) nemovitostí. Správce za tímto účelem provozuje aplikace Hlídací pes a newsletter. Tyto služby je možné z každého zaslaného emailu odhlásit. Souhlas se zpracováním osobních údajů Uživatel poskytuje Správci na dobu neurčitou s tím, že svůj udělený souhlas může Uživatel kdykoliv na drese správce info@realitymix.cz odvolat. Správce garantuje Uživateli i další práva uvedené v ustanovení §11 a §21 zákoba č. 101/200 Sb. Ve znění pozdějších předpisů.
Více informací o zpracování údajů získáte zde (realitymix.cz/zasady-ochrany-osobnich-udaju)