Představujeme vám elegantní a nadstandardně zrekonstruovaný byt v Hradci Králové, který osloví klienty hledající spojení vytříbeného designu, funkčního uspořádání a vysoké kvality provedení. Tak, jak jste u našich bytů již zvyklí, i tento byt byl rekonstruován s důrazem na detail, kvalitu provedení a nadčasový design. Tato nemovitost byla navržena s důrazem na estetiku, komfort i praktičnost každodenního bydlení a nabízí prostor, který je připraven splnit očekávání i náročnější klientely.
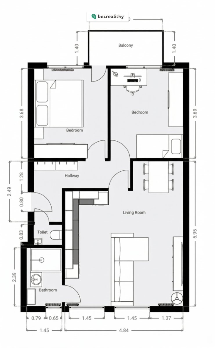
Byt o dispozici 3+kk a celkové podlahové ploše 63,7 m² prošel kompletní rekonstrukcí v pečlivě zvoleném standardu. Každý detail interiéru byl navržen tak, aby celek působil harmonicky, moderně a zároveň nadčasově. Výsledkem je světlý, vzdušný a reprezentativní prostor s důrazem na čisté linie a kvalitní materiálové řešení.
Součástí rekonstrukce bylo kompletní srovnání podlah pomocí nivelační stěrky a následná pokládka lepeného vinylu, který v interiéru přináší nejen vizuální čistotu, ale také vysokou odolnost a uživatelský komfort. V celém bytě byly realizovány nové sádrokartonové stropy a samozřejmostí jsou také zcela nové rozvody elektroinstalace, vody a odpadů, což budoucímu majiteli poskytuje jistotu bezstarostného užívání.
Dominantou obytné části je kuchyňská linka na míru, navržená s důrazem na maximální funkčnost, elegantní vzhled a efektivní využití prostoru. Je vybavena kompletní sadou vestavěných spotřebičů, včetně pračky se sušičkou, myčky nádobí, trouby i mikrovlnné trouby. Celek působí čistě, sjednoceně a odpovídá současným nárokům na moderní městské bydlení.
Koupelna je provedena ve vysokém standardu s použitím velkoformátových obkladů a dlažby 80 × 80 cm, precizně zpracovaných kamenických rohů a elegantních podomítkových baterií. Výrazným praktickým benefitem je také samostatné WC, které zvyšuje komfort celé domácnosti a přispívá k funkčnímu rozdělení prostoru.
Interiér dále obohacují promyšlené designové prvky, jako jsou podsvětlené niky a osvětlení ovládané dálkovým ovládáním, které podtrhují celkovou atmosféru bytu a dodávají mu osobitý charakter. Součástí jsou rovněž nové vstupní protipožární a bezpečnostní dveře, které vhodně doplňují celkový standard této nabídky.
Tato nemovitost představuje atraktivní příležitost pro zájemce, kteří hledají kvalitní a stylové bydlení bez kompromisů, v lokalitě s dobrou dostupností a plnou občanskou vybaveností. Byt je v družstevním vlastnictví, přičemž k prodeji je k dispozici potvrzení se souhlasem družstva se zřízením zástavy, díky čemuž je možné financování hypotečním úvěrem. Tato nemovitost je určena výhradně přímým zájemcům o koupi. Na inzerát můžete také reagovat přímo na webu Bezrealitky.
Pomocí naší hypoteční kalkulačky si můžete udělat orientační představu o výši měsíčních splátek hypotéky. O vše ostatní se pak postaráme my ve spolupráci s našimi obchodními partnery.
28 179 Kč
* Odhadovaná měsíční splátka vychází z výše úvěru Kč s pevnou úrokovou sazbou % po celou dobu trvání úvěru.
Prodáváte nemovitost a potřebujete zjistit její reálnou hodnotu?
* Umístění na mapě je na základě GPS informací dodaných realitní kanceláří.
* Pozice na mapě je pouze orientační.
Souhlas se zpracováním osobních údajů
Uživatel serveru RealityMIX.cz (dále jen „Server“) dostupného na internetové adrese (URL) https://www.realitymix.cz, který provozuje společnost DALTEN media s.r.o., se sídlem Na Harfě 916/9a, Praha 9, 190 00, IČO: 271 35 306 (dále jen „Správce“) jako provozovateli tohoto Serveru uděluje svůj výslovný souhlas v souladu s ustanovením § 5 zákona č. 101/2000 Sb. O ochraně osobních údajů a o změně některých zákonů, v platném znění (dále jen „zákon o ochraně osobních údajů“), se zpracováním uživatelem poskytnutých osobních údajů a dalších dat.
Uživatel poskytuje Správci osobní údaje v rozsahu: jméno, příjmení, e-mailová adresa, telefonický kontakt a další data, a to z důvodu projeveného zájmu o nemovitost, kde prostřednictvím služby Serveru Správce osloví Uživatel inzerenta uvedeného v detailu
nemovitosti - Bezrealitky s.r.o. (IČ 08063168) se zájmem o jeho služby.
Uživatel tyto osobní údaje poskytuje dobrovolně a bere na vědomí, že součástí služeb Správce, které Správce Uživateli poskytuje, je vyhledání všech Uživateli vyhovujících (dle parametrů - cena, typ nemovitosti, lokalita atd.) nemovitostí. Správce za tímto účelem provozuje aplikace Hlídací pes a newsletter. Tyto služby je možné z každého zaslaného emailu odhlásit. Souhlas se zpracováním osobních údajů Uživatel poskytuje Správci na dobu neurčitou s tím, že svůj udělený souhlas může Uživatel kdykoliv na drese správce info@realitymix.cz odvolat. Správce garantuje Uživateli i další práva uvedené v ustanovení §11 a §21 zákoba č. 101/200 Sb. Ve znění pozdějších předpisů.
Více informací o zpracování údajů získáte zde (realitymix.cz/zasady-ochrany-osobnich-udaju)