Pronájem nových nebytových prostor s výbornou dostupností a vlastním parkováním
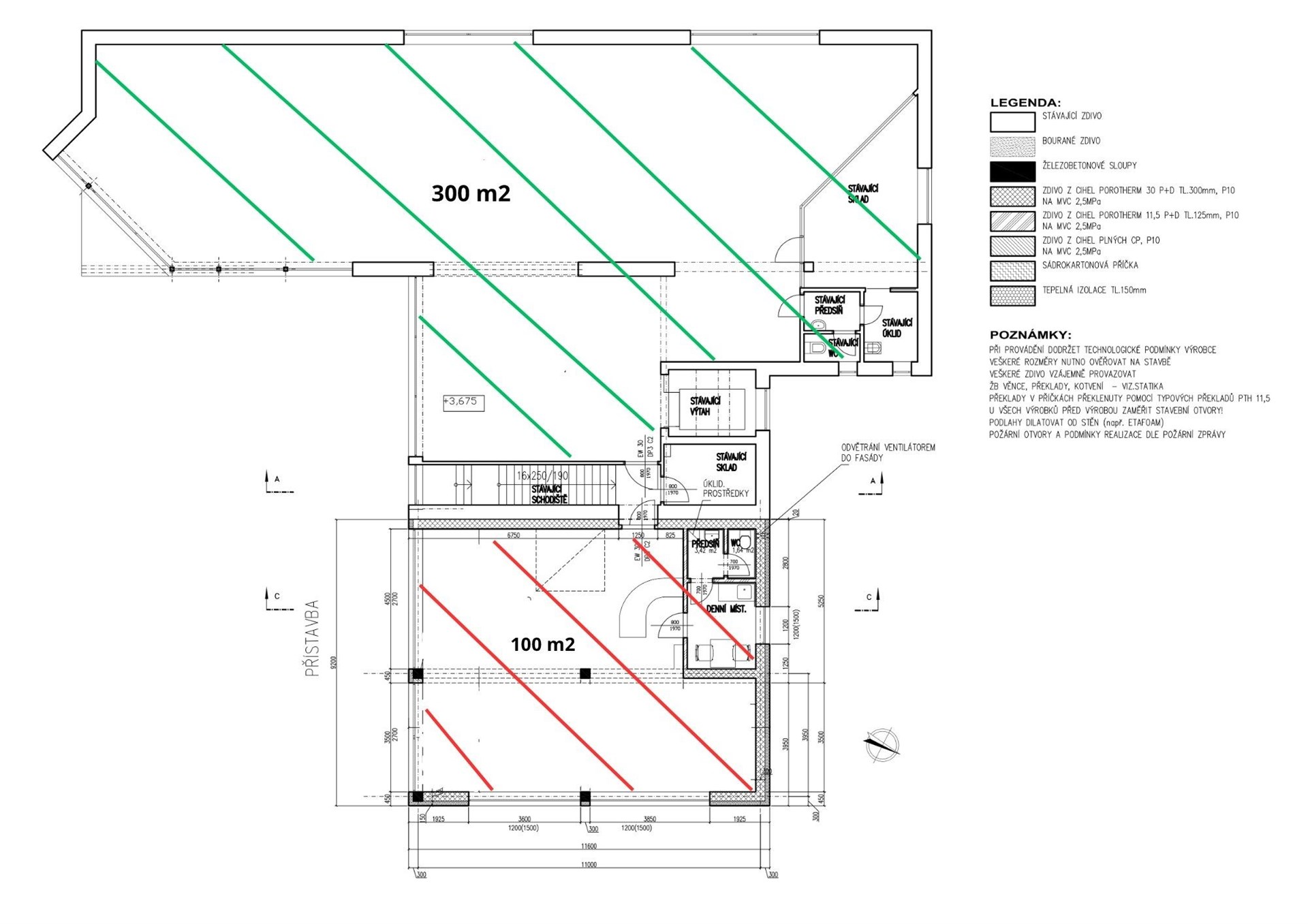
Nabízíme Vám k pronájmu příjemné, moderní, plně klimatizované prostory s vlastním parkováním a velkým výtahem (bezbariérový přístup) umístěné v 1. patře prodejního, obchodního centra v ulici Víta Nejedlého. K dispozici jsou dva prostory, které lze pronajmout společně, nebo každý zvlášť. Prostor A mám 300 m² a prostor B má 100 m². Budova je nekuřácká, internetové připojení je zajištěno.
Základní informace:
Dispozice:
Prostor A jeden velký prostor (možnost úpravy), 2 x sklad s technickým zázemím, výtah, kuchyňka, WC
celková plocha nabízeného prostoru je 300 m²
u budovy je dostatek vlastních parkovacích míst
Showroom je v 1. patře se samostatným vchodem a přístupem po schodišti
výtah je určený pro potřeby nájemce
podlaha: dlažba
volný dle dohody ihned
Prostor B jeden velký prostor (možnost úpravy), výtah, kuchyňka, WC
celková plocha nabízeného prostoru je 100 m²
u budovy je dostatek vlastních parkovacích míst
Showroom je v 1. patře se samostatným vchodem a přístupem po schodišti
výtah je určený pro potřeby nájemce
podlaha: dlažba
volný cca od 06/2026
Finanční podmínky:
Prostor A měsíční nájemné: 70.000, Kč + DPH , elektrická energie se přepisuje na nájemce, teplo se vyúčtovává podílem s druhým nájemcem celkové měsíční náklady cca 5.000, Kč
Prostor B měsíční nájemné: 50.000, Kč + DPH , elektrická energie se přepisuje na nájemce, teplo se vyúčtovává podílem s druhým nájemcem celkové měsíční náklady cca 2.000, Kč
Na střeše objektu je vybudována fotovoltaika.
vratná jistota: dle dohody
provize zprostředkovatele ve výši jednoho nájmu
platby měsíční
Cena:
50 000 Kč / (za měsíc)
Datum k nastěhování:
08.04.2026
Číslo zakázky:
REALITYMIX-979137
Podrobné informace
Plocha:400 m²
Druh objektu:cihlová
Stav objektu:novostavba
Druh prostor:Obchodní
Ostatní:Garáž, Výtah
Doprava:dálnice, silnice, MHD
Elektřina:Elektro - 230 V
Voda:Zdroj pro celý objekt, Voda - dálkový vodovod
Uživatel serveru RealityMIX.cz (dále jen „Server“) dostupného na internetové adrese (URL) https://www.realitymix.cz, který provozuje společnost DALTEN media s.r.o., se sídlem Na Harfě 916/9a, Praha 9, 190 00, IČO: 271 35 306 (dále jen „Správce“) jako provozovateli tohoto Serveru uděluje svůj výslovný souhlas v souladu s ustanovením § 5 zákona č. 101/2000 Sb. O ochraně osobních údajů a o změně některých zákonů, v platném znění (dále jen „zákon o ochraně osobních údajů“), se zpracováním uživatelem poskytnutých osobních údajů a dalších dat.
Uživatel poskytuje Správci osobní údaje v rozsahu: jméno, příjmení, e-mailová adresa, telefonický kontakt a další data, a to z důvodu projeveného zájmu o nemovitost, kde prostřednictvím služby Serveru Správce osloví Uživatel inzerenta uvedeného v detailu
nemovitosti - reality VAŠATOVÁ s.r.o. (IČ 27535690) se zájmem o jeho služby.
Uživatel tyto osobní údaje poskytuje dobrovolně a bere na vědomí, že součástí služeb Správce, které Správce Uživateli poskytuje, je vyhledání všech Uživateli vyhovujících (dle parametrů - cena, typ nemovitosti, lokalita atd.) nemovitostí. Správce za tímto účelem provozuje aplikace Hlídací pes a newsletter. Tyto služby je možné z každého zaslaného emailu odhlásit. Souhlas se zpracováním osobních údajů Uživatel poskytuje Správci na dobu neurčitou s tím, že svůj udělený souhlas může Uživatel kdykoliv na drese správce info@realitymix.cz odvolat. Správce garantuje Uživateli i další práva uvedené v ustanovení §11 a §21 zákoba č. 101/200 Sb. Ve znění pozdějších předpisů.
Více informací o zpracování údajů získáte zde (realitymix.cz/zasady-ochrany-osobnich-udaju)