Prodej chaty 36m², pozemek 474m² Pikovice - Hradišťko pod Medníkem
Chata v srdci lesů u Medníku může být Váš budoucí úkryt před shonem velkoměsta...
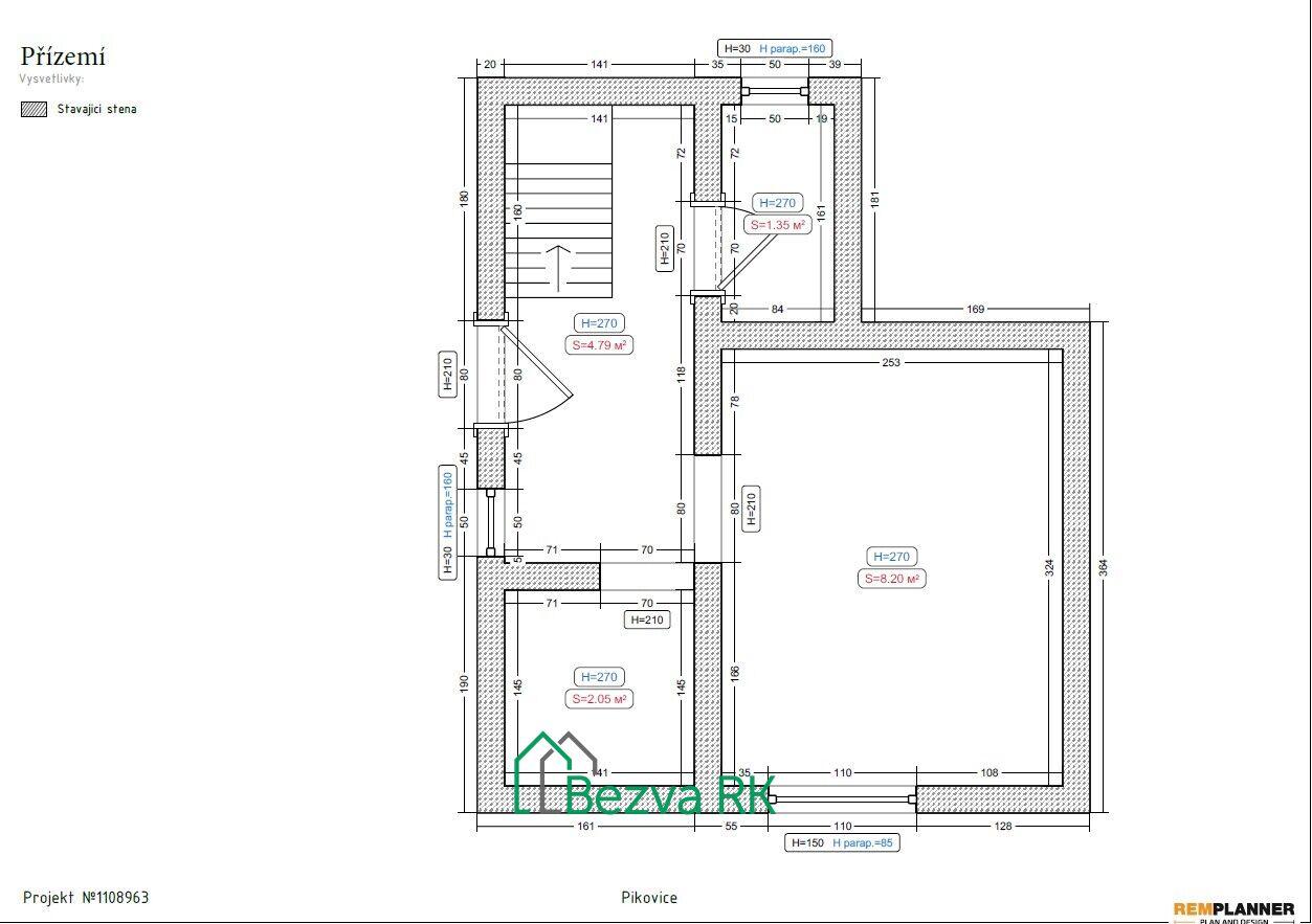
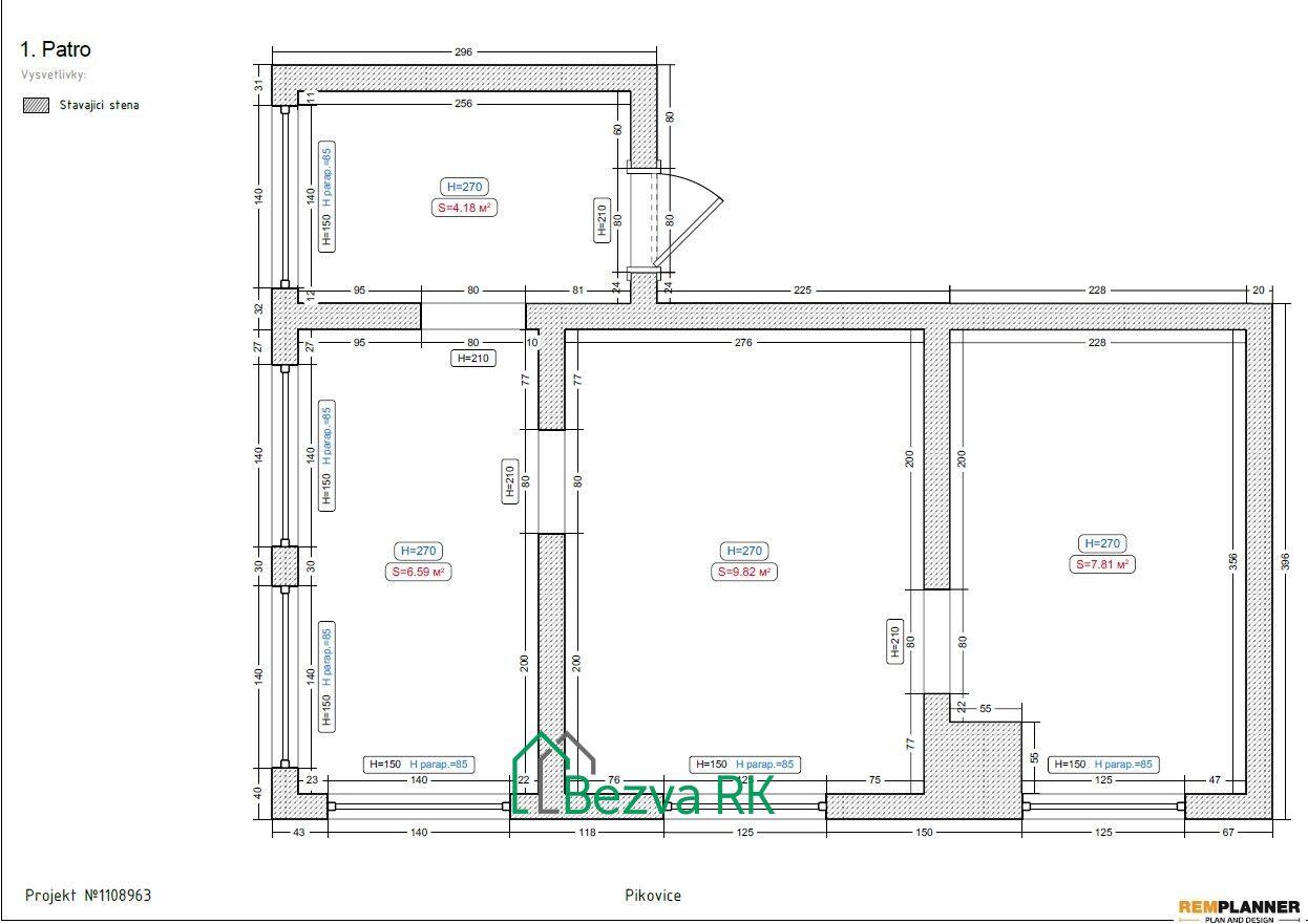
Nabízíme k prodeji částečně zděnou chatu o velikosti zastavěné plochy 36 m² v jedné z nejkrásnějších lokalit středních Čech – v Hradištku pod Medníkem, v těsné blízkosti vyhlášených Pikovic, kousek od soutoku Vltavy a Sázavy.
Nemovitost se nachází na vlastním lesním pozemku o velikosti 474 m², který zajišťuje naprosté soukromí a stín v horkých letních dnech.
Částečně zděná stavba je konstrukčně v pořádku, ale čeká na celkovou rekonstrukci vnitřních prostor.
Chata je připojena na rozvod elektřiny, má vlastní septik.
Voda: Aktuálně pouze dešťová. Pro plnohodnotný komfort je nutné vybudovat vlastní vrt (v okolí běžné řešení).
Naprosto bezproblémový příjezd po asfaltové obecní komunikaci až na pozemek – vzácnost v této lesní lokalitě!
Jen 30 km z Prahy. Za půl hodiny z centra vyměníte hluk města za ticho lesa. Pikovice jsou rájem pro vodáky, turisty i milovníky historie (Posázavský pacifik, stezka Medník).
V Pikovicích se od vyznačeného místa v ulici Pod Medníkem nachází nejdůležitější body zájmu v následujících vzdálenostech:
Řeka Sázava je vzdušnou čarou zhruba 300 metrů směrem na sever. K veřejnému tábořišti u břehu dojdete po cestě za cca 5–7 minut.
Přímo v centru obce (cca 350 metrů daleko) je Restaurace U Dolejších, kde sídlí i místní pivovar Pikovar. V samotných Pikovicích je menší sezónní prodejna potravin u tábořiště. Celoroční větší obchod (Můj obchod) se nachází v sousedním Hradištku, což je přibližně 3 km cesty autem nebo autobusem.
Chata se nachází v klidné části na úpatí vrchu Medník, přičemž veškerá základní vybavenost obce je v docházkové vzdálenosti do 5–10 minut chůze.
Pro bližší informace či prohlídku kontakujte makléřku nabídky.
Pomocí naší hypoteční kalkulačky si můžete udělat orientační představu o výši měsíčních splátek hypotéky. O vše ostatní se pak postaráme my ve spolupráci s našimi obchodními partnery.
11 741 Kč
* Odhadovaná měsíční splátka vychází z výše úvěru Kč s pevnou úrokovou sazbou % po celou dobu trvání úvěru.
Uživatel serveru RealityMIX.cz (dále jen „Server“) dostupného na internetové adrese (URL) https://www.realitymix.cz, který provozuje společnost DALTEN media s.r.o., se sídlem Na Harfě 916/9a, Praha 9, 190 00, IČO: 271 35 306 (dále jen „Správce“) jako provozovateli tohoto Serveru uděluje svůj výslovný souhlas v souladu s ustanovením § 5 zákona č. 101/2000 Sb. O ochraně osobních údajů a o změně některých zákonů, v platném znění (dále jen „zákon o ochraně osobních údajů“), se zpracováním uživatelem poskytnutých osobních údajů a dalších dat.
Uživatel poskytuje Správci osobní údaje v rozsahu: jméno, příjmení, e-mailová adresa, telefonický kontakt a další data, a to z důvodu projeveného zájmu o nemovitost, kde prostřednictvím služby Serveru Správce osloví Uživatel inzerenta uvedeného v detailu
nemovitosti - Bezva RK s.r.o. (IČ 09813438) se zájmem o jeho služby.
Uživatel tyto osobní údaje poskytuje dobrovolně a bere na vědomí, že součástí služeb Správce, které Správce Uživateli poskytuje, je vyhledání všech Uživateli vyhovujících (dle parametrů - cena, typ nemovitosti, lokalita atd.) nemovitostí. Správce za tímto účelem provozuje aplikace Hlídací pes a newsletter. Tyto služby je možné z každého zaslaného emailu odhlásit. Souhlas se zpracováním osobních údajů Uživatel poskytuje Správci na dobu neurčitou s tím, že svůj udělený souhlas může Uživatel kdykoliv na drese správce info@realitymix.cz odvolat. Správce garantuje Uživateli i další práva uvedené v ustanovení §11 a §21 zákoba č. 101/200 Sb. Ve znění pozdějších předpisů.
Více informací o zpracování údajů získáte zde (realitymix.cz/zasady-ochrany-osobnich-udaju)