Prodej novostavby 248 m2 a nadstandardní chaty 170 m2 a , pozemek 2842 m2, Hřiměždice
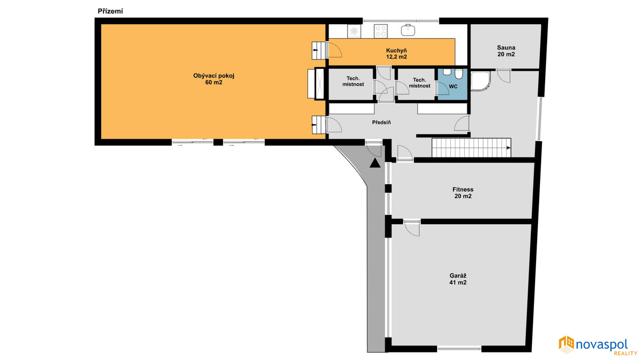
Prodej novostavby 248m2 a starší nadstandardní chaty 170m2, pozemek celkem 2842 m2, Hřiměždice. Unikátní nemovitost v těsné blízkosti Slapské přehrady s přístupem na soukromé molo. Takových nemovitostí není mnoho a v nabídce se téměř neobjevují. Na exkluzivním pozemku 2842m2, na samém okraji zástavby, se nacházejí 2 rekreační objekty - chata se dvěma prostornými terasami a novostavba z roku 2016. Najdete zde i bazén, venkovní kuchyň s posezením a přístřešek pro auta.Chata: Zastavěná plocha 127 m2Užitná plocha cca 170 m2Dispozice:Přízemí: prostorný obývací pokoj s dvěma krbovými kamny a kuchyňským koutem se vstupem na terasu, ložnice s koupelnou a WC, 1 x WC samostatně, předsíň.Patro: 3 x ložnice s vlastním sociálním zařízením a vstupem na terasu.Suterén: Technická místnost s bojlerem, sklep.Topení elektrické, ohřev vody el. bojlerem. Sluneční kolektory na ohřev vody.Filtrovaná voda ze studny. Biočistička.Kamerový systém.Novostavba:Zastavěná plocha: 146m2Užitná plocha: cca. 248m2Dispozice:Přízemí: prostorný obývací pokoj s krbovými kamny a velkými posuvnými skleněnými dveřmi, kuchyň, sauna, garáž pro 2 vozidla, 2 x technická místnost, fitness a WC.Patro: 3 apartmány, každý se sociálním zařízením a jeden s kuchyňskou linkou. Z každého apartmánu vstup na venkovní terasu. Topení elektrické, ohřev vody el. bojlerem. Sluneční kolektory na ohřev vody.Filtrovaná voda ze studny.Biočistička.Objekt je střežen kamerami a bezpečnostním systémem Jablotron.Slapská přehrada je jednou z nejoblíbenějších rekreačních oblastí ve Středočeském kraji. Jižní okraj Prahy je vzdálen 50 km, cca 45 min autem.
Uživatel serveru RealityMIX.cz (dále jen „Server“) dostupného na internetové adrese (URL) https://www.realitymix.cz, který provozuje společnost DALTEN media s.r.o., se sídlem Na Harfě 916/9a, Praha 9, 190 00, IČO: 271 35 306 (dále jen „Správce“) jako provozovateli tohoto Serveru uděluje svůj výslovný souhlas v souladu s ustanovením § 5 zákona č. 101/2000 Sb. O ochraně osobních údajů a o změně některých zákonů, v platném znění (dále jen „zákon o ochraně osobních údajů“), se zpracováním uživatelem poskytnutých osobních údajů a dalších dat.
Uživatel poskytuje Správci osobní údaje v rozsahu: jméno, příjmení, e-mailová adresa, telefonický kontakt a další data, a to z důvodu projeveného zájmu o nemovitost, kde prostřednictvím služby Serveru Správce osloví Uživatel inzerenta uvedeného v detailu
nemovitosti - Novaspol, s.r.o. (IČ 27450180) se zájmem o jeho služby.
Uživatel tyto osobní údaje poskytuje dobrovolně a bere na vědomí, že součástí služeb Správce, které Správce Uživateli poskytuje, je vyhledání všech Uživateli vyhovujících (dle parametrů - cena, typ nemovitosti, lokalita atd.) nemovitostí. Správce za tímto účelem provozuje aplikace Hlídací pes a newsletter. Tyto služby je možné z každého zaslaného emailu odhlásit. Souhlas se zpracováním osobních údajů Uživatel poskytuje Správci na dobu neurčitou s tím, že svůj udělený souhlas může Uživatel kdykoliv na drese správce info@realitymix.cz odvolat. Správce garantuje Uživateli i další práva uvedené v ustanovení §11 a §21 zákoba č. 101/200 Sb. Ve znění pozdějších předpisů.
Více informací o zpracování údajů získáte zde (realitymix.cz/zasady-ochrany-osobnich-udaju)