Nabízíme k prodeji dům v centru Hronova s krásnou slunnou zahradou. Nemovitost je aktuálně rozdělena na dvě bytové jednotky a nabízí zajímavý potenciál ať už pro vícegenerační bydlení, nebo jako investici.
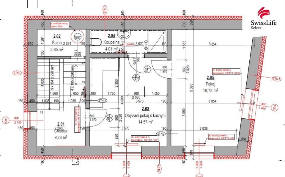
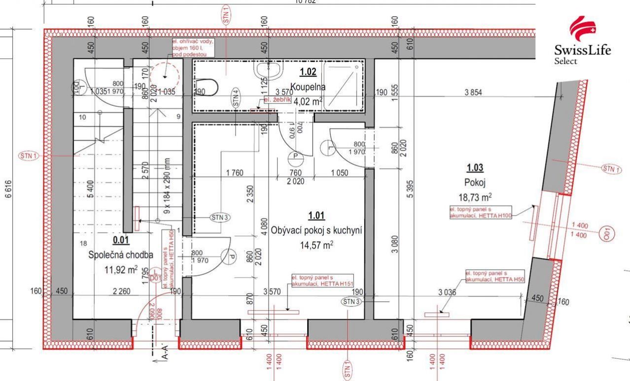
Přízemní byt o dispozici 2kk je moderně řešený byt po rekonstrukci.
Vstoupíte ze společné chodby rovnou do světlé a elegantní kuchyně, kde najdete šedou kuchyňskou linku s vestavnými spotřebiči. Je tady zároveň dostatek místa pro jídelní stůl. Odsud je vstup do druhé místnosti se zajímavým tvarem, který může pomoci zařídit byt trochu netradičně. Dvě velká okna vedou do vnitřní zahrady, což prostoru dává hodně světla a vzdušnosti.
Vedle kuchyně je atraktivní koupelna s velkorysým sprchovým koutem a toaletou. Vše je příjemně barevné, nové a komfortní.
Horní byt je samostatná bytová jednotka v patře, dispozičně identická s přízemím, jen vedle koupelny je ještě praktická šatna. Oba byty jsou moderní a kompletně zrekonstruované. Vhodná pro další členy rodiny nebo k pronájmu. Právě kombinace dvou jednotek dává domu zajímavou flexibilitu.
Dům je po celkové rekonstrukci, aktuálně není dokončena pouze fasáda. Objekt je však zateplený.
Vytápění je řešeno elektrickými olejovými radiátory, které déle sálají teplo a náklady na provoz domu nejsou vysoké. Provoz objektu je ekonomický, navíc disponuje kompletní přípravou pro instalaci FVE panelů. Pro instalaci panelů a střídače již nejsou potřeba žádné stavební úpravy.
V minulosti se v přízemí domu objevila vlhkost. Byly proto provedeny injektáže zdiva jako systematické řešení situace. Majitel do nemovitosti znovu investoval, injektáže jsou od podzimu 2025 a je na ně záruka 50 let. Zároveň se nyní provedly ještě nové drenáže podél vnějších stěn.
Rovněž je zpracovaný projekt pro stavbu garáže či kůlny v prostoru přední části zahrady. Komfort bydlení se tak může ještě zvýšit. Nový majitel si tak může finální podobu exteriéru přizpůsobit podle vlastních představ a potřeb.
Velkým benefitem je zahrada s novou pergolou v přímé blízkostí řeky Metuje. Od plotu je to jen kousek přímo k břehu, atmosféra je kouzelná. Relax, který zahrada s řekou nabízí, činí z tohoto místa jedinečnou možnost bydlet moderně v centru Hronova, přitom uprostřed přírody. K dispozici je studna pro zajištění vody do bazénu i na zalévání. Vyvýšené záhony, skleníky, keře i ovocné stromy - to vše bude mít dostatek místa i slunce.
Dům je vhodný pro investora hledajícího výnos ze dvou jednotek, nebo pro rodinu, která chce spojit vlastní bydlení s pronájmem, zároveň pro někoho, kdo hledá nemovitost s potenciálem a nebojí se ji finálně dokončit podle vlastních představ.
Budeme se těšit na prohlídky. Financování umíme zajistit.
V případě více zájemců o nemovitost, si majitel vyhrazuje právo prodat nemovitost zájemci s nejvyšší nabídkou.
Pomocí naší hypoteční kalkulačky si můžete udělat orientační představu o výši měsíčních splátek hypotéky. O vše ostatní se pak postaráme my ve spolupráci s našimi obchodními partnery.
26 519 Kč
* Odhadovaná měsíční splátka vychází z výše úvěru Kč s pevnou úrokovou sazbou % po celou dobu trvání úvěru.
Uživatel serveru RealityMIX.cz (dále jen „Server“) dostupného na internetové adrese (URL) https://www.realitymix.cz, který provozuje společnost DALTEN media s.r.o., se sídlem Na Harfě 916/9a, Praha 9, 190 00, IČO: 271 35 306 (dále jen „Správce“) jako provozovateli tohoto Serveru uděluje svůj výslovný souhlas v souladu s ustanovením § 5 zákona č. 101/2000 Sb. O ochraně osobních údajů a o změně některých zákonů, v platném znění (dále jen „zákon o ochraně osobních údajů“), se zpracováním uživatelem poskytnutých osobních údajů a dalších dat.
Uživatel poskytuje Správci osobní údaje v rozsahu: jméno, příjmení, e-mailová adresa, telefonický kontakt a další data, a to z důvodu projeveného zájmu o nemovitost, kde prostřednictvím služby Serveru Správce osloví Uživatel inzerenta uvedeného v detailu
nemovitosti - Swiss Life Select Reality (IČ 24260444) se zájmem o jeho služby. Tato společnost je součástí seskupení/sítě/franšízového modelu realitních kanceláří, jejich seznam můžete zobrazit kliknutím na tento odkaz.
Fincentrum a.s. (IČ 24260444) , Swiss Life Select Reality (IČ 24260444)
Uživatel tyto osobní údaje poskytuje dobrovolně a bere na vědomí, že součástí služeb Správce, které Správce Uživateli poskytuje, je vyhledání všech Uživateli vyhovujících (dle parametrů - cena, typ nemovitosti, lokalita atd.) nemovitostí. Správce za tímto účelem provozuje aplikace Hlídací pes a newsletter. Tyto služby je možné z každého zaslaného emailu odhlásit. Souhlas se zpracováním osobních údajů Uživatel poskytuje Správci na dobu neurčitou s tím, že svůj udělený souhlas může Uživatel kdykoliv na drese správce info@realitymix.cz odvolat. Správce garantuje Uživateli i další práva uvedené v ustanovení §11 a §21 zákoba č. 101/200 Sb. Ve znění pozdějších předpisů.
Více informací o zpracování údajů získáte zde (realitymix.cz/zasady-ochrany-osobnich-udaju)