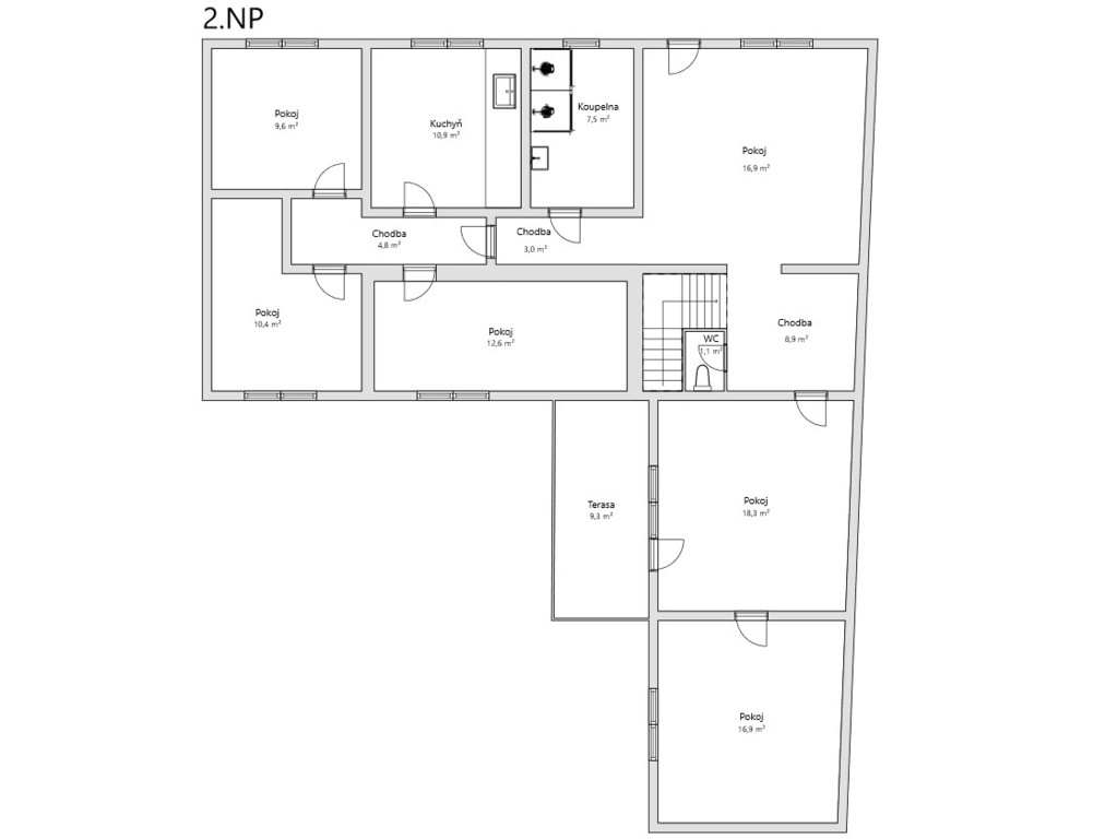
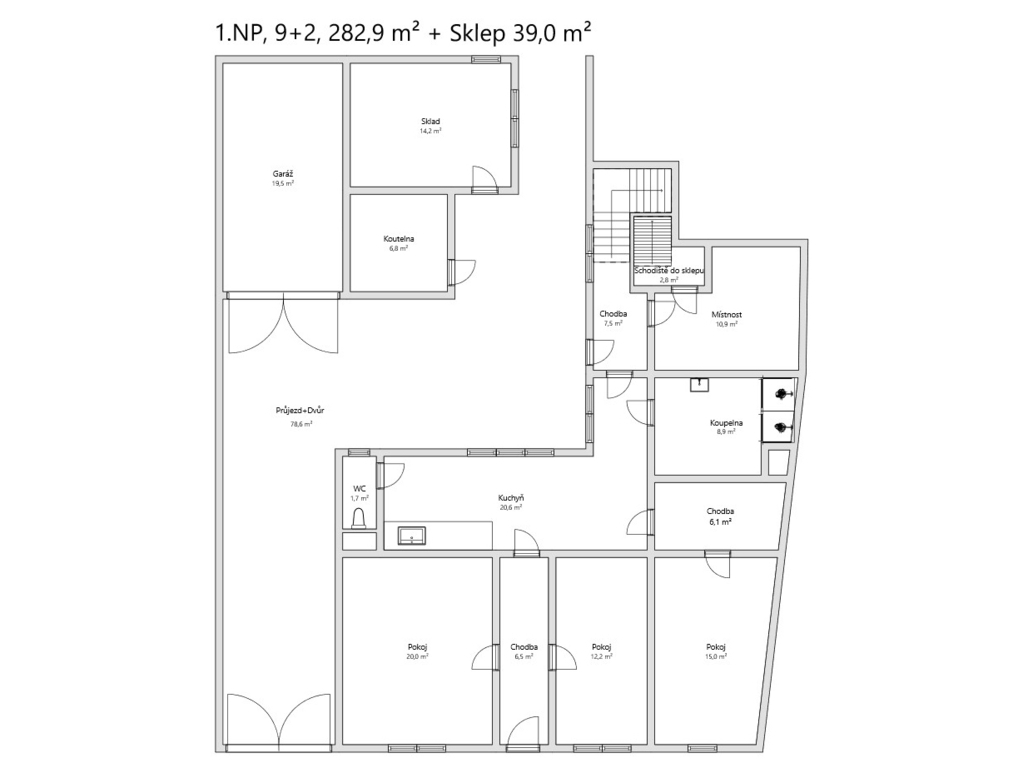
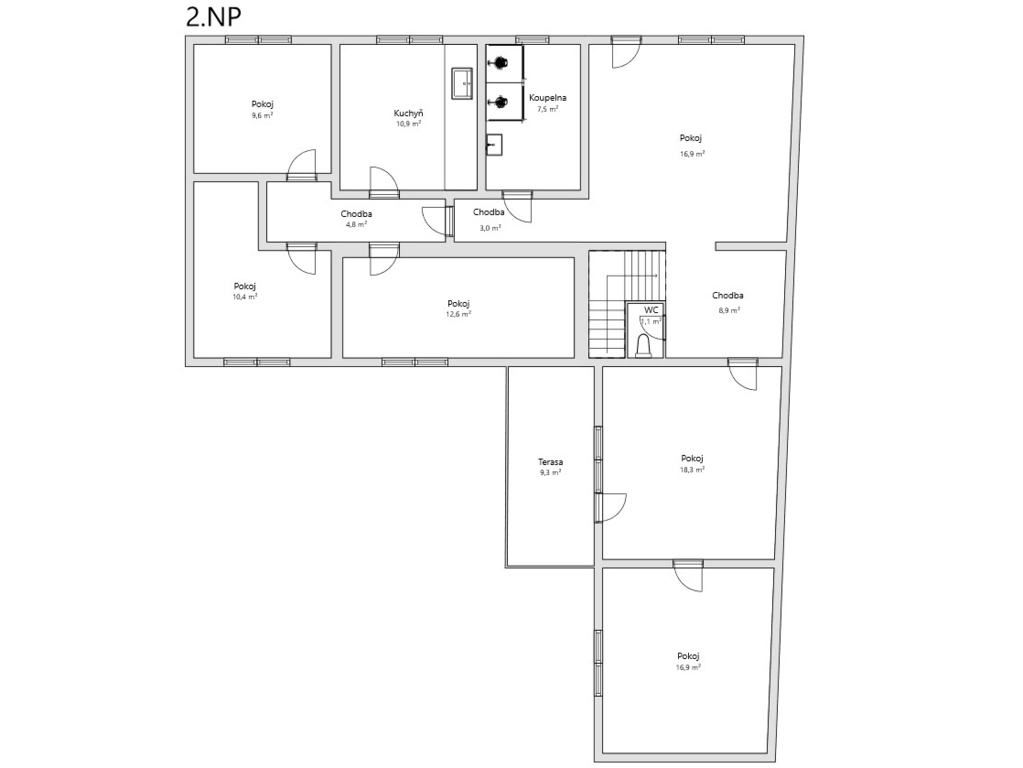
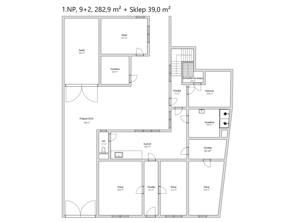
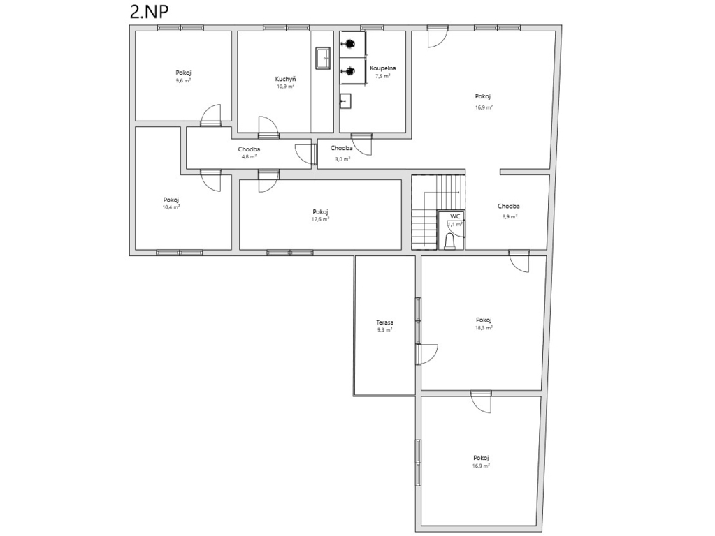
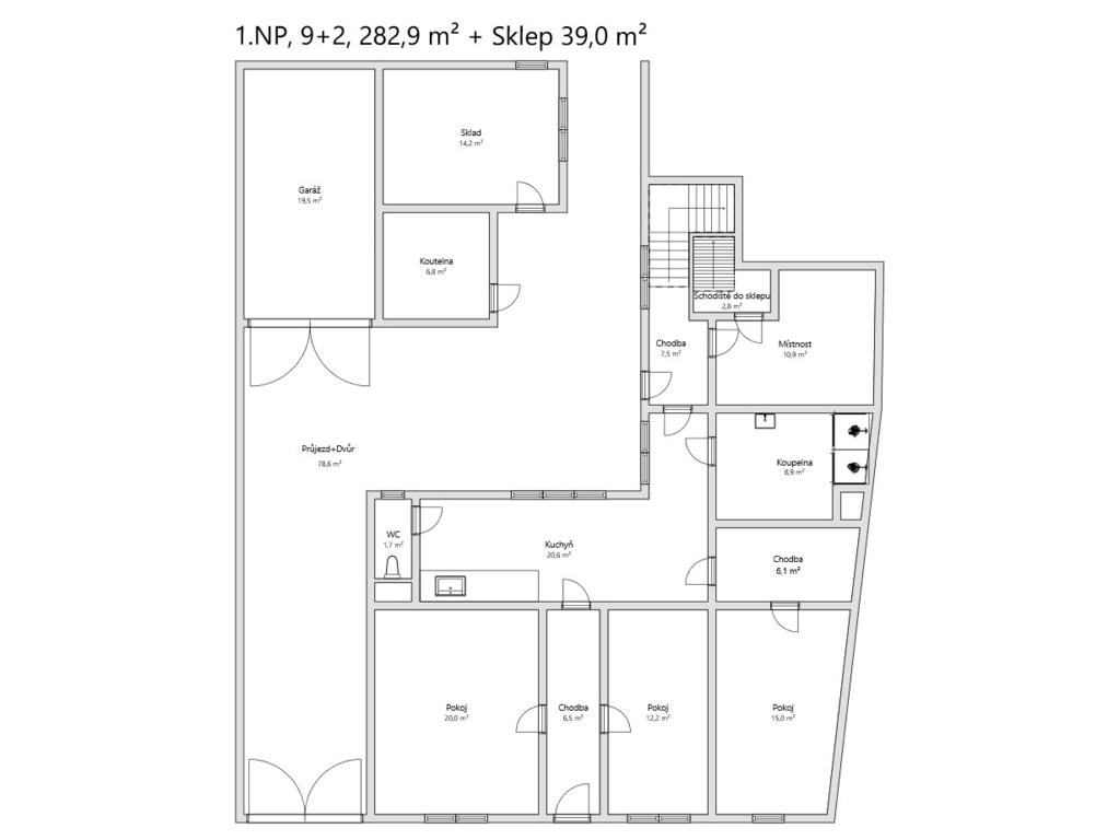
Nabízíme k prodeji rodinný dům o dispozici 9+2 s vinným sklepem
Pokud hledáte prostorný rodinný dům s velkým pozemkem, kde si můžete vše zařídit podle svých představ, pak vás tato nabídka jistě zaujme. Na adrese Hradní se nachází řadový rodinný dům o velkorysé dispozici 9+2, který nabízí skutečně široké možnosti využití.
Dům je určen ke kompletní rekonstrukci, což je velkou výhodou pro ty, kteří chtějí vytvořit originální bydlení na míru – přesně takové, jaké bude odpovídat potřebám celé rodiny. Díky dvěma samostatným bytovým jednotkám se zde pohodlně může usídlit i dvougenerační rodina, která ocení dostatek soukromí i prostoru pro společná rodinná setkání. Stejně tak ale můžete jednu část domu využít například k podnikání – ideální řešení pro ty, kdo chtějí skloubit práci a domov pod jednou střechou.
Velkým benefitem je rozlehlý pozemek, který nabízí dostatek místa pro relaxaci, dětské hry, zahradničení nebo třeba venkovní posezení s přáteli. Vše si tu snadno přetvoříte na bezpečné rodinné zázemí, kde budou děti vyrůstat v klidném prostředí, a přitom zůstanete na dosah veškeré občanské vybavenosti.
Samozřejmostí je napojení na všechny inženýrské sítě – elektřinu, plyn, kanalizaci i vodovod. Díky klidné ulici Hradní a dobré dostupnosti do centra i okolí se jedná o ideální místo pro rodinný život s dětmi, které budou mít vše potřebné doslova na dosah: školy, školky, obchody i hřiště.
Pokud tedy hledáte dům s velkým potenciálem, kde můžete spojit rodinné bydlení s podnikáním, případně vybudovat komfortní dvougenerační domov, pak vás tato nemovitost rozhodně nezklame. Ráda vás vezmu na prohlídku a ukážu vám všechno osobně.
Hustopeče jsou oblíbené město ležící v srdci vinařského kraje, které nabízí ideální kombinaci klidného bydlení a skvělé dopravní dostupnosti. Díky rychlému napojení na dálnici D2 se pohodlně dostanete do Brna za pouhých 25 minut, což ocení nejen rodiny s dětmi, ale i ti, kteří dojíždějí za prací. Město disponuje kompletní občanskou vybaveností — najdete zde školy, školky, obchody, zdravotní služby, sportoviště i množství příležitostí pro volnočasové aktivity. Nechybí ani krásná příroda, vinice a cyklostezky v okolí. Hustopeče tak spojují pohodlí menšího města s výhodami rychlého spojení do větších center.
Pomocí naší hypoteční kalkulačky si můžete udělat orientační představu o výši měsíčních splátek hypotéky. O vše ostatní se pak postaráme my ve spolupráci s našimi obchodními partnery.
34 009 Kč
* Odhadovaná měsíční splátka vychází z výše úvěru Kč s pevnou úrokovou sazbou % po celou dobu trvání úvěru.
Uživatel serveru RealityMIX.cz (dále jen „Server“) dostupného na internetové adrese (URL) https://www.realitymix.cz, který provozuje společnost DALTEN media s.r.o., se sídlem Na Harfě 916/9a, Praha 9, 190 00, IČO: 271 35 306 (dále jen „Správce“) jako provozovateli tohoto Serveru uděluje svůj výslovný souhlas v souladu s ustanovením § 5 zákona č. 101/2000 Sb. O ochraně osobních údajů a o změně některých zákonů, v platném znění (dále jen „zákon o ochraně osobních údajů“), se zpracováním uživatelem poskytnutých osobních údajů a dalších dat.
Uživatel poskytuje Správci osobní údaje v rozsahu: jméno, příjmení, e-mailová adresa, telefonický kontakt a další data, a to z důvodu projeveného zájmu o nemovitost, kde prostřednictvím služby Serveru Správce osloví Uživatel inzerenta uvedeného v detailu
nemovitosti - eDO reality, s.r.o. (IČ 07268602) se zájmem o jeho služby.
Uživatel tyto osobní údaje poskytuje dobrovolně a bere na vědomí, že součástí služeb Správce, které Správce Uživateli poskytuje, je vyhledání všech Uživateli vyhovujících (dle parametrů - cena, typ nemovitosti, lokalita atd.) nemovitostí. Správce za tímto účelem provozuje aplikace Hlídací pes a newsletter. Tyto služby je možné z každého zaslaného emailu odhlásit. Souhlas se zpracováním osobních údajů Uživatel poskytuje Správci na dobu neurčitou s tím, že svůj udělený souhlas může Uživatel kdykoliv na drese správce info@realitymix.cz odvolat. Správce garantuje Uživateli i další práva uvedené v ustanovení §11 a §21 zákoba č. 101/200 Sb. Ve znění pozdějších předpisů.
Více informací o zpracování údajů získáte zde (realitymix.cz/zasady-ochrany-osobnich-udaju)