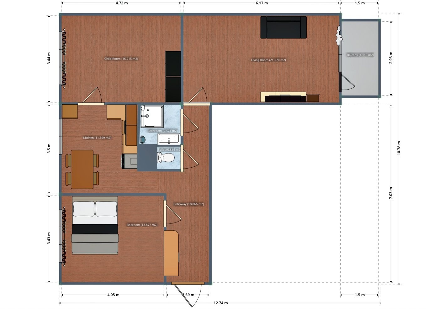
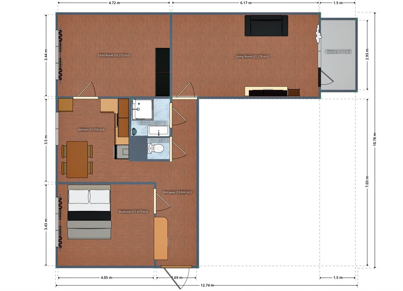
Prodej bytu 3+1 74 m² + lodžie 4 m2 + možnost dokoupení samostatné garáže 20 m2 , Hvozd u Manětína
Nabízíme Vám k prodeji byt o dispozici 3+1 užitná plocha 74 m2 + lodžie o vel 4 m2 , sklep o vel 2 m2 ,
+ možnost dokoupení samostatné garáže v domě o velikosti 20 m2
- byt je umístěn v 1.NP / přízemí / MOŽNOST DOKOUPENÍ GARÁŽE ZA 350.000 Kč
- obývací pokoj
- kuchyně s jídelním koutem
- tři samostatné pokoje - u jednoho z pokojů lodžie
- koupelna, samostatná toaleta
- prostorná předsíň i chodba včetně velkých možností úložných prostor a velké vestavěné skříně
- sklep
- vlastní garáž přímo v domě
- v domě místnost pro uložení kol a dalších sportovních potřeb
Velmi nízké provozní náklady :
- fond oprav 1677 Kč
- fond oprav garáže 168 kč
- vodné stočné záloha 300 Kč
- elektřina záloha 800 Kč
- topení záloha 1488 Kč
- ostatní služby bytové jednotky správa domu, pojištění, odpady atd. 398 Kč měsíčně
- pod byty jsou umístěny garáže a sklepy a budova kompletně vytápěna
- 2D i 3D půdorysy v inzerci jsou pouze orientační
- PENB energetický štítek nebude vyhotovován
- v následujícím období bude dům kompletně zateplen z rezerv fondu oprav a stejně tak bude provedena realizace nové kotelny domu a nového zdroje topení - přechod na kompletně nový systém
- dům celkově v perfektním stavu
- velmi klidná část obce v okolí kouzelné přírody, cyklostezek a dalších možností aktivního odpočinku, dětská hřiště, multifunkční hřiště, obchod s potravinami, restaurace a další
- byt vhodný i jako investiční nemovitost
- pracovní příležitosti v místě a v nejbližším okolí
- možnost dokoupení samostatné garáže 20 m2 k tomuto bytu, kupní cena uvedená v inzerci je pouze za byt bez garáže
- možnost financování hypotečním úvěrem se zvýhodněnou úrok sazbou
- prodávající si vyhrazuje právo vybrat a určit si kupujícího
Pomocí naší hypoteční kalkulačky si můžete udělat orientační představu o výši měsíčních splátek hypotéky. O vše ostatní se pak postaráme my ve spolupráci s našimi obchodními partnery.
10 324 Kč
* Odhadovaná měsíční splátka vychází z výše úvěru Kč s pevnou úrokovou sazbou % po celou dobu trvání úvěru.
Prodáváte nemovitost a potřebujete zjistit její reálnou hodnotu?
Uživatel serveru RealityMIX.cz (dále jen „Server“) dostupného na internetové adrese (URL) https://www.realitymix.cz, který provozuje společnost DALTEN media s.r.o., se sídlem Na Harfě 916/9a, Praha 9, 190 00, IČO: 271 35 306 (dále jen „Správce“) jako provozovateli tohoto Serveru uděluje svůj výslovný souhlas v souladu s ustanovením § 5 zákona č. 101/2000 Sb. O ochraně osobních údajů a o změně některých zákonů, v platném znění (dále jen „zákon o ochraně osobních údajů“), se zpracováním uživatelem poskytnutých osobních údajů a dalších dat.
Uživatel poskytuje Správci osobní údaje v rozsahu: jméno, příjmení, e-mailová adresa, telefonický kontakt a další data, a to z důvodu projeveného zájmu o nemovitost, kde prostřednictvím služby Serveru Správce osloví Uživatel inzerenta uvedeného v detailu
nemovitosti - Hedvika Varcholková (IČ 66978203) se zájmem o jeho služby.
Uživatel tyto osobní údaje poskytuje dobrovolně a bere na vědomí, že součástí služeb Správce, které Správce Uživateli poskytuje, je vyhledání všech Uživateli vyhovujících (dle parametrů - cena, typ nemovitosti, lokalita atd.) nemovitostí. Správce za tímto účelem provozuje aplikace Hlídací pes a newsletter. Tyto služby je možné z každého zaslaného emailu odhlásit. Souhlas se zpracováním osobních údajů Uživatel poskytuje Správci na dobu neurčitou s tím, že svůj udělený souhlas může Uživatel kdykoliv na drese správce info@realitymix.cz odvolat. Správce garantuje Uživateli i další práva uvedené v ustanovení §11 a §21 zákoba č. 101/200 Sb. Ve znění pozdějších předpisů.
Více informací o zpracování údajů získáte zde (realitymix.cz/zasady-ochrany-osobnich-udaju)