Prodej bytu 3+KK v novostavbě v Jablonném v Podještědí
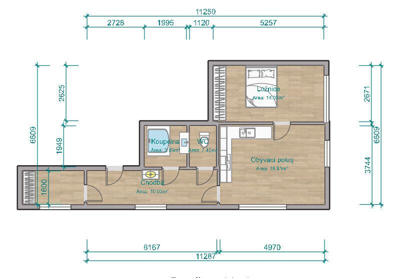
Nabízíme k prodeji byt č.17 v novostavbě bytového domu o velikostí 54m2 ve 2 NP - byt v osobním vlastnictví či možností družst. vlastnictví.
Dům je aktuálně zkolaudován a připraven na předání bytů a k nastěhování nových majitelů. Byty jsou dokončeny a jsou v kolaudačním řízení.
Park. stání nabízí možnost nabíjení elektro-automobilů jelikož disponuje přípravou na elektro - nabíjecí stanice.
V nově vystavěném čtyřpatrovém bytovém domě v obci Jablonné v Podještědí. Novostavbu se 3NP o 20 bytových jednotek s dispozicí 2+KK (prostorný obývací pokoj s kuch. koutem, ložnice, samostatným WC a koupelnou) a 2 bytových jednotek 3+KK ((prostorný obývací poko s kuch.koutemj, ložnice, pracovna, samostatným WC a koupelnou). Nabízíme investiční příležitost na pořízení nemovitosti k trvalému bydlení či prázdninového bytu na překrásném místě v Jablonném v Podještědí.
Byty jsou prodávány včetně sanitárního zařízení koupelny, vinylových podlah, dveřních obložek a přípravy na kuchyňskou linku. Převážná většina bytů má okna orientována na jih.
Vytápění v bytech je řešeno podlahovým topením ( regulace je v obývací místnosti každého bytu) a to včetně společných chodeb.
Topení a ohřev vody je zajištěn centrálním plynovým kotlem pro celý dům. Ke každému bytu náleží sklep a ve společných prostorách bude k dispozici kočárkárna a technická místnost. Ke každému bytu náleží vyhrazené parkovací stání u domu – na pozemku ve spoluvlastnickém podílu.
Bydlení v tomto domě je díky vysokým standardům nových technologiích a kvalitních stavebních materiálů je nízkonákladové bydlení – energetická náročnost „B“.
Dům jako takový disponuje přípravou na tepelné čerpadlo a přípravou pěti nabíjecích automobilových stanic na parkovacím stání. V každém bytě je instalováno připojení internetu a TV. Kuchyně není součást prodeje bytu.
Dům je umístěn v klidné části historického centra, které je městskou památkovou zónou. V místě je škola, mateřská školka, síť obchodů, autobusová zastávka a vlakové nádraží jsou v docházkové vzdálenosti. Obec Jablonné v Podještědí je 17min. pohodlné cesty autem do Liberce, za nákupy do Žitavy či do Polska.
Přijďte se sami přesvědčit o výhodách nové výstavby a jak se v tomto bytovém domě budete cítit.
V případě zájmu o bližší informace k bytům, prohlídku nebo vašich možnostem čerpání hypotečního úvěru či družstevního úvěru se zajímavou sazbou za nejlepších podmínek vyřídíme zcela zdarma.
Pro více informací kontaktujte makléře nabídky.
Pomocí naší hypoteční kalkulačky si můžete udělat orientační představu o výši měsíčních splátek hypotéky. O vše ostatní se pak postaráme my ve spolupráci s našimi obchodními partnery.
13 952 Kč
* Odhadovaná měsíční splátka vychází z výše úvěru Kč s pevnou úrokovou sazbou % po celou dobu trvání úvěru.
Prodáváte nemovitost a potřebujete zjistit její reálnou hodnotu?
Uživatel serveru RealityMIX.cz (dále jen „Server“) dostupného na internetové adrese (URL) https://www.realitymix.cz, který provozuje společnost DALTEN media s.r.o., se sídlem Na Harfě 916/9a, Praha 9, 190 00, IČO: 271 35 306 (dále jen „Správce“) jako provozovateli tohoto Serveru uděluje svůj výslovný souhlas v souladu s ustanovením § 5 zákona č. 101/2000 Sb. O ochraně osobních údajů a o změně některých zákonů, v platném znění (dále jen „zákon o ochraně osobních údajů“), se zpracováním uživatelem poskytnutých osobních údajů a dalších dat.
Uživatel poskytuje Správci osobní údaje v rozsahu: jméno, příjmení, e-mailová adresa, telefonický kontakt a další data, a to z důvodu projeveného zájmu o nemovitost, kde prostřednictvím služby Serveru Správce osloví Uživatel inzerenta uvedeného v detailu
nemovitosti - Reality Kříž (IČ 41167031) se zájmem o jeho služby.
Uživatel tyto osobní údaje poskytuje dobrovolně a bere na vědomí, že součástí služeb Správce, které Správce Uživateli poskytuje, je vyhledání všech Uživateli vyhovujících (dle parametrů - cena, typ nemovitosti, lokalita atd.) nemovitostí. Správce za tímto účelem provozuje aplikace Hlídací pes a newsletter. Tyto služby je možné z každého zaslaného emailu odhlásit. Souhlas se zpracováním osobních údajů Uživatel poskytuje Správci na dobu neurčitou s tím, že svůj udělený souhlas může Uživatel kdykoliv na drese správce info@realitymix.cz odvolat. Správce garantuje Uživateli i další práva uvedené v ustanovení §11 a §21 zákoba č. 101/200 Sb. Ve znění pozdějších předpisů.
Více informací o zpracování údajů získáte zde (realitymix.cz/zasady-ochrany-osobnich-udaju)