Prodej rodinného domu v Jaroměři – Palackého ulice
Dobrý den,
v Jaroměři máte možnost koupit rodinný dům, který nabízí dvě možná využití. První si můžete vyřešit vlastní bydlení nebo druhá možnost jako investice do dvou bytových jednotek se samostatnými vstupy.
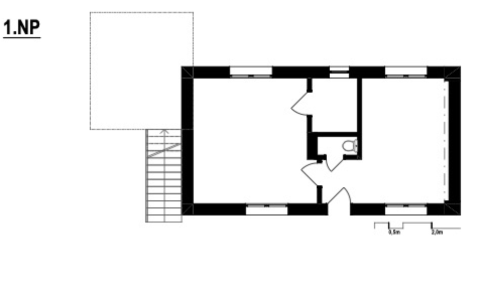
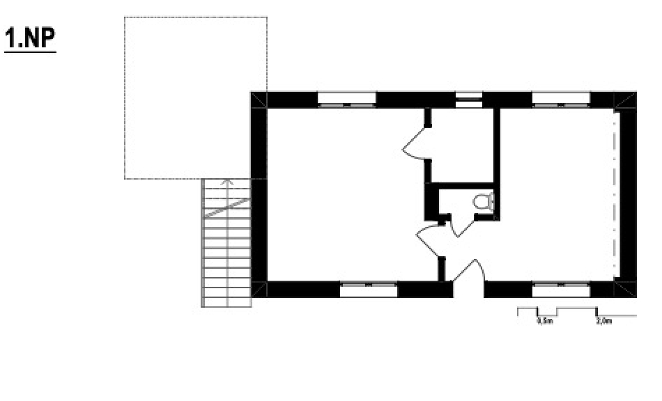
Dům se nachází v ulici Palackého, nedaleko centra Jaroměře. I když se to na první pohled nezdá, interiér domu je předurčen ke kompletní rekonstrukci, oproti tomu fasáda, střecha a většina oken jsou po revitalizaci 10 let. Zastavěná plocha domu (64 m2) včetně ostatní plochy před domem činí 284 m2.
V domě jsou aktuálně připravené prostory pro dva samostatné byty s teoretickou dispozicí 1+1 nebo 2+kk. Spodní byt [37 m2] má klenuté stropy, je orientován na východ i západ, a má zastřešený vstup, který je vhodný k venkovnímu posezení. Zavedena voda, odpad i elektřina.
Přístup do horního bytu [54 m2] vede zastřešeným bočním schodištěm. Tento byt má okna orientovaná na západ a sever, není zde natažena voda a odpady. Lze zrekonstruovat a využít také půdní prostory, do kterých vede otevřený průlez.
Vnitřním schodištěm by bylo možné byty propojit v jeden funkční celek. Dům je částečně podsklepený.
Jaroměř kombinuje praktickou polohu s příjemným městským zázemím. Díky napojení na dálnici D11 se do Hradce Králové dostanete pohodlně během 15 minut, a díky obchvatu také pohodlně do Náchoda. Město nabízí široké spektrum služeb – školství, zdravotnictví, sport i kulturu – a jako bonus přidává atmosféru historické pevnosti Josefov, která je unikátní v celém regionu.
Stavební pozemek o rozloze 1 080 m2 který je za domem a je součástí listu vlastnictví, není součástí prodeje. V případě zájmu a slušné nabídky se prodeji této parcely majitel nebrání.
Pro sjednání prohlídky a zaslání více informací mě kontaktujte, budu se těšit.
Pomocí naší hypoteční kalkulačky si můžete udělat orientační představu o výši měsíčních splátek hypotéky. O vše ostatní se pak postaráme my ve spolupráci s našimi obchodními partnery.
13 320 Kč
* Odhadovaná měsíční splátka vychází z výše úvěru Kč s pevnou úrokovou sazbou % po celou dobu trvání úvěru.
Uživatel serveru RealityMIX.cz (dále jen „Server“) dostupného na internetové adrese (URL) https://www.realitymix.cz, který provozuje společnost DALTEN media s.r.o., se sídlem Na Harfě 916/9a, Praha 9, 190 00, IČO: 271 35 306 (dále jen „Správce“) jako provozovateli tohoto Serveru uděluje svůj výslovný souhlas v souladu s ustanovením § 5 zákona č. 101/2000 Sb. O ochraně osobních údajů a o změně některých zákonů, v platném znění (dále jen „zákon o ochraně osobních údajů“), se zpracováním uživatelem poskytnutých osobních údajů a dalších dat.
Uživatel poskytuje Správci osobní údaje v rozsahu: jméno, příjmení, e-mailová adresa, telefonický kontakt a další data, a to z důvodu projeveného zájmu o nemovitost, kde prostřednictvím služby Serveru Správce osloví Uživatel inzerenta uvedeného v detailu
nemovitosti - QARA s.r.o. (IČ 01740113) se zájmem o jeho služby. Tato společnost je součástí seskupení/sítě/franšízového modelu realitních kanceláří, jejich seznam můžete zobrazit kliknutím na tento odkaz.
QARA s.r.o. Ostrava (IČ 01740113) , QARA s.r.o. Brno (IČ 01740113) , QARA s.r.o. (IČ 01740113)
Uživatel tyto osobní údaje poskytuje dobrovolně a bere na vědomí, že součástí služeb Správce, které Správce Uživateli poskytuje, je vyhledání všech Uživateli vyhovujících (dle parametrů - cena, typ nemovitosti, lokalita atd.) nemovitostí. Správce za tímto účelem provozuje aplikace Hlídací pes a newsletter. Tyto služby je možné z každého zaslaného emailu odhlásit. Souhlas se zpracováním osobních údajů Uživatel poskytuje Správci na dobu neurčitou s tím, že svůj udělený souhlas může Uživatel kdykoliv na drese správce info@realitymix.cz odvolat. Správce garantuje Uživateli i další práva uvedené v ustanovení §11 a §21 zákoba č. 101/200 Sb. Ve znění pozdějších předpisů.
Více informací o zpracování údajů získáte zde (realitymix.cz/zasady-ochrany-osobnich-udaju)