Prodej rodinného domu, Jaroměřice nad Rokytnou, ul. Floriánská
Pokud hledáte moderní novostavbu rodinného domu, která spojuje nadčasový design, špičkové technologie a promyšlenou dispozici, tak mám pro vás jednu takovou v Jaroměřicích nad Rokytnou, blízko zámecké zahrady.
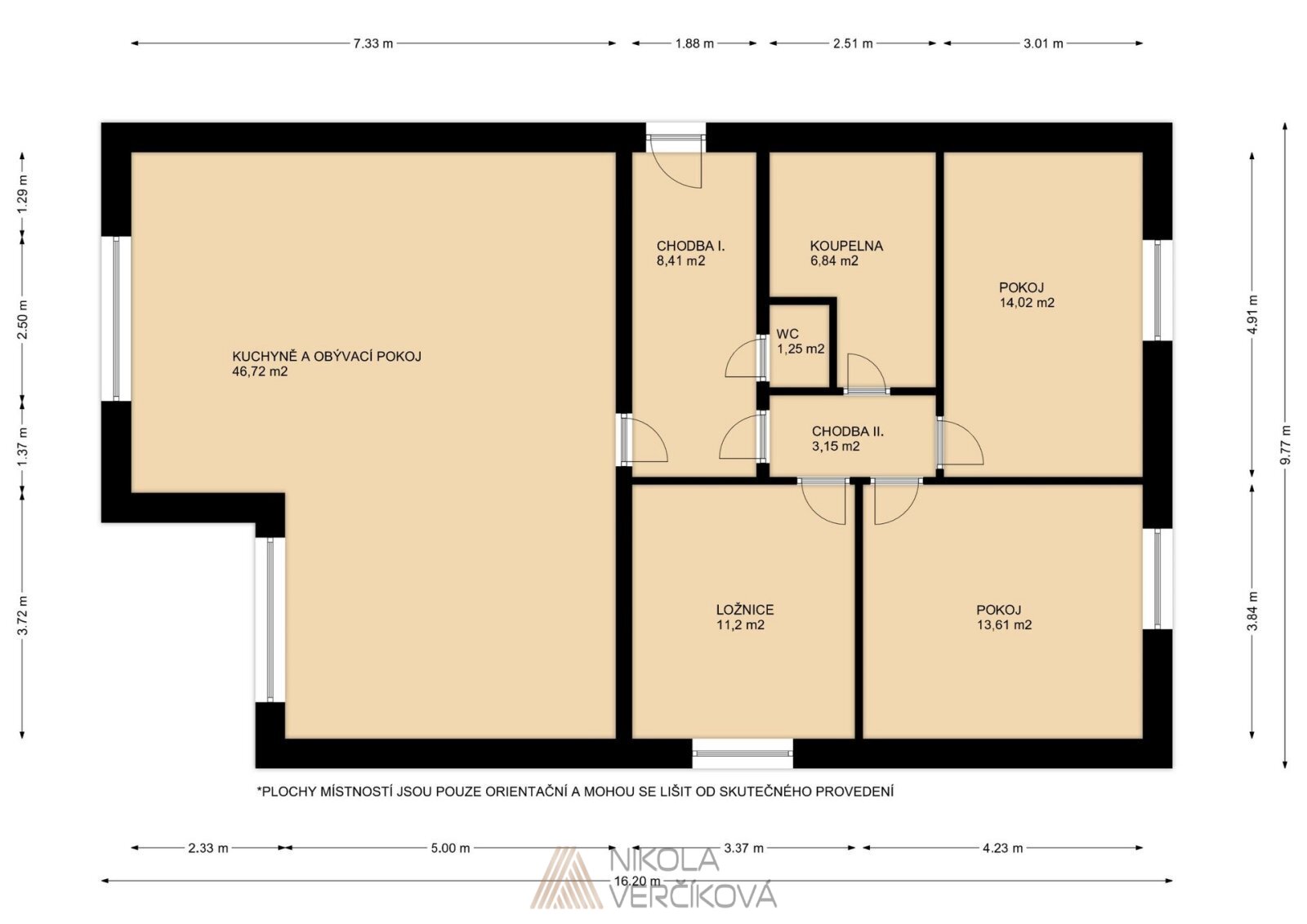
Interiér nabízí tři samostatné obytné pokoje (14,0m2, 13,6m2, a 11,2m2) prostorný obývací prostor propojený s kuchyní a jídelnou (46,7m2), samostatné WC(1,2m2) a koupelnu se sprchovým koutem a druhým WC (6,8m2). Z obývací i jídelní části vede vstup přímo na rozlehlou terasu, která láká k ranní kávě, večernímu posezení i rodinným oslavám pod širým nebem.
K domu náleží velkorysá samostatná garáž pro dvě auta a ještě něco navíc, o výměře 40 m2. Součástí garáže je také technická místnost (13m2), která je ideální pro dílnu, sklad nebo prostor pro uskladnění věcí.
Celý objekt je vybaven podlahovým vytápěním, které v zimních měsících zajišťuje příjemné teplo, a v létě naopak poskytuje komfortní klima díky integrovanému chlazení v podlaze. Ohřev vody je řešen bojlerem. Dům dále disponuje tepelným čerpadlem, rekuperací vzduchu, retenční nádrží na dešťovou vodu a inteligentním systémem LOXONE, který vám umožní ovládat domácnost pohodlně odkudkoliv. Plastové HS portály a venkovní hliníkové žaluzie zajišťují nejen estetiku, ale i tepelný komfort a soukromí.
Dům je ihned k dispozici, přičemž budoucí majitel má jedinečnou možnost doladit finální podobu interiéru podle vlastního vkusu – podlahové krytiny, interiérové dveře a kuchyňskou linku si můžete vybrat přesně tak, aby odpovídaly vašemu stylu a potřebám.
Jaroměřice nad Rokytnou jsou malebné město s bohatou historií, nádherným barokním zámkem a živou kulturní scénou. Nabízí kompletní občanskou vybavenost, krásnou přírodu a pohodové tempo života. Díky výborné dostupnosti do Třebíče a okolních měst je ideální také pro rodinné bydlení.
Pokud hledáte domov, který vám nabídne víc než jen čtyři stěny – prostor pro život, technologie pro pohodlí a atmosféru pro duši – pak jste právě našli to pravé.
Pomocí naší hypoteční kalkulačky si můžete udělat orientační představu o výši měsíčních splátek hypotéky. O vše ostatní se pak postaráme my ve spolupráci s našimi obchodními partnery.
40 447 Kč
* Odhadovaná měsíční splátka vychází z výše úvěru Kč s pevnou úrokovou sazbou % po celou dobu trvání úvěru.
Uživatel serveru RealityMIX.cz (dále jen „Server“) dostupného na internetové adrese (URL) https://www.realitymix.cz, který provozuje společnost DALTEN media s.r.o., se sídlem Na Harfě 916/9a, Praha 9, 190 00, IČO: 271 35 306 (dále jen „Správce“) jako provozovateli tohoto Serveru uděluje svůj výslovný souhlas v souladu s ustanovením § 5 zákona č. 101/2000 Sb. O ochraně osobních údajů a o změně některých zákonů, v platném znění (dále jen „zákon o ochraně osobních údajů“), se zpracováním uživatelem poskytnutých osobních údajů a dalších dat.
Uživatel poskytuje Správci osobní údaje v rozsahu: jméno, příjmení, e-mailová adresa, telefonický kontakt a další data, a to z důvodu projeveného zájmu o nemovitost, kde prostřednictvím služby Serveru Správce osloví Uživatel inzerenta uvedeného v detailu
nemovitosti - Nikola Verčíková (IČ 08652724) se zájmem o jeho služby.
Uživatel tyto osobní údaje poskytuje dobrovolně a bere na vědomí, že součástí služeb Správce, které Správce Uživateli poskytuje, je vyhledání všech Uživateli vyhovujících (dle parametrů - cena, typ nemovitosti, lokalita atd.) nemovitostí. Správce za tímto účelem provozuje aplikace Hlídací pes a newsletter. Tyto služby je možné z každého zaslaného emailu odhlásit. Souhlas se zpracováním osobních údajů Uživatel poskytuje Správci na dobu neurčitou s tím, že svůj udělený souhlas může Uživatel kdykoliv na drese správce info@realitymix.cz odvolat. Správce garantuje Uživateli i další práva uvedené v ustanovení §11 a §21 zákoba č. 101/200 Sb. Ve znění pozdějších předpisů.
Více informací o zpracování údajů získáte zde (realitymix.cz/zasady-ochrany-osobnich-udaju)