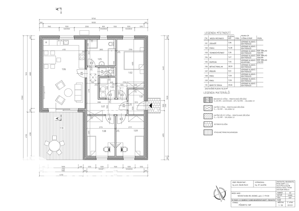
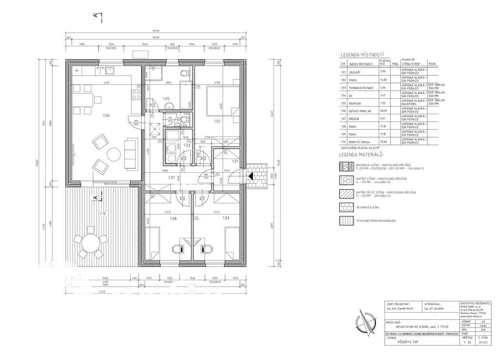
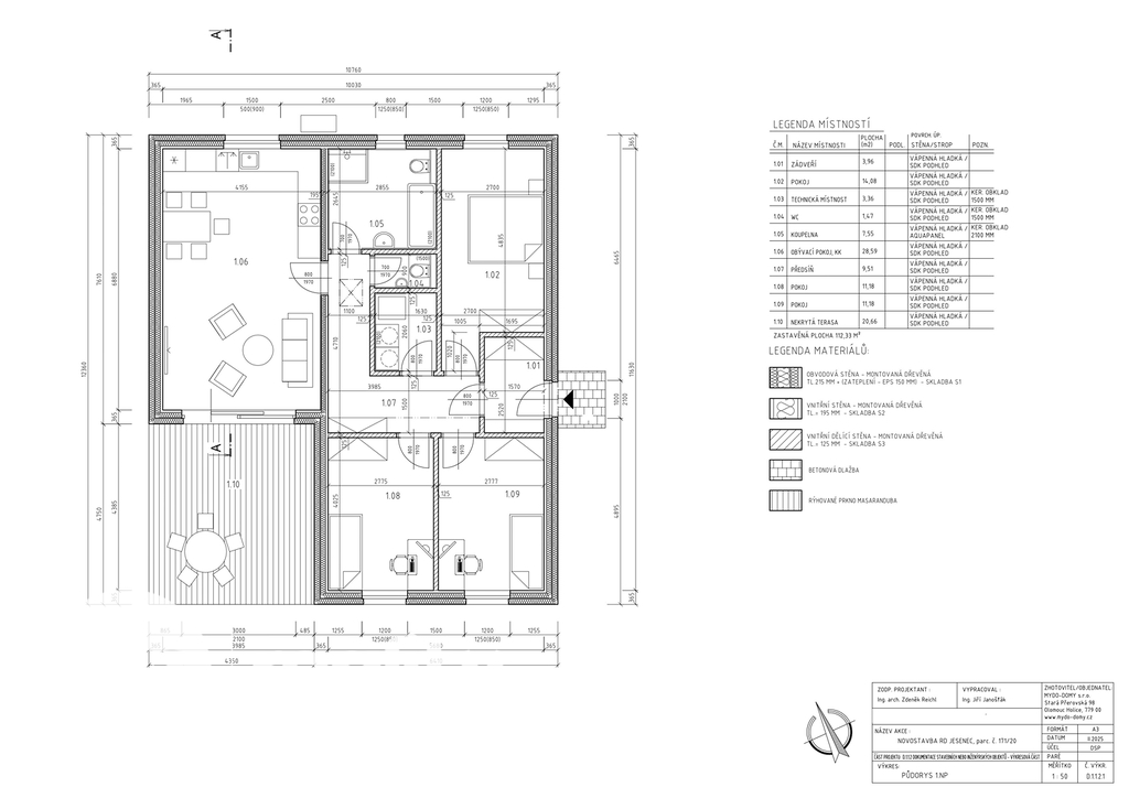
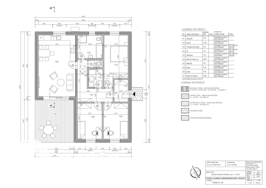
Toužíte po moderním a zároveň úsporném bydlení v klidné lokalitě? Právě pro vás je připraven tento rodinný dům v malebné obci Jesenec – spojení kvalitní dřevostavby, promyšleného řešení a možnosti individuálního přizpůsobení podle vašich potřeb.
Energetický štítek: A/A+
Dům je postaven na stabilní rámové konstrukci z KVH hranolů, která zaručuje pevnost, dlouhou životnost a rychlost výstavby. Na výběr máte dva typy vnějšího opláštění – buď OSB desky (12 mm) jako cenově výhodnější varianta, nebo fermacell (12,5 mm), který nabízí zvýšenou protipožární odolnost.
Zateplení stěn je řešeno minerální vatou (lambda 039, případně i 034 nebo 033 pro vyšší účinnost), na kterou navazuje parotěsná fólie a předstěna z hoblovaných latí (60/40 mm). Tudy vedou veškeré rozvody elektřiny a vody – vše je přehledně a prakticky uspořádané. Předstěnu je možné dle přání klienta dodatečně zateplit. Vnitřní prostor je uzavřen fermacell deskou a upraven do finální podoby – tmelení, broušení, penetrace a výmalba.
Vnitřní příčky tvoří KVH hranoly (100/60 mm), opláštěné z obou stran fermacellem a vyplněné minerální izolací. I zde jsou vedeny rozvody, a to stejně jako ve zbytku domu výhradně stropem – díky tomu zůstává podlaha kompletně a kvalitně zateplená. V podlaze se nachází dvě vrstvy polystyrenu (100 mm a 80 mm pokládané do kříže), což přispívá k vysokému komfortu a energetické úspornosti.
Podlahové vytápění si můžete zvolit podle vlastních preferencí – elektrické nebo vodní varianty.
Krytina střechy je řešena elegantním falcovaným plechem – moderní, odolné a bezúdržbové řešení s důmyslně skrytými spoji, které zajišťují dlouhou životnost a estetický vzhled.
Tato nemovitost je ideálním řešením pro ty, kdo chtějí kvalitní, udržitelné a moderní bydlení s možností úprav na míru. Jesenec je navíc lokalitou, která nabízí klid, dostatek prostoru i skvělou dostupnost do okolních měst.
Možnost upravit technické parametry ke spokojenosti budoucího majitele.
Neváhejte nás kontaktovat pro více informací nebo osobní prohlídku.
Pomocí naší hypoteční kalkulačky si můžete udělat orientační představu o výši měsíčních splátek hypotéky. O vše ostatní se pak postaráme my ve spolupráci s našimi obchodními partnery.
19 839 Kč
* Odhadovaná měsíční splátka vychází z výše úvěru Kč s pevnou úrokovou sazbou % po celou dobu trvání úvěru.
Uživatel serveru RealityMIX.cz (dále jen „Server“) dostupného na internetové adrese (URL) https://www.realitymix.cz, který provozuje společnost DALTEN media s.r.o., se sídlem Na Harfě 916/9a, Praha 9, 190 00, IČO: 271 35 306 (dále jen „Správce“) jako provozovateli tohoto Serveru uděluje svůj výslovný souhlas v souladu s ustanovením § 5 zákona č. 101/2000 Sb. O ochraně osobních údajů a o změně některých zákonů, v platném znění (dále jen „zákon o ochraně osobních údajů“), se zpracováním uživatelem poskytnutých osobních údajů a dalších dat.
Uživatel poskytuje Správci osobní údaje v rozsahu: jméno, příjmení, e-mailová adresa, telefonický kontakt a další data, a to z důvodu projeveného zájmu o nemovitost, kde prostřednictvím služby Serveru Správce osloví Uživatel inzerenta uvedeného v detailu
nemovitosti - SMS reality s.r.o. (IČ 04095421) se zájmem o jeho služby.
Uživatel tyto osobní údaje poskytuje dobrovolně a bere na vědomí, že součástí služeb Správce, které Správce Uživateli poskytuje, je vyhledání všech Uživateli vyhovujících (dle parametrů - cena, typ nemovitosti, lokalita atd.) nemovitostí. Správce za tímto účelem provozuje aplikace Hlídací pes a newsletter. Tyto služby je možné z každého zaslaného emailu odhlásit. Souhlas se zpracováním osobních údajů Uživatel poskytuje Správci na dobu neurčitou s tím, že svůj udělený souhlas může Uživatel kdykoliv na drese správce info@realitymix.cz odvolat. Správce garantuje Uživateli i další práva uvedené v ustanovení §11 a §21 zákoba č. 101/200 Sb. Ve znění pozdějších předpisů.
Více informací o zpracování údajů získáte zde (realitymix.cz/zasady-ochrany-osobnich-udaju)