Exkluzivně nabízíme k prodeji řadový patrový dům 4+kk, 110 m² v Osnici, která leží asi 2 km na východ od samotné Jesenice v okrese Praha-západ ve Středočeském kraji.
Dům se nachází ve slepé ulici. Stavba je z roku 2004, po částečné rekonstrukci. Dům je napojen na elektřinu, plyn, kanalizaci, obecní vodovod. Je vybaven klimatizací z roku 2024, alarmem, plynovým kotlem z roku 2019. Okna plastová.
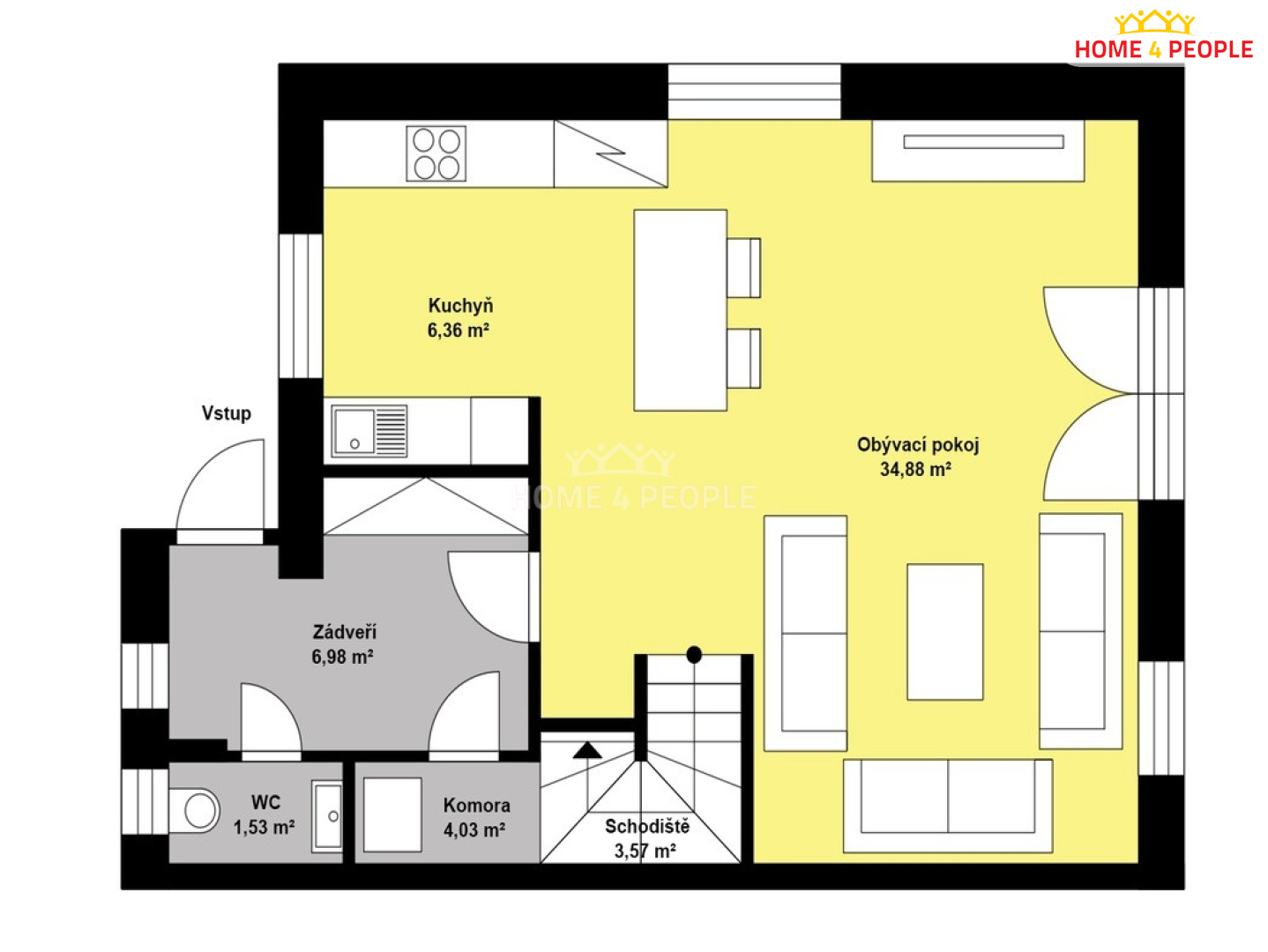
V přízemí je chodba, kde je samostatné WC a technická místnost se sprchovým koutem. Dále jsou zde vestavěné skříně. Obývací pokoj (36,50 m²) s kuchyní a jídelním ostrůvkem (6,76 m²) s technistonem z roku 2025 tvoří hlavní místnost domu. Kuchyně je zařízená kombinovanou troubou s mikrovlnkou značky Gorenje, plynovým sporákem Bosch, ledničkou Gorenje a vestavěnou vinotékou Philco. Na podlaze je dlažba s vytápěním.
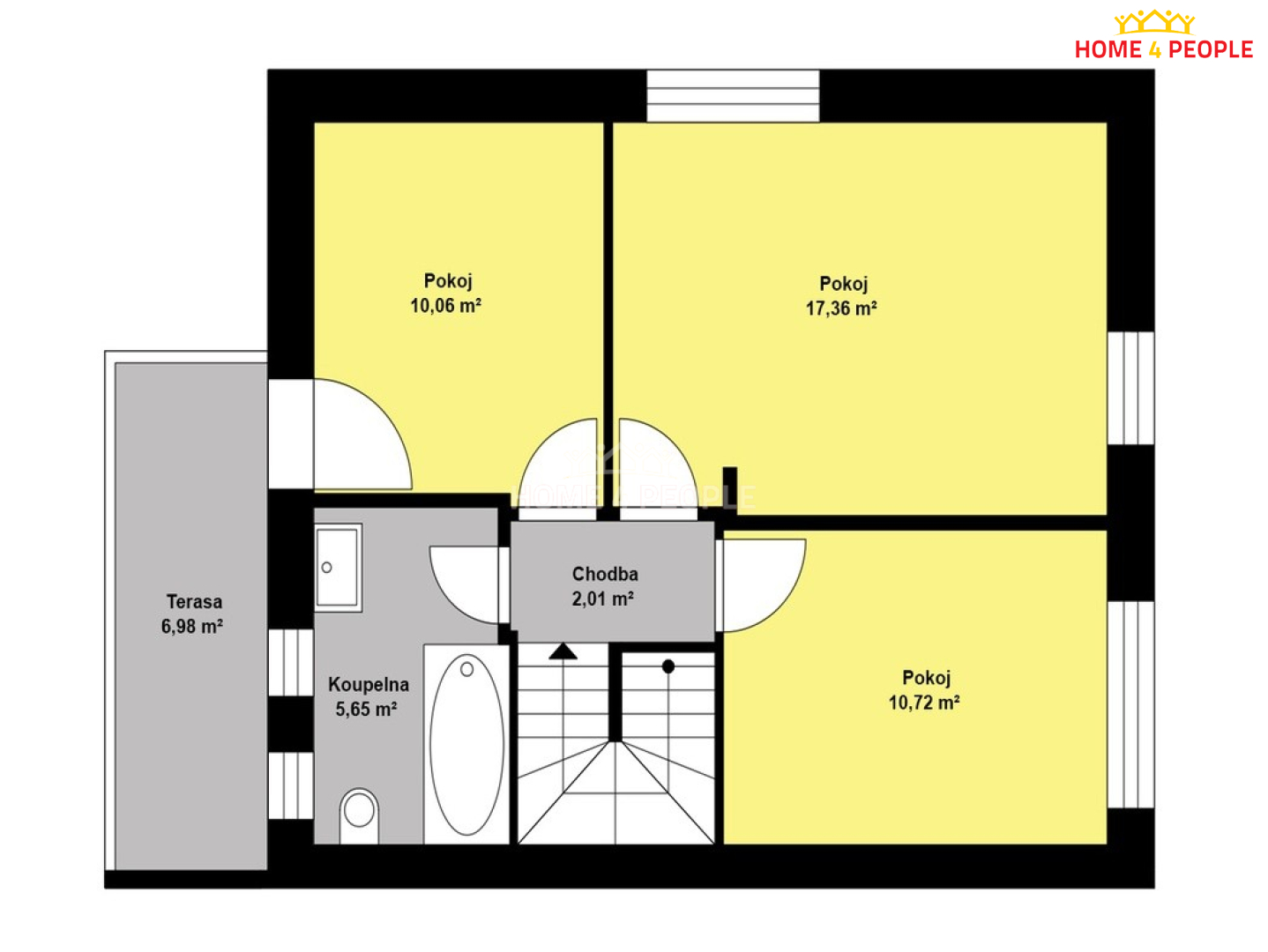
V 1.patře se nachází tři ložnice. Jedna z ložnic má balkon. Podlahy jsou dřevěné. Dále je zde koupelna s vanou a WC, na podlaze dlažba s vytápěním. Z chodby v tomto patře vedou skládací schůdky na půdu, která lze zateplit a je zde možnost výstavby dalšího pokoje.
Zahrada o velikosti 300 m² nabízí soukromí i místo pro relaxaci u bazénu (5x3 m od firmy Albixon z roku 2024) a venkovní posezení na terase (20 m²). Parkování před domem pro 3 auta.
Poplatky (elektřina, plyn, voda) jsou měsíčně cca 6.000,-Kč.
Dům se nachází v klidné a žádané části Jesenice, s dobrým napojením na občanskou vybavenost, školy, dopravu a rychlý dojezd do Prahy. Autobusem je spojení do Prahy ze zastávky vzdálené 400 m od domu.
Okolí tvoří les, pole, za nynější stavbou již nebude probíhat další výstavba.
V případě rychlého jednání možná sleva.
Máte-li zájem o více informací nebo si domluvit prohlídku, kontaktujte nás. Ev. číslo: 32118.
Pomocí naší hypoteční kalkulačky si můžete udělat orientační představu o výši měsíčních splátek hypotéky. O vše ostatní se pak postaráme my ve spolupráci s našimi obchodními partnery.
78 950 Kč
* Odhadovaná měsíční splátka vychází z výše úvěru Kč s pevnou úrokovou sazbou % po celou dobu trvání úvěru.
Uživatel serveru RealityMIX.cz (dále jen „Server“) dostupného na internetové adrese (URL) https://www.realitymix.cz, který provozuje společnost DALTEN media s.r.o., se sídlem Na Harfě 916/9a, Praha 9, 190 00, IČO: 271 35 306 (dále jen „Správce“) jako provozovateli tohoto Serveru uděluje svůj výslovný souhlas v souladu s ustanovením § 5 zákona č. 101/2000 Sb. O ochraně osobních údajů a o změně některých zákonů, v platném znění (dále jen „zákon o ochraně osobních údajů“), se zpracováním uživatelem poskytnutých osobních údajů a dalších dat.
Uživatel poskytuje Správci osobní údaje v rozsahu: jméno, příjmení, e-mailová adresa, telefonický kontakt a další data, a to z důvodu projeveného zájmu o nemovitost, kde prostřednictvím služby Serveru Správce osloví Uživatel inzerenta uvedeného v detailu
nemovitosti - HOME 4 PEOPLE (IČ 29132886) se zájmem o jeho služby. Tato společnost je součástí seskupení/sítě/franšízového modelu realitních kanceláří, jejich seznam můžete zobrazit kliknutím na tento odkaz.
Dumrealit.cz (IČ 00537861) , HOME 4 PEOPLE (IČ 29132886) , Reality 11 (IČ 29132886) , REAL ESTATE CZECH REPUBLIC a.s. (IČ 29132886) , Národní Realitní Holding a.s. (IČ 02918897)
Uživatel tyto osobní údaje poskytuje dobrovolně a bere na vědomí, že součástí služeb Správce, které Správce Uživateli poskytuje, je vyhledání všech Uživateli vyhovujících (dle parametrů - cena, typ nemovitosti, lokalita atd.) nemovitostí. Správce za tímto účelem provozuje aplikace Hlídací pes a newsletter. Tyto služby je možné z každého zaslaného emailu odhlásit. Souhlas se zpracováním osobních údajů Uživatel poskytuje Správci na dobu neurčitou s tím, že svůj udělený souhlas může Uživatel kdykoliv na drese správce info@realitymix.cz odvolat. Správce garantuje Uživateli i další práva uvedené v ustanovení §11 a §21 zákoba č. 101/200 Sb. Ve znění pozdějších předpisů.
Více informací o zpracování údajů získáte zde (realitymix.cz/zasady-ochrany-osobnich-udaju)