ID: 02004
Richard Bábík & Explicit Reality vám exkluzivně nabízí ke koupi bytovou jednotku v novostavbě rezidenčního projektu Vávrův mlýn v obci Ježov.
Projekt je navržen s důrazem na kvalitní architekturu, nadčasové materiály a klidné prostředí s dostatkem soukromí. Bytový dům je realizován ve vyšším stavebním standardu s ohledem na tepelný i akustický komfort a nízké provozní náklady.
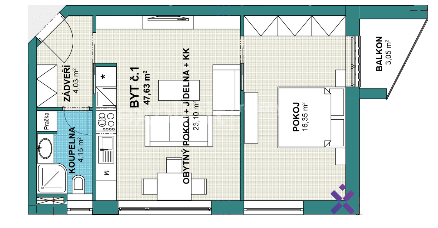
Nabízený byt o dispozici 2+kk má podlahovou plochu 48 m² a nachází se v přízemí domu. Výhodou je přímý vstup do bytu z exteriéru, který zvyšuje komfort každodenního užívání.
Součástí bytu je sklepní kóje o velikosti 12 m².
V bezprostřední blízkosti domu je k dispozici možnost parkování na přilehlém pozemku ve vlastnictví obce, a to na základě smluvního vztahu mezi obcí a developerem. Parkování není součástí vlastnického práva k bytové jednotce.
Byt je orientován na severozápad, balkon přístupný z ložnice směřuje na jihozápad.
Bytový dům zahrnuje celkem 12 bytových jednotek a splňuje energetickou třídu B. Obvodové konstrukce jsou provedeny z keramických cihel Porotherm 38 T Profi, které zajišťují velmi dobré tepelně-izolační vlastnosti.
Plastová okna s pětikomorovým profilem a izolačními trojskly přispívají k celkovému komfortu bydlení.
Vytápění bytu je řešeno plynovým kondenzačním kotlem. Ohřev teplé vody je v každém bytě zajištěn vlastním elektrickým bojlerem, což znamená plnou kontrolu nad spotřebou.
Interiér bytu zahrnuje:
- vinylové podlahy v obytných místnostech
- keramickou dlažbu a obklady v koupelně
- závěsné WC Geberit
- sprchový kout a sanitární keramiku
- bezpečnostní vstupní dveře s protipožární ochranou
Byt je nabízen bez kuchyňské linky.
V bezprostřední blízkosti domu se nachází nově vybudovaná rekreační a volnočasová zóna, vhodná pro sport, odpočinek i setkávání.
Obec Ježov leží přibližně 7 km severovýchodně od Kyjova a je součástí mikroregionu Podchřibí. V obci funguje základní a mateřská škola v jednom areálu, včetně školní družiny, školní jídelny a sportovišť, což vytváří kvalitní zázemí zejména pro rodiny s dětmi.
Součástí obce je také obchod s potravinami, pošta, ordinace praktického lékaře a hostinec se sezónním (letním) provozem. Dopravní obslužnost je zajištěna autobusovou dopravou.
Okolní Chřiby nabízejí ideální podmínky pro turistiku, cyklistiku a aktivní trávení volného času.
Výstavba projektu aktuálně probíhá, plánované dokončení je 2. kvartál roku 2026.
Developer nabízí možnost výhodného financování od 2,9 % p.a.
Kompletní informace o projektu Vávrův mlýn, půdorysy bytů a aktuální dostupnost naleznete na oficiálním webu projektu Vávrův mlýn Ježov.
Pro sjednání prohlídky mě neváhejte kontaktovat. Rád se s vámi setkám.
Pomocí naší hypoteční kalkulačky si můžete udělat orientační představu o výši měsíčních splátek hypotéky. O vše ostatní se pak postaráme my ve spolupráci s našimi obchodními partnery.
14 090 Kč
* Odhadovaná měsíční splátka vychází z výše úvěru Kč s pevnou úrokovou sazbou % po celou dobu trvání úvěru.
Prodáváte nemovitost a potřebujete zjistit její reálnou hodnotu?
Uživatel serveru RealityMIX.cz (dále jen „Server“) dostupného na internetové adrese (URL) https://www.realitymix.cz, který provozuje společnost DALTEN media s.r.o., se sídlem Na Harfě 916/9a, Praha 9, 190 00, IČO: 271 35 306 (dále jen „Správce“) jako provozovateli tohoto Serveru uděluje svůj výslovný souhlas v souladu s ustanovením § 5 zákona č. 101/2000 Sb. O ochraně osobních údajů a o změně některých zákonů, v platném znění (dále jen „zákon o ochraně osobních údajů“), se zpracováním uživatelem poskytnutých osobních údajů a dalších dat.
Uživatel poskytuje Správci osobní údaje v rozsahu: jméno, příjmení, e-mailová adresa, telefonický kontakt a další data, a to z důvodu projeveného zájmu o nemovitost, kde prostřednictvím služby Serveru Správce osloví Uživatel inzerenta uvedeného v detailu
nemovitosti - EXPLICIT REALITY, s.r.o. (IČ 06816860) se zájmem o jeho služby. Tato společnost je součástí seskupení/sítě/franšízového modelu realitních kanceláří, jejich seznam můžete zobrazit kliknutím na tento odkaz.
Explicit reality, Brno (IČ 76193403) , EXPLICIT REALITY, s.r.o. (IČ 06816860)
Uživatel tyto osobní údaje poskytuje dobrovolně a bere na vědomí, že součástí služeb Správce, které Správce Uživateli poskytuje, je vyhledání všech Uživateli vyhovujících (dle parametrů - cena, typ nemovitosti, lokalita atd.) nemovitostí. Správce za tímto účelem provozuje aplikace Hlídací pes a newsletter. Tyto služby je možné z každého zaslaného emailu odhlásit. Souhlas se zpracováním osobních údajů Uživatel poskytuje Správci na dobu neurčitou s tím, že svůj udělený souhlas může Uživatel kdykoliv na drese správce info@realitymix.cz odvolat. Správce garantuje Uživateli i další práva uvedené v ustanovení §11 a §21 zákoba č. 101/200 Sb. Ve znění pozdějších předpisů.
Více informací o zpracování údajů získáte zde (realitymix.cz/zasady-ochrany-osobnich-udaju)