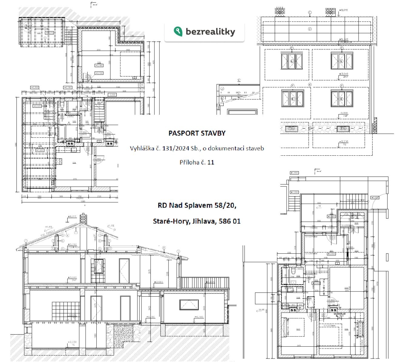
Rodinný dům se dvěma samostatnými bytovými jednotkami v klidné části Jihlavy – Staré Hory. Vhodné pro vícegenerační bydlení v obou bytech nebo pro kombinaci bydlení + investice.
Bytová jednotka 5+kk ve 2NP má užitnou plochu 88m2 + terasa 13m2.
Bytová jednotka 3+kk v 1NP má užitnou plochu 61m2 + dvůr s pergolou 20m2.
Tyto jednotky mají každá samostatný venkovní vstup. V roce 2017 prošly částečnou modernizací. Celková plocha pro bydlení je rovna 149m2.
Nebytové prostory (2 garáže, sklep, podkroví) mají užitnou plochu 128m2. Po stavebních úpravách je možné například podkroví upravit na bydlení.
Na dům o zastavěné ploše 166m2 navazuje zahrada o ploše 432m2. Celková plocha pozemku je 598m2.
Na pozemku lze zaparkovat celkem 3 vozidla. Jedná se o rohový objekt s dostatečnou kapacitou veřejných parkovacích stání.
Stavba je kompletně zateplena. Okna a dveře jsou plastová. Vytápění obou bytových jednotek je řešeno pomocí plynnového kondenzačního kotle. Na střeše domu se nachází fotovoltaické panely.
Energetická třída F - velmi nehospodárná. Pomocí vhodných opatření, definovaných v PENB, lze dosáhnout hodnoty B - velmi úsporná. PENB poskytneme na vyžádání.
Skutečný stav je uveden v projektové dokumentaci pasportu stavby (digitální i tištěné).
Objekt není zatížen zástavou ani jiným břemenem, a tak jej lze financovat pomocí hypotečního úvěru.
Právní služby související s přepisem nemovitosti jsou zajištěny.
Doporučujeme si nemovitost prohlédnout. Rádi vám sdělíme bližší informace a zodpovíme vaše dotazy.
Cena k jednání. Tato nemovitost je určena výhradně přímým zájemcům o koupi. Na inzerát můžete také reagovat přímo na webu Bezrealitky.
Pomocí naší hypoteční kalkulačky si můžete udělat orientační představu o výši měsíčních splátek hypotéky. O vše ostatní se pak postaráme my ve spolupráci s našimi obchodními partnery.
60 731 Kč
* Odhadovaná měsíční splátka vychází z výše úvěru Kč s pevnou úrokovou sazbou % po celou dobu trvání úvěru.
reklama
reklama
Mapa
* Umístění na mapě je na základě GPS informací dodaných realitní kanceláří.
* Pozice na mapě je pouze orientační.
Souhlas se zpracováním osobních údajů
Uživatel serveru RealityMIX.cz (dále jen „Server“) dostupného na internetové adrese (URL) https://www.realitymix.cz, který provozuje společnost DALTEN media s.r.o., se sídlem Na Harfě 916/9a, Praha 9, 190 00, IČO: 271 35 306 (dále jen „Správce“) jako provozovateli tohoto Serveru uděluje svůj výslovný souhlas v souladu s ustanovením § 5 zákona č. 101/2000 Sb. O ochraně osobních údajů a o změně některých zákonů, v platném znění (dále jen „zákon o ochraně osobních údajů“), se zpracováním uživatelem poskytnutých osobních údajů a dalších dat.
Uživatel poskytuje Správci osobní údaje v rozsahu: jméno, příjmení, e-mailová adresa, telefonický kontakt a další data, a to z důvodu projeveného zájmu o nemovitost, kde prostřednictvím služby Serveru Správce osloví Uživatel inzerenta uvedeného v detailu
nemovitosti - Bezrealitky s.r.o. (IČ 08063168) se zájmem o jeho služby.
Uživatel tyto osobní údaje poskytuje dobrovolně a bere na vědomí, že součástí služeb Správce, které Správce Uživateli poskytuje, je vyhledání všech Uživateli vyhovujících (dle parametrů - cena, typ nemovitosti, lokalita atd.) nemovitostí. Správce za tímto účelem provozuje aplikace Hlídací pes a newsletter. Tyto služby je možné z každého zaslaného emailu odhlásit. Souhlas se zpracováním osobních údajů Uživatel poskytuje Správci na dobu neurčitou s tím, že svůj udělený souhlas může Uživatel kdykoliv na drese správce info@realitymix.cz odvolat. Správce garantuje Uživateli i další práva uvedené v ustanovení §11 a §21 zákoba č. 101/200 Sb. Ve znění pozdějších předpisů.
Více informací o zpracování údajů získáte zde (realitymix.cz/zasady-ochrany-osobnich-udaju)