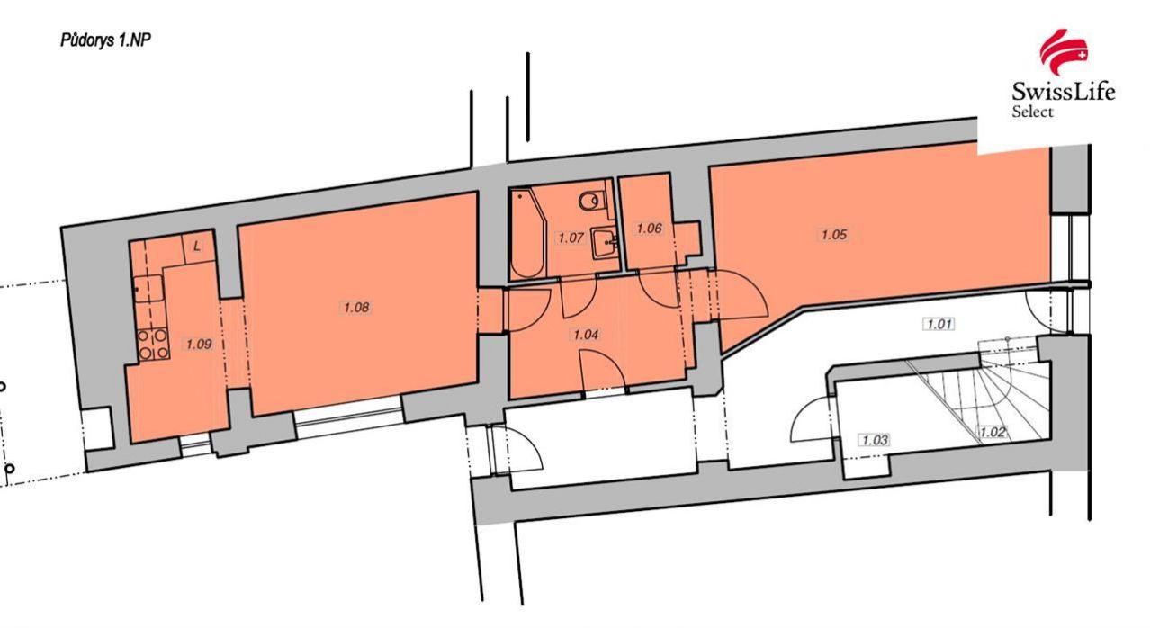
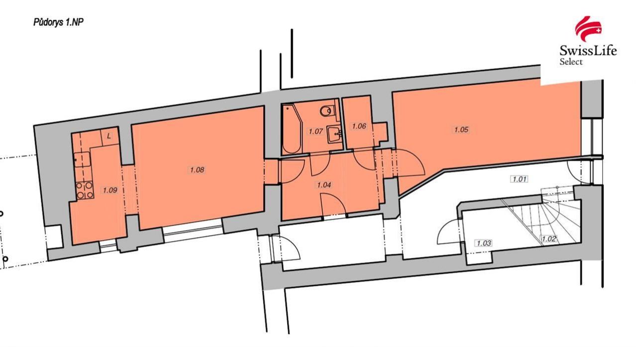
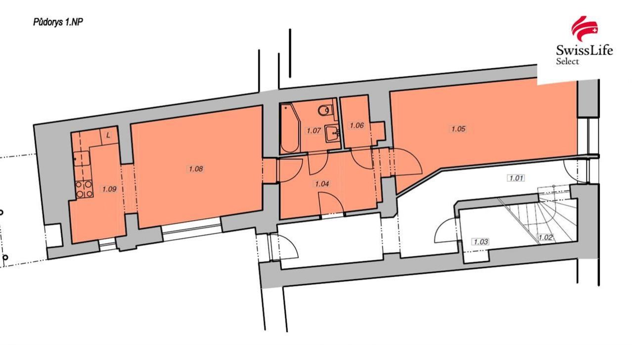
Prodej bytu 2+kk 60 m2 náměstí Jana Karafiáta, Jimramov
Nabízím k prodeji krásný, čistý byt o dispozici 2+kk a o užitné ploše přibližně 60 m, který právě prošel zdařilou rekonstrukcí/výstavbou. Nachází se v menším domě se třemi nově vytvořenými bytovými jednotkami na klidné ulici Jana Karafiáta v srdci Jimramova.
Interiér působí velmi moderně a útulně nová kuchyňská linka, el. vyhřívané podlahy, dveře, rozvody, koupelna i veškeré povrchy. Dispozice 2+kk poskytuje dostatek prostoru pro pohodlné bydlení jednotlivce, páru či menší rodiny. Součástí tohoto bytu je navíc sklepní prostor pod schody v přízemí.
Dům stojí v klidné části obce s výbornou dostupností do centra i přírody. Parkování pohodlné před domem nebo přes ulici.
S bytem se prodává podíl na zahradě za domem, která má rozlohu 378 m. Součástí domu je také menší stavení využitelné jako skladovací prostory pro jednotlivé byty.
Jimramov nabízí vše potřebné pro pohodlný život:
základní a mateřskou školu
obchody s potravinami
poštu, lékárnu a zdravotní středisko
restaurace a kavárny
krásné historické centrum, řeku a mnoho možností pro volnočasové aktivity
Pro více informací či domluvení prohlídky mě neváhejte kontaktovat.
Pomocí naší hypoteční kalkulačky si můžete udělat orientační představu o výši měsíčních splátek hypotéky. O vše ostatní se pak postaráme my ve spolupráci s našimi obchodními partnery.
9 919 Kč
* Odhadovaná měsíční splátka vychází z výše úvěru Kč s pevnou úrokovou sazbou % po celou dobu trvání úvěru.
Prodáváte nemovitost a potřebujete zjistit její reálnou hodnotu?
Uživatel serveru RealityMIX.cz (dále jen „Server“) dostupného na internetové adrese (URL) https://www.realitymix.cz, který provozuje společnost DALTEN media s.r.o., se sídlem Na Harfě 916/9a, Praha 9, 190 00, IČO: 271 35 306 (dále jen „Správce“) jako provozovateli tohoto Serveru uděluje svůj výslovný souhlas v souladu s ustanovením § 5 zákona č. 101/2000 Sb. O ochraně osobních údajů a o změně některých zákonů, v platném znění (dále jen „zákon o ochraně osobních údajů“), se zpracováním uživatelem poskytnutých osobních údajů a dalších dat.
Uživatel poskytuje Správci osobní údaje v rozsahu: jméno, příjmení, e-mailová adresa, telefonický kontakt a další data, a to z důvodu projeveného zájmu o nemovitost, kde prostřednictvím služby Serveru Správce osloví Uživatel inzerenta uvedeného v detailu
nemovitosti - Swiss Life Select Reality (IČ 24260444) se zájmem o jeho služby. Tato společnost je součástí seskupení/sítě/franšízového modelu realitních kanceláří, jejich seznam můžete zobrazit kliknutím na tento odkaz.
Fincentrum a.s. (IČ 24260444) , Swiss Life Select Reality (IČ 24260444)
Uživatel tyto osobní údaje poskytuje dobrovolně a bere na vědomí, že součástí služeb Správce, které Správce Uživateli poskytuje, je vyhledání všech Uživateli vyhovujících (dle parametrů - cena, typ nemovitosti, lokalita atd.) nemovitostí. Správce za tímto účelem provozuje aplikace Hlídací pes a newsletter. Tyto služby je možné z každého zaslaného emailu odhlásit. Souhlas se zpracováním osobních údajů Uživatel poskytuje Správci na dobu neurčitou s tím, že svůj udělený souhlas může Uživatel kdykoliv na drese správce info@realitymix.cz odvolat. Správce garantuje Uživateli i další práva uvedené v ustanovení §11 a §21 zákoba č. 101/200 Sb. Ve znění pozdějších předpisů.
Více informací o zpracování údajů získáte zde (realitymix.cz/zasady-ochrany-osobnich-udaju)