Zrekonstruovaný komerční objekt s občanským využitím, Jindřichův Hradec
Prodej zrekonstruovaného komerčního objektu s občanským využitím o celkové podlahové ploše 541
m², na adrese Stará cesta č.p. 728, Jindřichův Hradec.
Objekt je katastrálně rozdělen a prodává se jako samostatná část nemovitosti. Druhou část objektu vlastní
jiný majitel, který zde buduje dlouhodobou zubní ordinaci. Dle platného územního plánu města
Jindřichův Hradec je objekt veden v ploše občanského vybavení, která umožňuje využití pro zdravotnické
služby, administrativu, kanceláře a další nerušící provozy, v souladu s charakterem okolní zástavby.
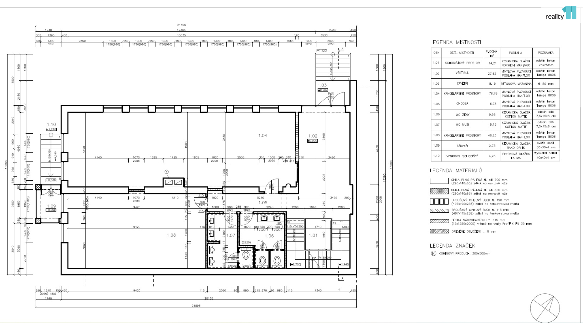
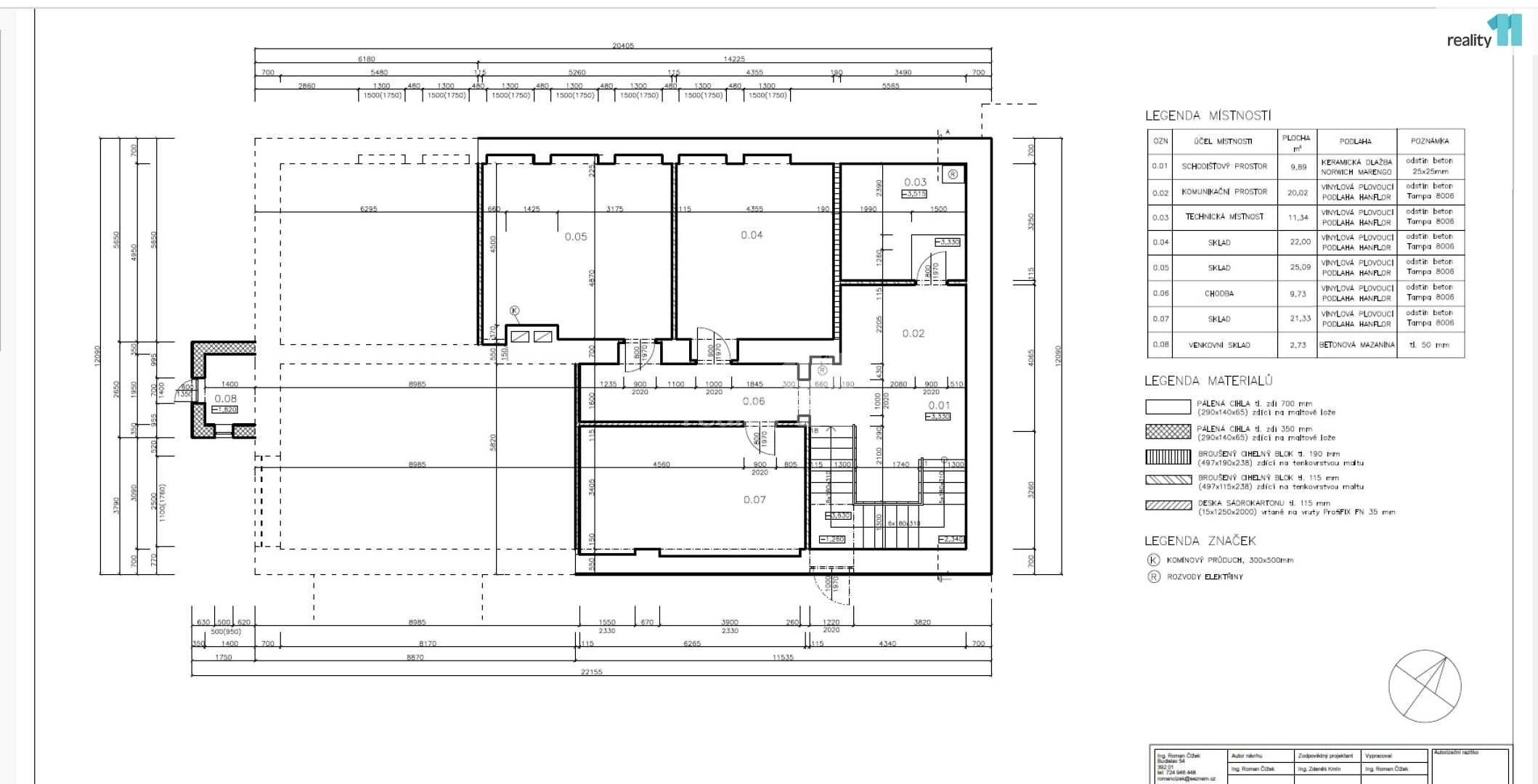
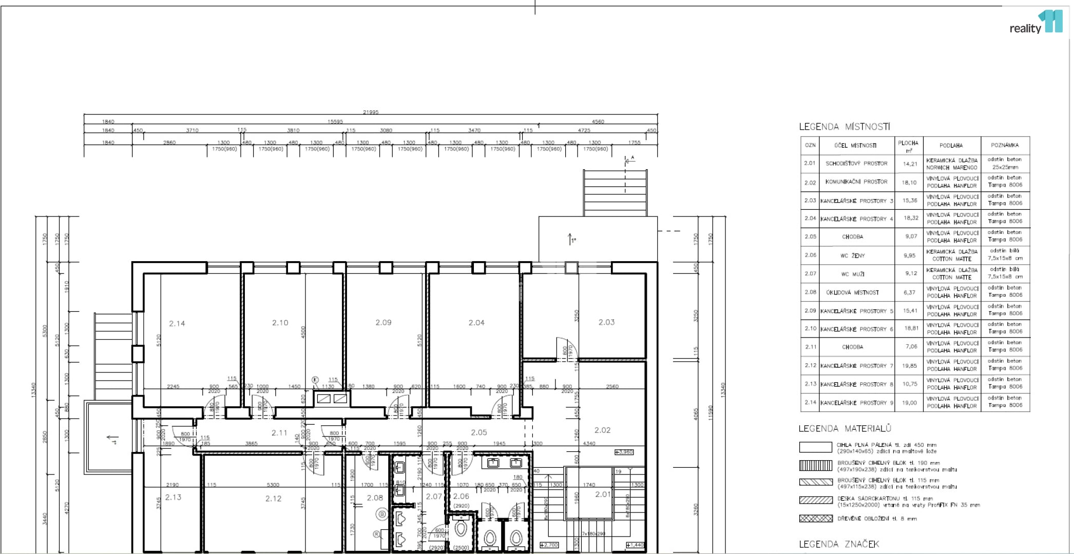
Budova je rozdělena do tří podlaží (1. PP, 1. NP a 2. NP) s užitnou plochou cca 500 m² a byla
nově zrekonstruována v roce 2025. Jedná se o bývalou vodárnu se železobetonovou konstrukcí.
Dispoziční řešení umožňuje variabilní využití, jak pro vlastní provoz, tak pro kombinaci více provozů či
investiční záměr. Více informací v projektové dokumentaci mezi fotografiemi. Mezi fotografiemi je
rovněž zařazena vizualizace, která znázorňuje finální podobu celého objektu po celkové rekonstrukci a
sjednocení fasády. Díky svému technickému řešení je objekt vhodný zejména pro zdravotnická zařízení,
ordinace, kliniky, rehabilitační centra, administrativu nebo jiné nerušící provozy. Významnou výhodou je
pevná železobetonová konstrukce původní vodárenské stavby, která zajišťuje dlouhodobou stabilitu
objektu. Nemovitost se nachází v zavedené lokalitě služeb v rámci města Jindřichův Hradec s dobrou
dopravní dostupností. Více informací Vám poskytne realitní makléřka Ivana Szepová. Ev. číslo: 28071.
Pomocí naší hypoteční kalkulačky si můžete udělat orientační představu o výši měsíčních splátek hypotéky. O vše ostatní se pak postaráme my ve spolupráci s našimi obchodními partnery.
52 229 Kč
* Odhadovaná měsíční splátka vychází z výše úvěru Kč s pevnou úrokovou sazbou % po celou dobu trvání úvěru.
Uživatel serveru RealityMIX.cz (dále jen „Server“) dostupného na internetové adrese (URL) https://www.realitymix.cz, který provozuje společnost DALTEN media s.r.o., se sídlem Na Harfě 916/9a, Praha 9, 190 00, IČO: 271 35 306 (dále jen „Správce“) jako provozovateli tohoto Serveru uděluje svůj výslovný souhlas v souladu s ustanovením § 5 zákona č. 101/2000 Sb. O ochraně osobních údajů a o změně některých zákonů, v platném znění (dále jen „zákon o ochraně osobních údajů“), se zpracováním uživatelem poskytnutých osobních údajů a dalších dat.
Uživatel poskytuje Správci osobní údaje v rozsahu: jméno, příjmení, e-mailová adresa, telefonický kontakt a další data, a to z důvodu projeveného zájmu o nemovitost, kde prostřednictvím služby Serveru Správce osloví Uživatel inzerenta uvedeného v detailu
nemovitosti - Reality 11 (IČ 29132886) se zájmem o jeho služby. Tato společnost je součástí seskupení/sítě/franšízového modelu realitních kanceláří, jejich seznam můžete zobrazit kliknutím na tento odkaz.
Dumrealit.cz (IČ 00537861) , HOME 4 PEOPLE (IČ 29132886) , Reality 11 (IČ 29132886) , REAL ESTATE CZECH REPUBLIC a.s. (IČ 29132886) , Národní Realitní Holding a.s. (IČ 02918897)
Uživatel tyto osobní údaje poskytuje dobrovolně a bere na vědomí, že součástí služeb Správce, které Správce Uživateli poskytuje, je vyhledání všech Uživateli vyhovujících (dle parametrů - cena, typ nemovitosti, lokalita atd.) nemovitostí. Správce za tímto účelem provozuje aplikace Hlídací pes a newsletter. Tyto služby je možné z každého zaslaného emailu odhlásit. Souhlas se zpracováním osobních údajů Uživatel poskytuje Správci na dobu neurčitou s tím, že svůj udělený souhlas může Uživatel kdykoliv na drese správce info@realitymix.cz odvolat. Správce garantuje Uživateli i další práva uvedené v ustanovení §11 a §21 zákoba č. 101/200 Sb. Ve znění pozdějších předpisů.
Více informací o zpracování údajů získáte zde (realitymix.cz/zasady-ochrany-osobnich-udaju)