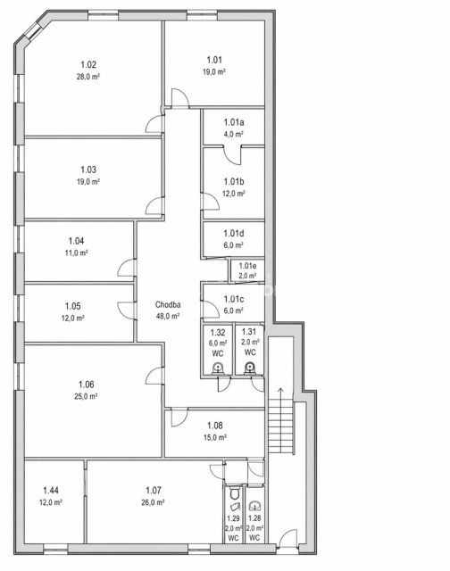
Pronájem komplexu kanceláří, skladů a vzorkových prodejen 619m² , Jirny, Tovární 26, Praha východ
Nabízíme k pronájmu rozsáhlý komerční prostor vhodný jako sídlo firmy, kanceláře nebo e-shop s možností skladování včetně chlazených produktů a dalšího rozšíření v rámci areálu. Komerční prostor o celkové ploše 619 m² je ideální jako sídlo firmy s kombinací administrativního zázemí, showroomu a lehkého skladování i velkého skladu.Prostor je vhodný zejména pro e-commerce, obchodní činnost nebo firmy, které potřebují propojit kanceláře s praktickým zázemím pro logistiku a distribuci.Součástí prostoru je skladovací část vhodná nejen pro běžné zboží, ale také pro chlazené produkty, a to včetně chladicí místnosti o velikosti 43 m².Objekt nabízí dostatek sociálního zázemí včetně kuchyňky, což zajišťuje komfortní provoz pro zaměstnance i návštěvy.Velkou výhodou je vysoká variabilita prostoru – dispozice lze přizpůsobit konkrétním potřebám nájemce. Kanceláře a vzorkovny i sklady je ještě možno rozšířit o další prostory které se nabízejí odděleně v rámci areálu což umožňuje další růst bez nutnosti stěhování.Přístup je možný jak přímo z ulice (vhodné pro klienty a obchodní partnery), tak ze dvora s pohodlným zázemím pro zásobování.Budova je zateplená. Průkaz energetické náročnosti zatím nebyl vydán, proto je administrativně vedena třída G (údaj neodpovídá skutečné spotřebě).Lokalita nabízí výbornou dopravní dostupnost – rychlé napojení na dálnici D11 a Pražský okruh, dobré spojení do centra Prahy i okolních průmyslových zón. Zastávka MHD se nachází přímo před budovou.(směr Černý Most, Brandýs nad Labem, Úvaly a další směry).Pro více informací a domluvení prohlídky nás kontaktujte.
Cena:
111 550 Kč / (za měsíc)
Poznámka:
Cena je bez DPH
Datum k nastěhování:
01.08.2026
Číslo zakázky:
REALITYMIX-11666
Podrobné informace
Plocha:619 m²
Plocha parcely:619 m²
Druh objektu:smíšená
Stav objektu:velmi dobrý
Druh prostor:Kanceláře
Ostatní:Bezbarierový přístup, Výtah, Parkoviště, Vrátnice, Sociální zařízení
Uživatel serveru RealityMIX.cz (dále jen „Server“) dostupného na internetové adrese (URL) https://www.realitymix.cz, který provozuje společnost DALTEN media s.r.o., se sídlem Na Harfě 916/9a, Praha 9, 190 00, IČO: 271 35 306 (dále jen „Správce“) jako provozovateli tohoto Serveru uděluje svůj výslovný souhlas v souladu s ustanovením § 5 zákona č. 101/2000 Sb. O ochraně osobních údajů a o změně některých zákonů, v platném znění (dále jen „zákon o ochraně osobních údajů“), se zpracováním uživatelem poskytnutých osobních údajů a dalších dat.
Uživatel poskytuje Správci osobní údaje v rozsahu: jméno, příjmení, e-mailová adresa, telefonický kontakt a další data, a to z důvodu projeveného zájmu o nemovitost, kde prostřednictvím služby Serveru Správce osloví Uživatel inzerenta uvedeného v detailu
nemovitosti - Reality PROSTOR s.r.o. (IČ 48951366) se zájmem o jeho služby.
Uživatel tyto osobní údaje poskytuje dobrovolně a bere na vědomí, že součástí služeb Správce, které Správce Uživateli poskytuje, je vyhledání všech Uživateli vyhovujících (dle parametrů - cena, typ nemovitosti, lokalita atd.) nemovitostí. Správce za tímto účelem provozuje aplikace Hlídací pes a newsletter. Tyto služby je možné z každého zaslaného emailu odhlásit. Souhlas se zpracováním osobních údajů Uživatel poskytuje Správci na dobu neurčitou s tím, že svůj udělený souhlas může Uživatel kdykoliv na drese správce info@realitymix.cz odvolat. Správce garantuje Uživateli i další práva uvedené v ustanovení §11 a §21 zákoba č. 101/200 Sb. Ve znění pozdějších předpisů.
Více informací o zpracování údajů získáte zde (realitymix.cz/zasady-ochrany-osobnich-udaju)