Pronájem vzorkové prodejny 256 m² přízemí , Jirny, Tovární 26, Praha východ
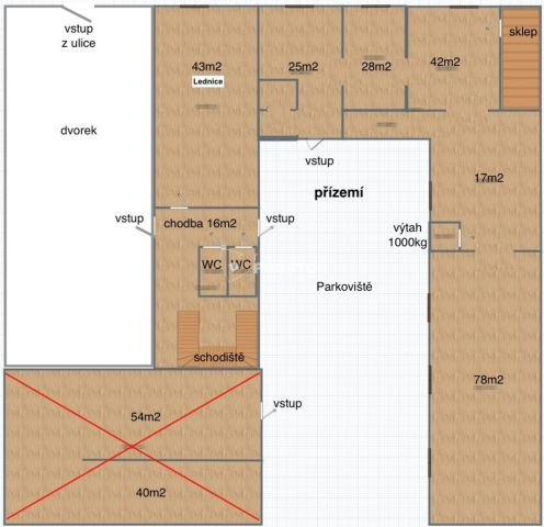
Nabízíme k pronájmu komplexní komerční prostor vhodný pro vzorkovou prodejnu, showroom, kancelář, lehkou výrobu a skladování. Přízemí o celkové ploše 256 m² zahrnuje 9 místností vhodných pro showroom, vzorkovou prodejnu, lehký sklad nebo výrobu, výdejní místo e-shopu a skladování vína či dalších produktů. Součástí jsou WC a zázemí s možností vybudování sprch (prostor je připraven, sprchy zatím nejsou instalovány). Přístup je možný přímo z ulice nebo ze dvora s možností zásobování a parkování pro zaměstnance i návštěvy. Prostor lze rozšířit podle potřeb nájemce a umožňuje kombinaci administrativy, prezentace výrobků, obchodních jednání a skladování. Budova je zateplená, průkaz energetické náročnosti zatím nebyl vydán, proto je administrativně uvedena jako třída G, což neodráží skutečnou spotřebu energie.K objektu náleží parkování přímo u budovy a výborná dopravní dostupnost – snadné napojení na dálnici D11 a Pražský okruh, dobrá dostupnost do centra Prahy i do průmyslových zón v okolí, zastávka MHD přímo před budovou (směr Černý Most, Brandýs nad Labem, Úvaly a další směry).Pro více informací a domluvení prohlídky nás kontaktujte.
Cena:
44 800 Kč / (za měsíc)
Poznámka:
Cena je bez DPH
Datum k nastěhování:
01.12.2025
Číslo zakázky:
REALITYMIX-11629
Podrobné informace
Plocha:256 m²
Plocha parcely:256 m²
Druh objektu:smíšená
Stav objektu:velmi dobrý
Druh prostor:Obchodní
Ostatní:Bezbarierový přístup, Výtah, Parkoviště, Vrátnice, Sociální zařízení
Uživatel serveru RealityMIX.cz (dále jen „Server“) dostupného na internetové adrese (URL) https://www.realitymix.cz, který provozuje společnost DALTEN media s.r.o., se sídlem Na Harfě 916/9a, Praha 9, 190 00, IČO: 271 35 306 (dále jen „Správce“) jako provozovateli tohoto Serveru uděluje svůj výslovný souhlas v souladu s ustanovením § 5 zákona č. 101/2000 Sb. O ochraně osobních údajů a o změně některých zákonů, v platném znění (dále jen „zákon o ochraně osobních údajů“), se zpracováním uživatelem poskytnutých osobních údajů a dalších dat.
Uživatel poskytuje Správci osobní údaje v rozsahu: jméno, příjmení, e-mailová adresa, telefonický kontakt a další data, a to z důvodu projeveného zájmu o nemovitost, kde prostřednictvím služby Serveru Správce osloví Uživatel inzerenta uvedeného v detailu
nemovitosti - Reality PROSTOR s.r.o. (IČ 48951366) se zájmem o jeho služby.
Uživatel tyto osobní údaje poskytuje dobrovolně a bere na vědomí, že součástí služeb Správce, které Správce Uživateli poskytuje, je vyhledání všech Uživateli vyhovujících (dle parametrů - cena, typ nemovitosti, lokalita atd.) nemovitostí. Správce za tímto účelem provozuje aplikace Hlídací pes a newsletter. Tyto služby je možné z každého zaslaného emailu odhlásit. Souhlas se zpracováním osobních údajů Uživatel poskytuje Správci na dobu neurčitou s tím, že svůj udělený souhlas může Uživatel kdykoliv na drese správce info@realitymix.cz odvolat. Správce garantuje Uživateli i další práva uvedené v ustanovení §11 a §21 zákoba č. 101/200 Sb. Ve znění pozdějších předpisů.
Více informací o zpracování údajů získáte zde (realitymix.cz/zasady-ochrany-osobnich-udaju)