Rodinný dům se zahradou 2 068 m and sup2; v Kařezu. Prostor, který vám byt nikdy nenabídne
Hledáte bydlení, kde budete mít opravdu prostor? Nejen pár metrů kolem domu, ale velkou zahradu, garáž, sklad, vlastní studnu a vlak na Prahu i Plzeň pár minut chůze od domu?
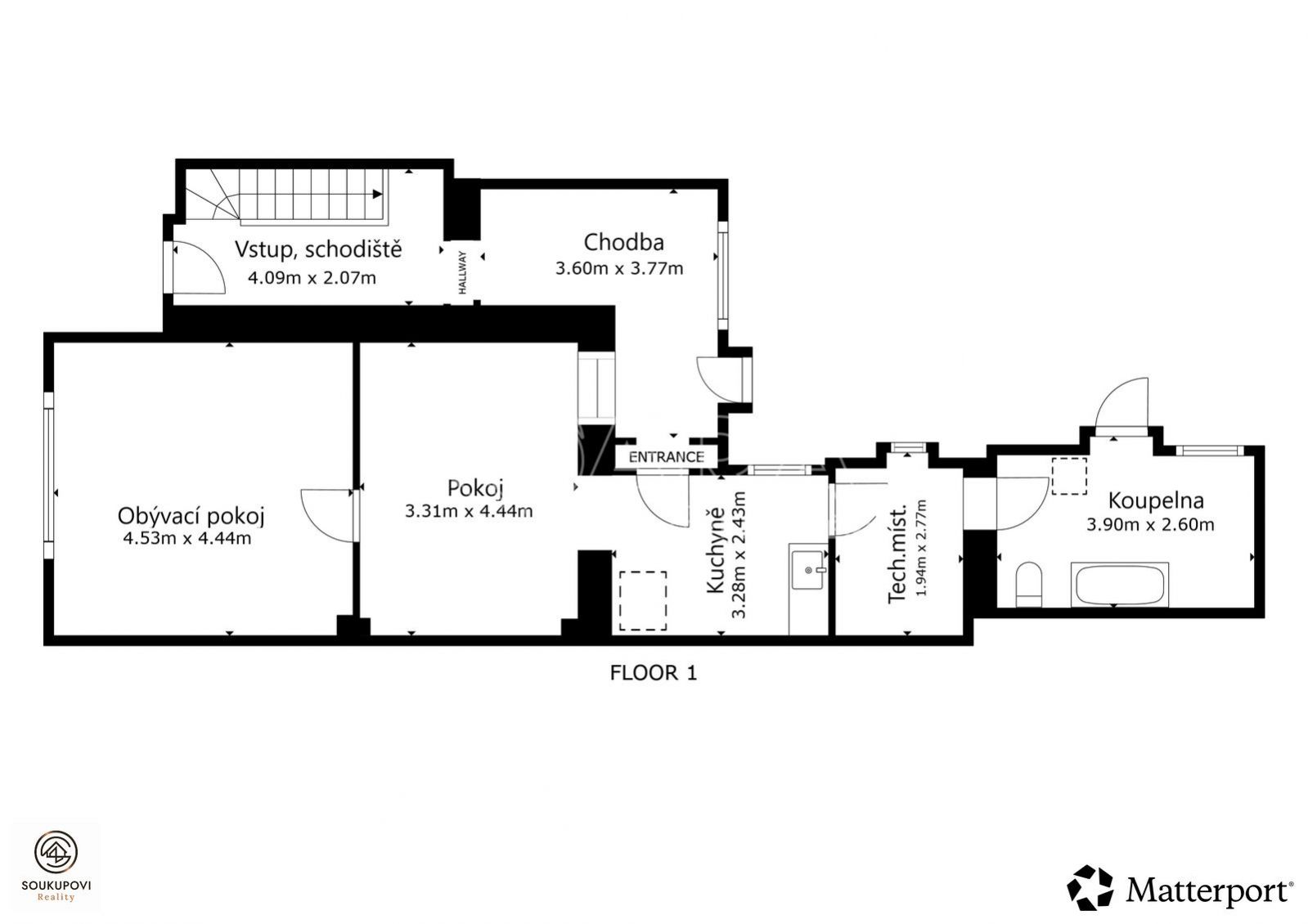
V Kařezu nabízíme k prodeji dvoupodlažní rodinný dům o dispozici 4+kk a užitné ploše 115 m and sup2;, který stojí na prostorném pozemku o výměře 2 068 m and sup2;. K domu patří samostatná garáž pro dvě auta, sklad o podlahové ploše 71 m and sup2; a menší dílna o velikosti 6 m and sup2;.
Proč právě tento dům?
Největší výhodou je kombinace prostoru a dostupnosti. Zahrada je dostatečně velká pro rodinný život, pěstování, odpočinek, zvířata, dětské hřiště, bazén nebo třeba menší dílnu a zázemí pro podnikání.
Na pozemku najdete udržovanou zahradu s ovocnými stromy a keři, připravené vyvýšené záhony a vlastní kopanou studnu. Díky tomu tu můžete hned navázat na to, co už je připravené a postupně si pozemek upravit podle vlastního životního stylu.
Dům ocení rodina, která se už nechce mačkat v bytě, pár hledající první společné bydlení, řemeslník potřebující garáž a sklad, ale i každý, kdo chce klidnější místo s rychlým spojením do města.
Dům, který si dokončíte podle sebe:
Dům je v zachovalém technickém stavu a prošel částečnou rekonstrukcí. Hotová je nová střecha z betonových tašek, plastová okna s izolačními dvojskly, nové vchodové dveře, opravené omítky i výmalba v přízemí.
To nejdůležitější tedy už má za sebou. Novému majiteli zůstává prostor dokončit si dům podle vlastních představ zejména vytápění, rozvody elektřiny a případné dispoziční či interiérové úpravy.
Energetický štítek je k dispozici a v současné chvíli vychází ve třídě C úsporná.
Dispozice a zázemí:
Dům má dispozici 4+kk a užitnou plochu 115 m and sup2;. Nabízí dostatek prostoru pro běžné rodinné bydlení, práci z domova i návštěvy.
Velkým bonusem je samostatná garáž pro dvě auta a sklad o ploše 71 m and sup2;. Ten může sloužit pro uskladnění nářadí, kol, motorek, zahradní techniky, materiálu nebo jako zázemí pro menší podnikání. K dispozici je také dílna o velikosti 6 m and sup2;.
Parkování je zajištěno přímo na vlastním pozemku před garáží. Vjezd je pohodlný po spoluvlastněné přístupové cestě ze zadní strany.
Sítě a technické informace:
Elektřina je přivedena přes novou přípojku. Vodu zajišťuje vlastní kopaná studna. Na pozemku jsou připravené také přípojky obecního vodovodu a plynu.
Ohřev vody aktuálně zajišťuje elektrický bojler. Vytápění je v současné době řešeno lokálními kamny na dřevo o výkonu 5 kW. Budoucí způsob vytápění si tak může nový majitel zvolit podle svých preferencí například s ohledem na komfort, provozní náklady nebo plánované úpravy domu.
Kařez: klid, dostupnost a příroda
Kařez je klidná obec na rozhraní Středočeského a Plzeňského kraje. Její velkou výhodou je výborná dopravní dostupnost. Vlaková zastávka se spoji směrem na Prahu i Plzeň je jen přibližně 2 minuty chůze od domu. Nájezd na dálnici D5 zvládnete autem zhruba do 3 minut.
V obci najdete obecní úřad, mateřskou školu, základní školu a restauraci. Další občanskou vybavenost nabízí blízký Zbiroh nebo Hořovice.
Okolí potěší i milovníky přírody. Brdské lesy, cyklotrasy, výlety po okolí i klid venkovského prostředí dělají z Kařezu místo, kde se dá dobře bydlet, pracovat i odpočívat.
Pro koho je dům ideální?
Pro rodinu, která chce zahradu, prostor a dostupnost.
Pro pár, který hledá vlastní dům a nechce kupovat hotový kompromis.
Pro řemeslníka nebo podnikatele, který využije garáž, sklad a pozemek.
Pro každého, kdo chce bydlet podle sebe a postupně si dům dokončit podle svých představ.
Pokud hledáte místo, kde budete mít víc prostoru než v běžném městském bydlení, tahle nabídka stojí za osobní prohlídku.
Možná právě tady začíná vaše nová kapitola.
Ozvěte se nám rádi vás domem i zahradou osobně provedeme. K této nemovitosti máte připravené podrobné informace na: https://www.soukupovi-reality.cz/detail-nemovitosti/rodinny-dum-s-velkou-zahradou-a-garazi---karez
Pomocí naší hypoteční kalkulačky si můžete udělat orientační představu o výši měsíčních splátek hypotéky. O vše ostatní se pak postaráme my ve spolupráci s našimi obchodními partnery.
20 203 Kč
* Odhadovaná měsíční splátka vychází z výše úvěru Kč s pevnou úrokovou sazbou % po celou dobu trvání úvěru.
Uživatel serveru RealityMIX.cz (dále jen „Server“) dostupného na internetové adrese (URL) https://www.realitymix.cz, který provozuje společnost DALTEN media s.r.o., se sídlem Na Harfě 916/9a, Praha 9, 190 00, IČO: 271 35 306 (dále jen „Správce“) jako provozovateli tohoto Serveru uděluje svůj výslovný souhlas v souladu s ustanovením § 5 zákona č. 101/2000 Sb. O ochraně osobních údajů a o změně některých zákonů, v platném znění (dále jen „zákon o ochraně osobních údajů“), se zpracováním uživatelem poskytnutých osobních údajů a dalších dat.
Uživatel poskytuje Správci osobní údaje v rozsahu: jméno, příjmení, e-mailová adresa, telefonický kontakt a další data, a to z důvodu projeveného zájmu o nemovitost, kde prostřednictvím služby Serveru Správce osloví Uživatel inzerenta uvedeného v detailu
nemovitosti - QARA s.r.o. (IČ 01740113) se zájmem o jeho služby. Tato společnost je součástí seskupení/sítě/franšízového modelu realitních kanceláří, jejich seznam můžete zobrazit kliknutím na tento odkaz.
QARA s.r.o. Ostrava (IČ 01740113) , QARA s.r.o. Brno (IČ 01740113) , QARA s.r.o. (IČ 01740113)
Uživatel tyto osobní údaje poskytuje dobrovolně a bere na vědomí, že součástí služeb Správce, které Správce Uživateli poskytuje, je vyhledání všech Uživateli vyhovujících (dle parametrů - cena, typ nemovitosti, lokalita atd.) nemovitostí. Správce za tímto účelem provozuje aplikace Hlídací pes a newsletter. Tyto služby je možné z každého zaslaného emailu odhlásit. Souhlas se zpracováním osobních údajů Uživatel poskytuje Správci na dobu neurčitou s tím, že svůj udělený souhlas může Uživatel kdykoliv na drese správce info@realitymix.cz odvolat. Správce garantuje Uživateli i další práva uvedené v ustanovení §11 a §21 zákoba č. 101/200 Sb. Ve znění pozdějších předpisů.
Více informací o zpracování údajů získáte zde (realitymix.cz/zasady-ochrany-osobnich-udaju)