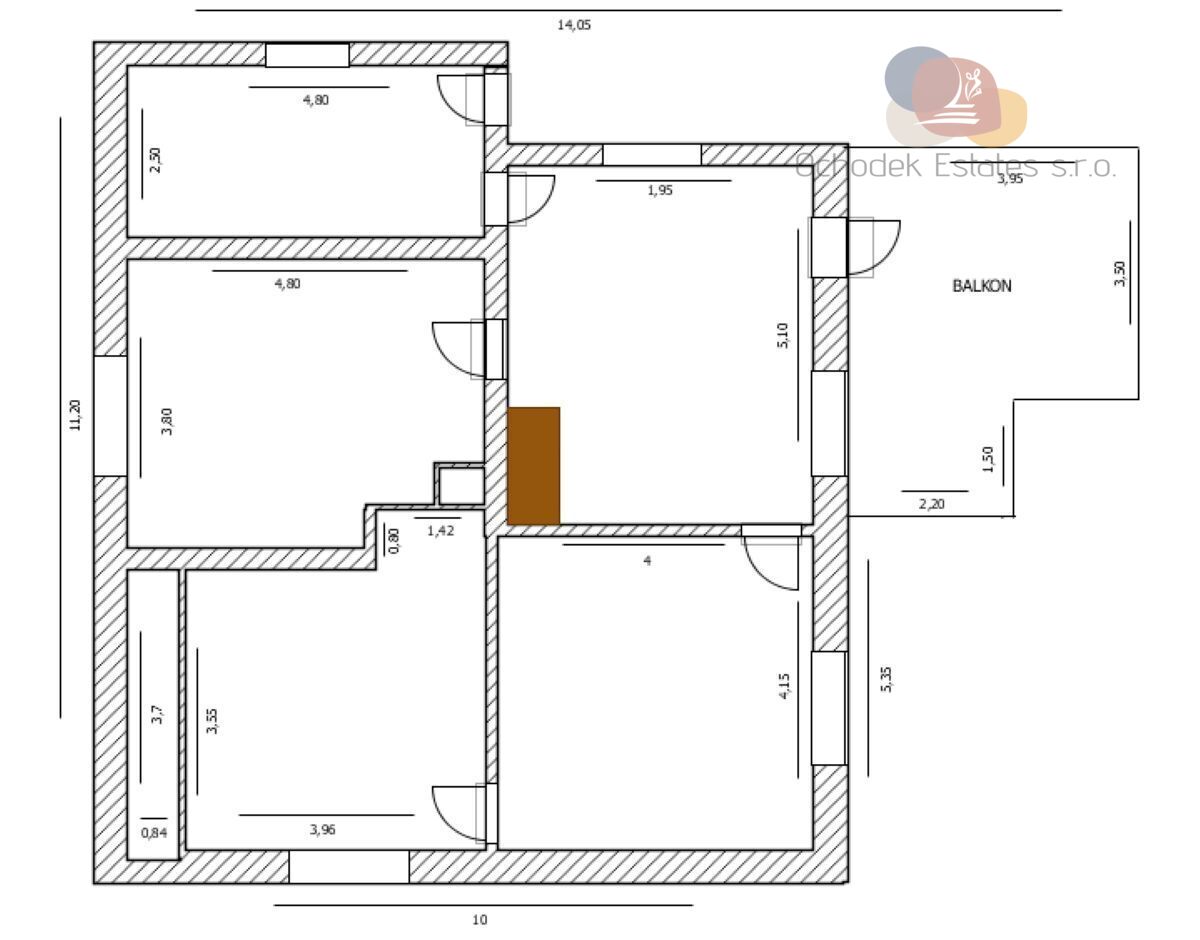
Pozemek 1936m2, dvě šopy, garáž, pergola, prostorné sklepy a hlavně velký dům dispozičně 6+1 (5+2).
Prostě spousta místa na život, smích i občasné ticho!
Tento samostatně stojící dům z roku 1933 dostal do vínku pevné základy, pozdější přestavbou byl rozšířen a upraven na dvougenerační bydlení, aby postupně dál vzkvétal a dobře se v něm žilo.
Nyní je dům vyklizený, čistý a vymalovaný na bílo. Je připraven na dokončení rekonstrukce. A co už je hotové? Střecha a zateplení půdy 10cm minerální vatou je z roku 1997, následně přeložená novou krytinou 2007, vytápění zajišťuje ekologický automatický kotel na peletky (2018) s UPS na pět dní (2024), záložní elektrokotel (2024) na občasné přitápění nebo pro delší zimní dovolenou, bojler, koupelna a chodba už má nový rozvod elektřiny (2023), v koupelně jsou nové obklady a prostorný sprchový kout (2023), jsou instalovaná nová plastová okna s trojskly (2024). Vně domu je dřevěná pergola (2018) a nový vjezd s parkováním pro 2-3 auta (2023) s pojízdnou bránou (2024).
Co vás určitě zaujme je množství přírodního světla v pokojích díky velkým oknům, spousta úložných prostor i parkovacích míst a zahrada, která čeká na vaše nápady.
Dříve bylo město Karviná a blízké okolí vnímáno negativně, dnes je to město velkých proměn a nadějí. Těžba končí, rozvíjí se lázeňství, příroda se zpátky zelená. Přijeďte se přesvědčit osobně, ráda vás tu provedu!
Pozn.: energetická třída D. Uvedená kupní cena je VČETNĚ zprostředkovatelského poplatku
Pomocí naší hypoteční kalkulačky si můžete udělat orientační představu o výši měsíčních splátek hypotéky. O vše ostatní se pak postaráme my ve spolupráci s našimi obchodními partnery.
17 410 Kč
* Odhadovaná měsíční splátka vychází z výše úvěru Kč s pevnou úrokovou sazbou % po celou dobu trvání úvěru.
Uživatel serveru RealityMIX.cz (dále jen „Server“) dostupného na internetové adrese (URL) https://www.realitymix.cz, který provozuje společnost DALTEN media s.r.o., se sídlem Na Harfě 916/9a, Praha 9, 190 00, IČO: 271 35 306 (dále jen „Správce“) jako provozovateli tohoto Serveru uděluje svůj výslovný souhlas v souladu s ustanovením § 5 zákona č. 101/2000 Sb. O ochraně osobních údajů a o změně některých zákonů, v platném znění (dále jen „zákon o ochraně osobních údajů“), se zpracováním uživatelem poskytnutých osobních údajů a dalších dat.
Uživatel poskytuje Správci osobní údaje v rozsahu: jméno, příjmení, e-mailová adresa, telefonický kontakt a další data, a to z důvodu projeveného zájmu o nemovitost, kde prostřednictvím služby Serveru Správce osloví Uživatel inzerenta uvedeného v detailu
nemovitosti - Ochodek Estates s.r.o. (IČ 19934661) se zájmem o jeho služby.
Uživatel tyto osobní údaje poskytuje dobrovolně a bere na vědomí, že součástí služeb Správce, které Správce Uživateli poskytuje, je vyhledání všech Uživateli vyhovujících (dle parametrů - cena, typ nemovitosti, lokalita atd.) nemovitostí. Správce za tímto účelem provozuje aplikace Hlídací pes a newsletter. Tyto služby je možné z každého zaslaného emailu odhlásit. Souhlas se zpracováním osobních údajů Uživatel poskytuje Správci na dobu neurčitou s tím, že svůj udělený souhlas může Uživatel kdykoliv na drese správce info@realitymix.cz odvolat. Správce garantuje Uživateli i další práva uvedené v ustanovení §11 a §21 zákoba č. 101/200 Sb. Ve znění pozdějších předpisů.
Více informací o zpracování údajů získáte zde (realitymix.cz/zasady-ochrany-osobnich-udaju)