Pronájem klimatizovaných kanceláří (až 202 m2) s vlastním parkováním
Hledáte pro své podnikání zázemí, které kombinuje vysoký kancelářský standard s výhodami dobré dopravní dostupnosti a bezproblémového parkování?
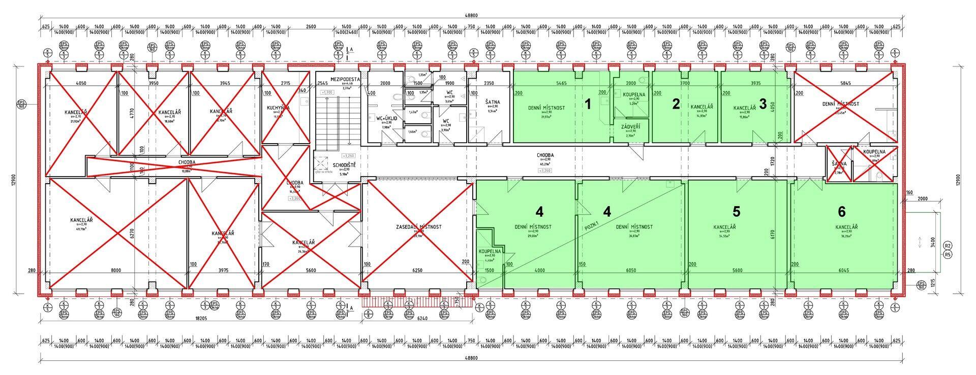
Dovolujeme si Vám nabídnout pronájem klimatizovaných kanceláří s vlastním parkováním v areálu MATYAS PARK v Karviné Starém Městě. Nabízíme prostory, které se přizpůsobí Vašim potřebám – od jednotlivých kanceláří (15 m2) až po téměř polovinu patra (202 m2).
Prostory se nacházejí ve 2. NP budovy po celkové revitalizaci (zateplení, nová okna, fasáda, …). Dispozice je variabilní a umožňuje pronájem samostatných kanceláří se společným zázemím i manažerských apartmánů/kanceláří s vlastním zázemím (tři kanceláře disponují vlastní koupelnou s WC). Možné je i uzavření více kanceláří pod jeden společný vstup. Všechny kanceláře jsou klimatizované. Ke každé kanceláři jsou k dispozici až 2 parkovací místa uvnitř areálu a na parkovišti před areálem. PENB se nyní zpracovává, a proto zatím uvádíme třídu G *).
Aktuálně k dispozici posledních 7 kanceláří o celkové podlahové ploše 202,30 m2:
1) Kancelář 21,97 m2 + koupelna s WC 5,20 m2 + zádveří 2,70 m2 (celkem 29,87 m2)
2) Kancelář 14,83 m2
3) Kancelář 15,86 m2
4) 2 propojené kanceláře 36,87 m2 a 29,60 m2 + koupelna s WC 4,46 m2 (celkem 70,93 m2)
5) Kancelář 34,55 m2
6) Kancelář 36,26 m2
Cena 100,- Kč/m2/měsíc za kanceláře se společným zázemím a 120,- Kč/m2/měsíc za kanceláře s vlastním zázemím (bez DPH a bez energií).
Celý areál je napojen na EZS připojený na PCO (vč. chráněného plotu a kamerového systému se záznamem) a je přístupný v režimu 24/7.
Ke kancelářím je možno pronajmout další prostory v přízemí budovy vhodné pro umístění obchodu, skladování nebo drobnou výrobu i venkovní skladovací plochy. V případě dlouhodobé spolupráce nabízí majitel možnost výstavby a následného pronájmu nové montované skladovací haly (+250 m2) v těsné blízkosti nabízených kanceláří.
Zavolejte nám, prohlídky jsou možné po předchozí domluvě.
Cena:
110 Kč / (za m2/měsíc)
Poznámka:
cena 100-120 Kč/m2/měsíc - dle typu, + DPH a energie, k jednání
Uživatel serveru RealityMIX.cz (dále jen „Server“) dostupného na internetové adrese (URL) https://www.realitymix.cz, který provozuje společnost DALTEN media s.r.o., se sídlem Na Harfě 916/9a, Praha 9, 190 00, IČO: 271 35 306 (dále jen „Správce“) jako provozovateli tohoto Serveru uděluje svůj výslovný souhlas v souladu s ustanovením § 5 zákona č. 101/2000 Sb. O ochraně osobních údajů a o změně některých zákonů, v platném znění (dále jen „zákon o ochraně osobních údajů“), se zpracováním uživatelem poskytnutých osobních údajů a dalších dat.
Uživatel poskytuje Správci osobní údaje v rozsahu: jméno, příjmení, e-mailová adresa, telefonický kontakt a další data, a to z důvodu projeveného zájmu o nemovitost, kde prostřednictvím služby Serveru Správce osloví Uživatel inzerenta uvedeného v detailu
nemovitosti - GENERA s.r.o. (IČ 47541075) se zájmem o jeho služby.
Uživatel tyto osobní údaje poskytuje dobrovolně a bere na vědomí, že součástí služeb Správce, které Správce Uživateli poskytuje, je vyhledání všech Uživateli vyhovujících (dle parametrů - cena, typ nemovitosti, lokalita atd.) nemovitostí. Správce za tímto účelem provozuje aplikace Hlídací pes a newsletter. Tyto služby je možné z každého zaslaného emailu odhlásit. Souhlas se zpracováním osobních údajů Uživatel poskytuje Správci na dobu neurčitou s tím, že svůj udělený souhlas může Uživatel kdykoliv na drese správce info@realitymix.cz odvolat. Správce garantuje Uživateli i další práva uvedené v ustanovení §11 a §21 zákoba č. 101/200 Sb. Ve znění pozdějších předpisů.
Více informací o zpracování údajů získáte zde (realitymix.cz/zasady-ochrany-osobnich-udaju)