KOMFORTNÍ APARTMÁNY NA ŠUMAVĚ V ULICI ČESKÁ – KAŠPERSKÉ HORY,SLEVA PRO PRVNÍ ZÁJEMCE
Výrazná sleva pro první zájemce! Výstavba zahájena.
Lokalita: ŠUMAVA, KAŠPERSKÉ HORY – nejvýše položené gotické město v Čechách - brána do Šumavského národního parku – v nadm.výšce 750 m n.m. s kompletní infrastrukturou pro malebné a pohodové bydlení i rekreaci na Šumavě. Hotely, restaurace, Šumavské bylinkové lázně. Pro sportovce je k dispozici nová moderní víceúčelová hala, Skiareál s možností večerního lyžování a Šumavský národní park pro cykloturistiku i milovníky bílé stopy.
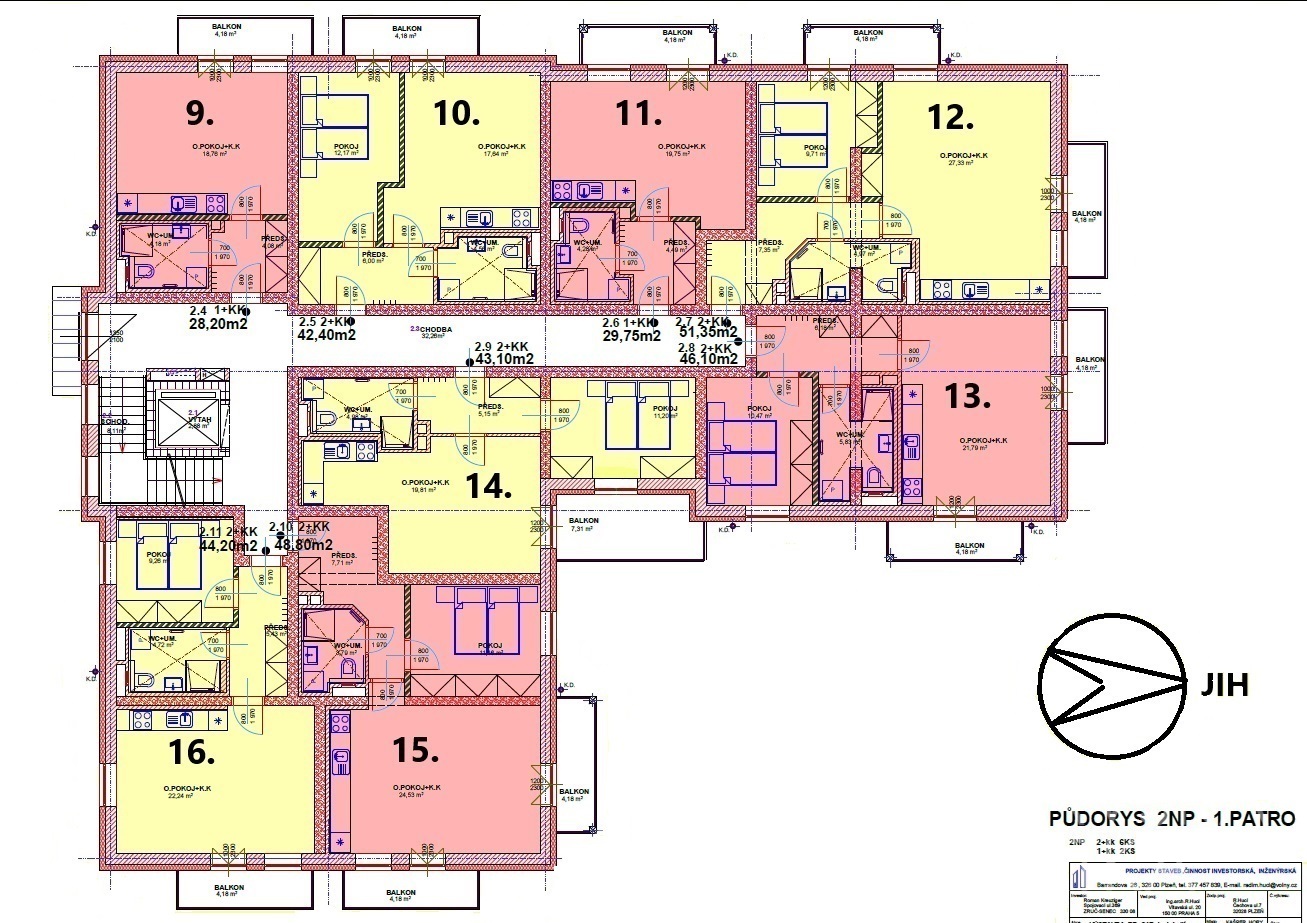
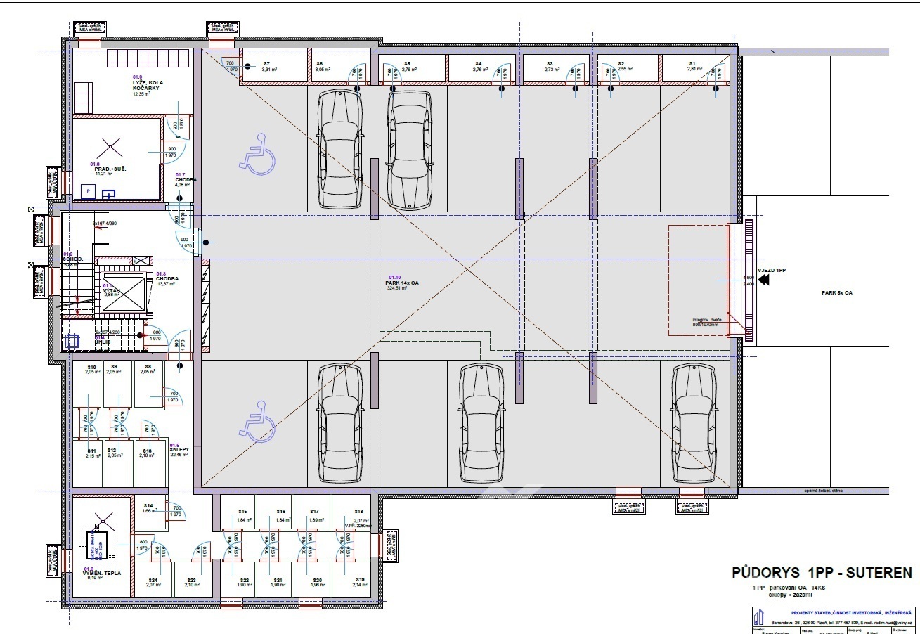
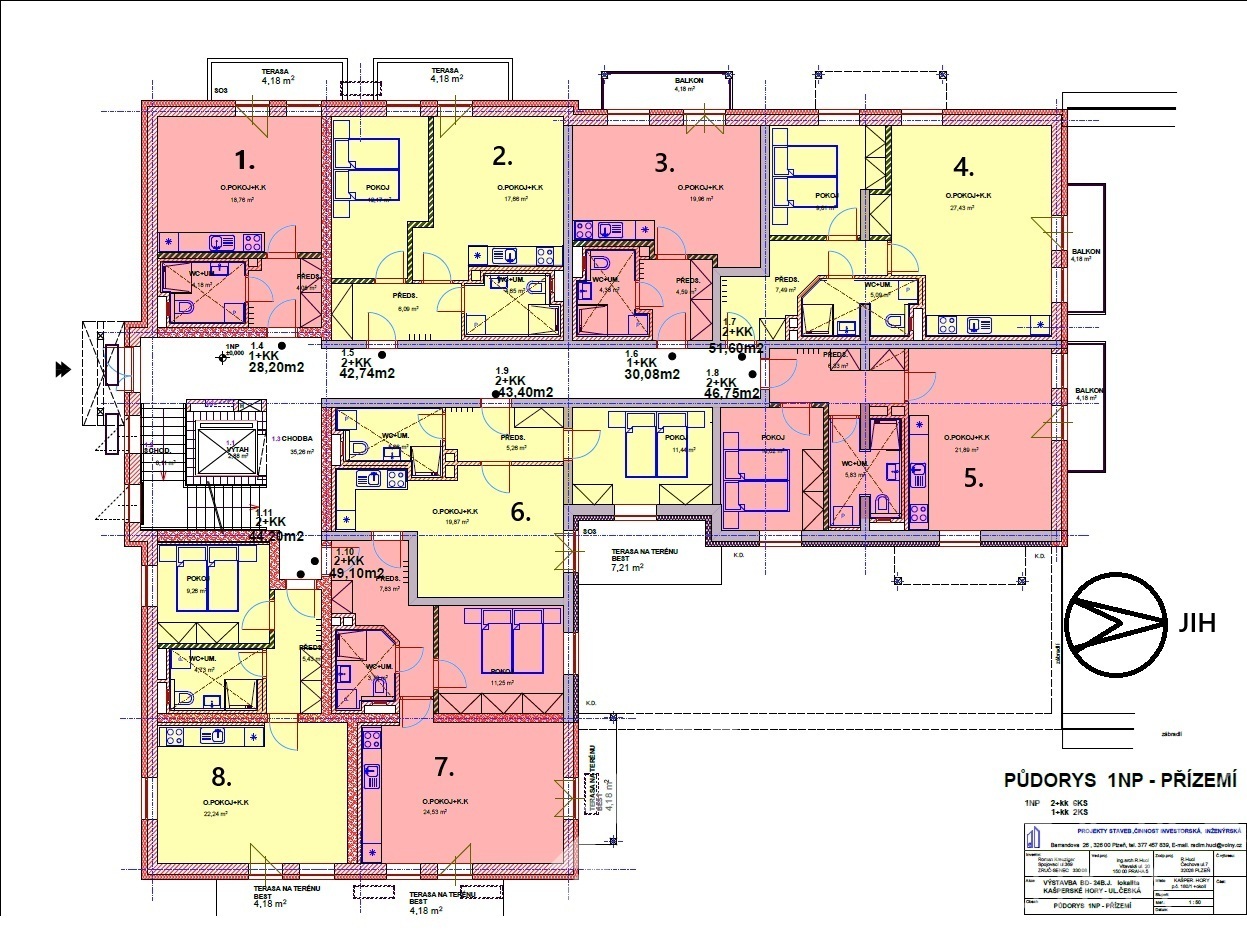
Komfortní apartmány – byty do osobního vlastnictví v klasicky zděném domě o 24 bytech vybavené výtahem a to již od suterénu. V bytovém domě bude 6 bytů 1+kk a 18 bytů 2+kk. Realizovány budou podle kvalitního autorského projektu arch. Radima Hucla a dokončeny na jaře 2026. V krásné poloze na jižně orientovaném pozemku, cca 4 min. pěší chůze od náměstí. Součástí této dobré investice je sklep a koupě venkovního parkovacího stání ke každému bytu nebo vnitřního krytého parkovacího stání. Dobře prosvětlené byty s krásným výhledem budou vybaveny kvalitními standardy, většina z nich mají balkóny nebo předzahrádku. Připojení na městskou výtopnu biomasou, samostatné měření tepla a spotřeby elektřiny v každém bytu. Standardy: podrobné info zašleme na vyžádání. CENY: info v realitní kanceláři u makléřky projektu.
Financování
Celková kupní cena se vztahuje na celkovou sumu za bytovou jednotku, příslušenství (balkon,terasa,sklep),venkovní parkovací stání nebo vnitřní parkovací stání, spoluvlastnický podíl na pozemku pod budovou a kolem budovy, na společných částech domu a veškerých inženýrských sítí a rozvodech, resp. přípojkách, které budou v podílovém spoluvlastnictví vlastníků jednotek, vybavení zkolaudované bytové jednotky a DPH ve výši podle platného zákona. Pokud si nebudete přát žádné klientské úpravy (změna vybavení bytu, stavební úpravy atd.) – bude sjednaná cena konečná.
Celková kupní cena bude splatná takto:
1. Rezervační záloha ve výši 100.000,-Kč bude zájemcem o koupi uhrazena do 5 dnů po podpisu rezervační smlouvy na depozitní účet zprostředkovatele Šumavské realitní kanceláře a započítává se na celkovou kupní cenu.
Další splátky na kupní cenu postupně na základě Smlouvy o budoucí smlouvě kupní na účet investora stavby dle dohodnuté specifikace, která bude uvedena v jejím znění – a to:
2. druhou splátku do deseti dnů po podpisu Smlouvy o smlouvě budoucí kupní do výše 10% z ceny bytu
3. třetí splátku do deseti dnů poté, kdy bude budoucímu kupujícímu oznámeno, že byla dokončená hrubá stavba ve výši 40% z ceny bytu
4. čtvrtou splátku do deseti dnů poté, kdy mu bude investorem stavby oznámeno, že byly dokončeny hrubé rozvody elektro, vody, odpadů v dané bytové jednotce ve výši 30% z ceny bytu
5. pátou splátku ve výši zbytku kupní ceny do deseti dnů poté, kdy mu bude zprostředkovatelem oznámeno, že byl vydán kolaudační souhlas stavby, ve které se nachází bytová jednotka
Cena:
Cena na vyžádání
Poznámka:
Info o ceně u makléřky projektu
Dispozice/podlahová plocha:
2+kk/51 m²
Číslo zakázky:
REALITYMIX-2024015
Podrobné informace
Dispozice bytu:2+kk
Číslo podlaží v domě:2
Počet podlaží objektu:3
Užitná plocha:51 m²
Celková podlahová plocha:51 m²
Druh objektu:cihlová
Stav objektu:ve výstavbě (hrubá stavba)
Vlastnictví:osobní
Umístění objektu:klidná část obce
Elektřina:Elektro - 230 V
Voda:Voda - dálkový vodovod
Topení:Ústřední - dálkové
Odpad:Kanalizace
Energetická náročnost budovy:B - Velmi úsporná
Energetický ukazatel podle vyhlášky:č. 264/2020 Sb.
Uživatel serveru RealityMIX.cz (dále jen „Server“) dostupného na internetové adrese (URL) https://www.realitymix.cz, který provozuje společnost DALTEN media s.r.o., se sídlem Na Harfě 916/9a, Praha 9, 190 00, IČO: 271 35 306 (dále jen „Správce“) jako provozovateli tohoto Serveru uděluje svůj výslovný souhlas v souladu s ustanovením § 5 zákona č. 101/2000 Sb. O ochraně osobních údajů a o změně některých zákonů, v platném znění (dále jen „zákon o ochraně osobních údajů“), se zpracováním uživatelem poskytnutých osobních údajů a dalších dat.
Uživatel poskytuje Správci osobní údaje v rozsahu: jméno, příjmení, e-mailová adresa, telefonický kontakt a další data, a to z důvodu projeveného zájmu o nemovitost, kde prostřednictvím služby Serveru Správce osloví Uživatel inzerenta uvedeného v detailu
nemovitosti - Šumavská realitka (IČ 21318182) se zájmem o jeho služby.
Uživatel tyto osobní údaje poskytuje dobrovolně a bere na vědomí, že součástí služeb Správce, které Správce Uživateli poskytuje, je vyhledání všech Uživateli vyhovujících (dle parametrů - cena, typ nemovitosti, lokalita atd.) nemovitostí. Správce za tímto účelem provozuje aplikace Hlídací pes a newsletter. Tyto služby je možné z každého zaslaného emailu odhlásit. Souhlas se zpracováním osobních údajů Uživatel poskytuje Správci na dobu neurčitou s tím, že svůj udělený souhlas může Uživatel kdykoliv na drese správce info@realitymix.cz odvolat. Správce garantuje Uživateli i další práva uvedené v ustanovení §11 a §21 zákoba č. 101/200 Sb. Ve znění pozdějších předpisů.
Více informací o zpracování údajů získáte zde (realitymix.cz/zasady-ochrany-osobnich-udaju)