MODERNÍ 2+KK S VELKÝM BALKONEM A VÝHLEDEM NA ŠUMAVU, PARKOVÁNÍ V DOMĚ, NOVOSTAVBA SE ZÁRUKOU,
Moderní 2+kk s velkým balkonem a výhledem na Šumavu, parkování v domě, novostavba se zárukou.
Kašperské Hory jsou krásné historické město s rozvinutou infrastrukturou.
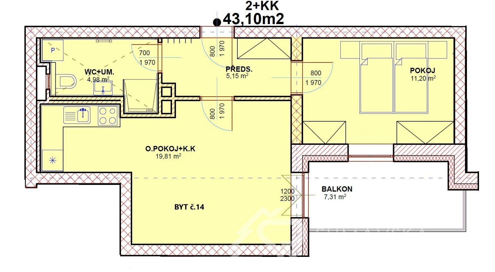
Nabízíme zde k prodeji světlý a moderní byt o dispozici 2+kk a výměře 43 m², situovaný ve 2. nadzemním podlaží právě dokončeného bytového domu s výtahem (celkem 24 bytů).
Dominantou bytu je prostorný balkon o velikosti 7,3 m² orientovaný na jihozápad, který nabízí krásný výhled na Šumavu a dostatek slunce po většinu dne. Obývací pokoj s francouzskými dveřmi na balkon plynule navazuje na kuchyňský kout umístěný v praktickém zálivu. Ložnice má vlastní okno směrem na balkon, což zajišťuje příjemnou atmosféru i dostatek světla.
Koupelna je vybavena sprchovým koutem, závěsným WC, umyvadlem a vyhřívaným žebříkem. Vše v bytě je zcela nové a vztahuje se na něj záruka 5 let.
Velkou výhodou je kryté parkovací stání v suterénu domu, kam pohodlně dojedete výtahem přímo z patra bytu. K bytu je samozřejmě i sklep.
Dům je napojen na ekologické městské vytápění na biomasu, které představuje velmi úsporný a šetrný způsob vytápění s nízkými provozními náklady.
Ideální volba jak pro vlastní bydlení, tak i jako investice. Cenu vám rádi sdělíme.
Cena:
Cena na vyžádání
Poznámka:
informace o ceně v RK
Dispozice/podlahová plocha:
2+kk/43 m²
Číslo zakázky:
REALITYMIX-2026019
Podrobné informace
Dispozice bytu:2+kk
Číslo podlaží v domě:2
Počet podlaží objektu:1
Užitná plocha:43 m²
Celková podlahová plocha:43 m²
Druh objektu:cihlová
Stav objektu:novostavba
Vlastnictví:osobní
Umístění objektu:klidná část obce
Elektřina:Elektro - 230 V
Voda:Voda - dálkový vodovod
Topení:Ústřední - dálkové
Odpad:Kanalizace
Energetická náročnost budovy:B - Velmi úsporná
Energetický ukazatel podle vyhlášky:č. 264/2020 Sb.
Uživatel serveru RealityMIX.cz (dále jen „Server“) dostupného na internetové adrese (URL) https://www.realitymix.cz, který provozuje společnost DALTEN media s.r.o., se sídlem Na Harfě 916/9a, Praha 9, 190 00, IČO: 271 35 306 (dále jen „Správce“) jako provozovateli tohoto Serveru uděluje svůj výslovný souhlas v souladu s ustanovením § 5 zákona č. 101/2000 Sb. O ochraně osobních údajů a o změně některých zákonů, v platném znění (dále jen „zákon o ochraně osobních údajů“), se zpracováním uživatelem poskytnutých osobních údajů a dalších dat.
Uživatel poskytuje Správci osobní údaje v rozsahu: jméno, příjmení, e-mailová adresa, telefonický kontakt a další data, a to z důvodu projeveného zájmu o nemovitost, kde prostřednictvím služby Serveru Správce osloví Uživatel inzerenta uvedeného v detailu
nemovitosti - Šumavská realitka (IČ 21318182) se zájmem o jeho služby.
Uživatel tyto osobní údaje poskytuje dobrovolně a bere na vědomí, že součástí služeb Správce, které Správce Uživateli poskytuje, je vyhledání všech Uživateli vyhovujících (dle parametrů - cena, typ nemovitosti, lokalita atd.) nemovitostí. Správce za tímto účelem provozuje aplikace Hlídací pes a newsletter. Tyto služby je možné z každého zaslaného emailu odhlásit. Souhlas se zpracováním osobních údajů Uživatel poskytuje Správci na dobu neurčitou s tím, že svůj udělený souhlas může Uživatel kdykoliv na drese správce info@realitymix.cz odvolat. Správce garantuje Uživateli i další práva uvedené v ustanovení §11 a §21 zákoba č. 101/200 Sb. Ve znění pozdějších předpisů.
Více informací o zpracování údajů získáte zde (realitymix.cz/zasady-ochrany-osobnich-udaju)