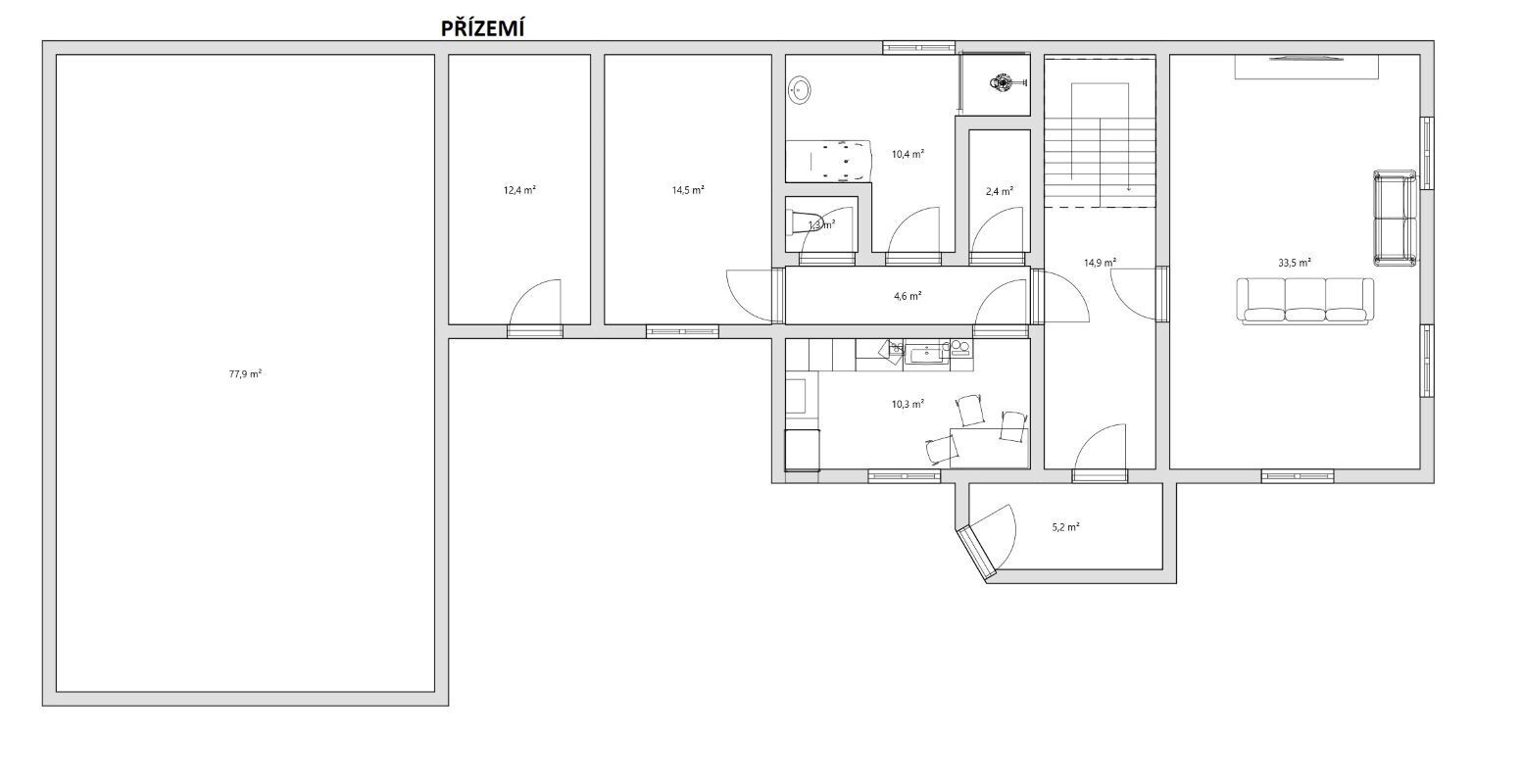
SLEVA této nemovitosti - Nabízíme na prodej prostorný rodinný dům o dispozici 5+1 v Kestřanech okres Písek. Kolaudace tohoto zděného patrového domu proběhla v roce 2019. V přízemí se nachází kuchyně, obývací pokoj se vstupem na menší terasu, koupelna s vanou a sprchovým koutem, samostatná toaleta a spíž. V patře jsou dva dětské pokoje, dvě prostorné ložnice se vstupem na balkón, technická místnost s toaletou ( možnost předělání na koupelnu se sprchovým koutem). Na dům navazuje pergola, kotelna, dílna a stodola, která může sloužit jako garáž. Dům je částečně podsklepen, napojen na obecní vodovod. Kanalizace svedena do jímky. Vytápění kotlem na tuhá paliva s radiátory. Při prodeji bude hotové zateplení celého domu, na terase položena dlažba. Celková plocha oploceného pozemku je 650 m2. V obci je základní občanská vybavenost, kompletní služby jsou k dispozici v nedalekém Písku či Strakonicích. Dům se nachází v klidné části obce, obklopen zelení. Výhodné financování vám rádi zprostředkujeme.
Pomocí naší hypoteční kalkulačky si můžete udělat orientační představu o výši měsíčních splátek hypotéky. O vše ostatní se pak postaráme my ve spolupráci s našimi obchodními partnery.
30 770 Kč
* Odhadovaná měsíční splátka vychází z výše úvěru Kč s pevnou úrokovou sazbou % po celou dobu trvání úvěru.
Uživatel serveru RealityMIX.cz (dále jen „Server“) dostupného na internetové adrese (URL) https://www.realitymix.cz, který provozuje společnost DALTEN media s.r.o., se sídlem Na Harfě 916/9a, Praha 9, 190 00, IČO: 271 35 306 (dále jen „Správce“) jako provozovateli tohoto Serveru uděluje svůj výslovný souhlas v souladu s ustanovením § 5 zákona č. 101/2000 Sb. O ochraně osobních údajů a o změně některých zákonů, v platném znění (dále jen „zákon o ochraně osobních údajů“), se zpracováním uživatelem poskytnutých osobních údajů a dalších dat.
Uživatel poskytuje Správci osobní údaje v rozsahu: jméno, příjmení, e-mailová adresa, telefonický kontakt a další data, a to z důvodu projeveného zájmu o nemovitost, kde prostřednictvím služby Serveru Správce osloví Uživatel inzerenta uvedeného v detailu
nemovitosti - Nemovitosti Staněk s.r.o. (IČ 60851457) se zájmem o jeho služby.
Uživatel tyto osobní údaje poskytuje dobrovolně a bere na vědomí, že součástí služeb Správce, které Správce Uživateli poskytuje, je vyhledání všech Uživateli vyhovujících (dle parametrů - cena, typ nemovitosti, lokalita atd.) nemovitostí. Správce za tímto účelem provozuje aplikace Hlídací pes a newsletter. Tyto služby je možné z každého zaslaného emailu odhlásit. Souhlas se zpracováním osobních údajů Uživatel poskytuje Správci na dobu neurčitou s tím, že svůj udělený souhlas může Uživatel kdykoliv na drese správce info@realitymix.cz odvolat. Správce garantuje Uživateli i další práva uvedené v ustanovení §11 a §21 zákoba č. 101/200 Sb. Ve znění pozdějších předpisů.
Více informací o zpracování údajů získáte zde (realitymix.cz/zasady-ochrany-osobnich-udaju)