Chalupa s pozemkem 10 000m2 – ideální pro podnikání i bydlení
Hledáte klidné bydlení v přírodě, investiční příležitost v turistickém ruchu, nebo rovnou obojí? Pak jste právě našli to pravé místo.
Jen 500 metrů od civilizace, na klidném místě obklopeném přírodou, se nachází rodinný dům s téměř 10 000 m² pozemku. Dům s pensionem pohodlně ubytuje až šest rodin, které mají k dispozici dvě plně vybavené kuchyně a několik koupelen. Součástí je také prostorný byt 3+kk s terasou, kde současně bydlí samotní majitelé – ideální pro spojení podnikání s vlastním bydlením.
Pozemek dále nabízí stylovou společenskou boudu s barem, výčepem a kapacitou cca 30 míst k sezení - skvělé místo pro oslavy, svatby nebo třeba dětskou hernu. Díky velkorysému prostoru nechybí ani taneční parket!
- Perfektní poloha pro aktivní život i relax
- 5 minut ke sportovnímu středisku České Petrovice (celoročně v provozu)
- Přímý vstup do přírody – třeba na pašeráckou stezku kolem pohraničních bunkrů
- 10 minut k přehradě Pastviny (koupání, bobová dráha)
- 30 minut na Dolní Moravu, lyžařského areálu Říčky nebo na nákupy do Polska
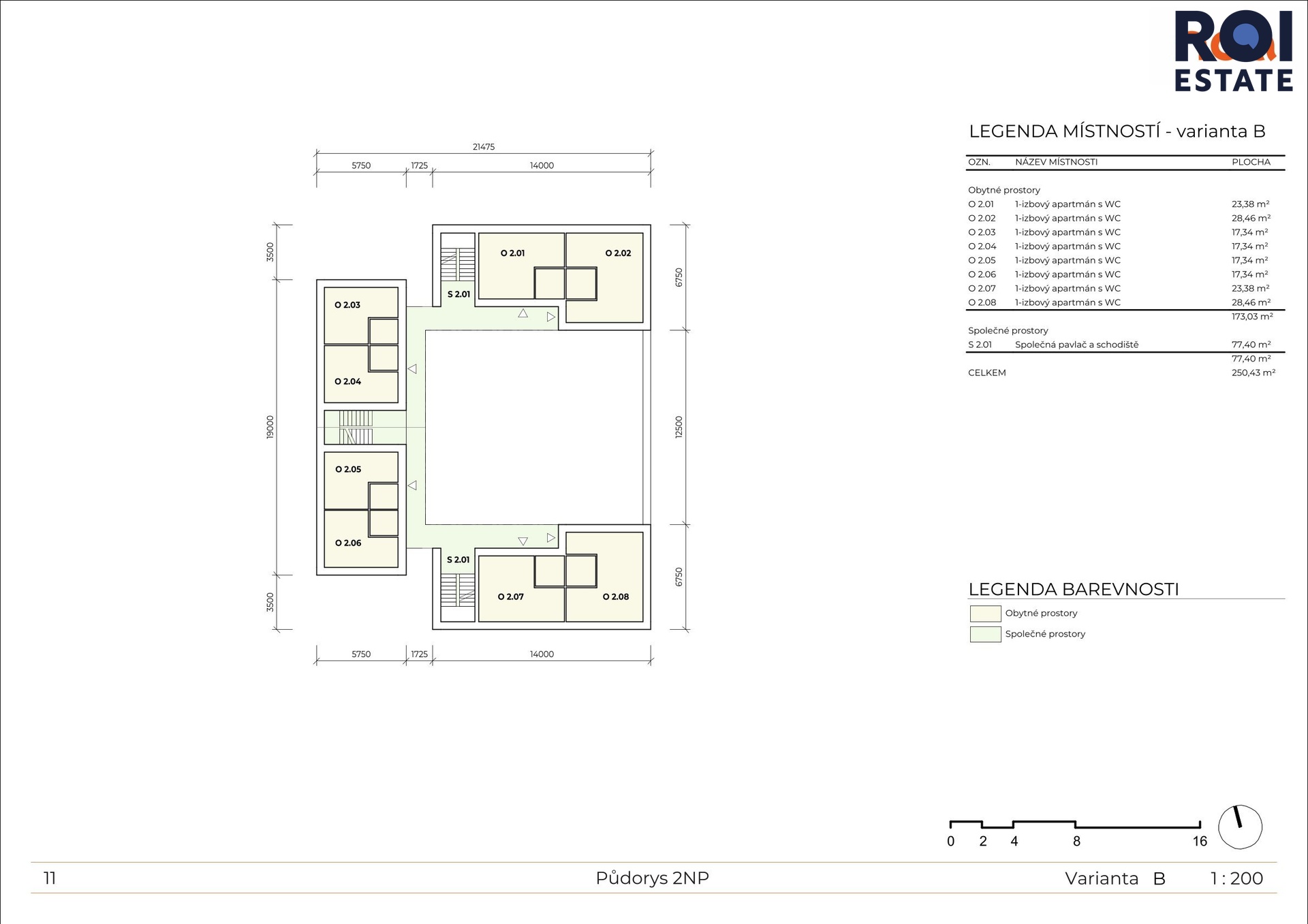
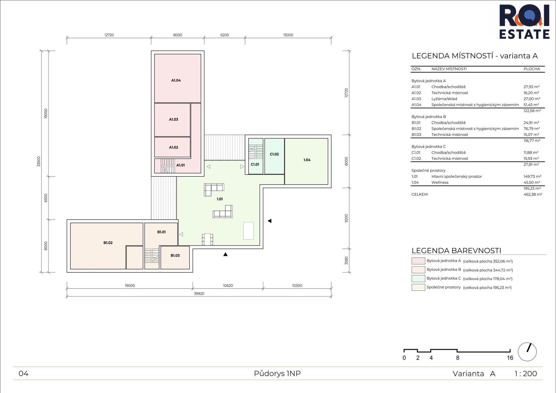
Na pozemku navíc máme vytvořené dvě studie využitelnosti, které jsou projednané na stavebním úřadě i na obci a zobrazují tak skutečnou využitelnost pozemku jak při zachování současné stavby, tak při maximalistické variantě někdy v budoucnu.
Hledáte jedinečné místo s atmosférou a potenciálem? Pozemek i současný dům nabízí skvělou investiční příležitost i kouzelné bydlení v souladu s přírodou. Přijďte se přesvědčit osobně!
Pomocí naší hypoteční kalkulačky si můžete udělat orientační představu o výši měsíčních splátek hypotéky. O vše ostatní se pak postaráme my ve spolupráci s našimi obchodními partnery.
80 934 Kč
* Odhadovaná měsíční splátka vychází z výše úvěru Kč s pevnou úrokovou sazbou % po celou dobu trvání úvěru.
Uživatel serveru RealityMIX.cz (dále jen „Server“) dostupného na internetové adrese (URL) https://www.realitymix.cz, který provozuje společnost DALTEN media s.r.o., se sídlem Na Harfě 916/9a, Praha 9, 190 00, IČO: 271 35 306 (dále jen „Správce“) jako provozovateli tohoto Serveru uděluje svůj výslovný souhlas v souladu s ustanovením § 5 zákona č. 101/2000 Sb. O ochraně osobních údajů a o změně některých zákonů, v platném znění (dále jen „zákon o ochraně osobních údajů“), se zpracováním uživatelem poskytnutých osobních údajů a dalších dat.
Uživatel poskytuje Správci osobní údaje v rozsahu: jméno, příjmení, e-mailová adresa, telefonický kontakt a další data, a to z důvodu projeveného zájmu o nemovitost, kde prostřednictvím služby Serveru Správce osloví Uživatel inzerenta uvedeného v detailu
nemovitosti - ROI Estate (IČ 04426169) se zájmem o jeho služby.
Uživatel tyto osobní údaje poskytuje dobrovolně a bere na vědomí, že součástí služeb Správce, které Správce Uživateli poskytuje, je vyhledání všech Uživateli vyhovujících (dle parametrů - cena, typ nemovitosti, lokalita atd.) nemovitostí. Správce za tímto účelem provozuje aplikace Hlídací pes a newsletter. Tyto služby je možné z každého zaslaného emailu odhlásit. Souhlas se zpracováním osobních údajů Uživatel poskytuje Správci na dobu neurčitou s tím, že svůj udělený souhlas může Uživatel kdykoliv na drese správce info@realitymix.cz odvolat. Správce garantuje Uživateli i další práva uvedené v ustanovení §11 a §21 zákoba č. 101/200 Sb. Ve znění pozdějších předpisů.
Více informací o zpracování údajů získáte zde (realitymix.cz/zasady-ochrany-osobnich-udaju)