Nabízíme Vám k prodeji chalupu/dům, s fungující restaurací, v samém srdci obce Kokořín.
Dům je určen pro každého, kdo ocení život v přírodě, na turisticky atraktivním místě, a využije tak potenciál vlastního podnikání v gastronomii, s možností bydlení, nebo využije celý dům pouze pro účely bydlení.
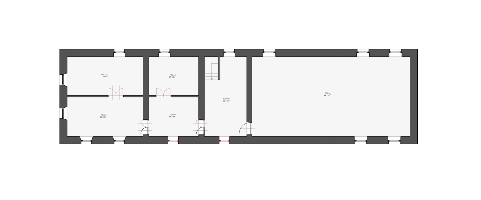
Restaurace je zkolaudována, a v celém domě proběhla rekonstrukce elektrických rozvodů, topení, vodovodních trubek a odpadních trubek.
Nabízí se tu velká řada možností s rozšířením služeb na ubytování(pension, apartmány), s využitím volných ploch v domě nebo ve stodole která je součástí pozemku.
Další možností je zvětšit si obytnou plochu pro vlastní potřeby.
Objekt je celý uzavřený se vstupní bránou, pro účely restaurace je k dispozici venkovní posezení, pro vlastní potřeby je k dispozici zahrada.
Na zahradě je mnoho ovocných stromů a okrasných a keřů, na dvorku je momentálně nevyužitý prodejní stánek.
Stodola je v současnosti využívána jako sklad surovin a nápojů, v druhé části je dílna.
Pomocí naší hypoteční kalkulačky si můžete udělat orientační představu o výši měsíčních splátek hypotéky. O vše ostatní se pak postaráme my ve spolupráci s našimi obchodními partnery.
40 447 Kč
* Odhadovaná měsíční splátka vychází z výše úvěru Kč s pevnou úrokovou sazbou % po celou dobu trvání úvěru.
Uživatel serveru RealityMIX.cz (dále jen „Server“) dostupného na internetové adrese (URL) https://www.realitymix.cz, který provozuje společnost DALTEN media s.r.o., se sídlem Na Harfě 916/9a, Praha 9, 190 00, IČO: 271 35 306 (dále jen „Správce“) jako provozovateli tohoto Serveru uděluje svůj výslovný souhlas v souladu s ustanovením § 5 zákona č. 101/2000 Sb. O ochraně osobních údajů a o změně některých zákonů, v platném znění (dále jen „zákon o ochraně osobních údajů“), se zpracováním uživatelem poskytnutých osobních údajů a dalších dat.
Uživatel poskytuje Správci osobní údaje v rozsahu: jméno, příjmení, e-mailová adresa, telefonický kontakt a další data, a to z důvodu projeveného zájmu o nemovitost, kde prostřednictvím služby Serveru Správce osloví Uživatel inzerenta uvedeného v detailu
nemovitosti - DMP reality s.r.o. (IČ 13968386) se zájmem o jeho služby.
Uživatel tyto osobní údaje poskytuje dobrovolně a bere na vědomí, že součástí služeb Správce, které Správce Uživateli poskytuje, je vyhledání všech Uživateli vyhovujících (dle parametrů - cena, typ nemovitosti, lokalita atd.) nemovitostí. Správce za tímto účelem provozuje aplikace Hlídací pes a newsletter. Tyto služby je možné z každého zaslaného emailu odhlásit. Souhlas se zpracováním osobních údajů Uživatel poskytuje Správci na dobu neurčitou s tím, že svůj udělený souhlas může Uživatel kdykoliv na drese správce info@realitymix.cz odvolat. Správce garantuje Uživateli i další práva uvedené v ustanovení §11 a §21 zákoba č. 101/200 Sb. Ve znění pozdějších předpisů.
Více informací o zpracování údajů získáte zde (realitymix.cz/zasady-ochrany-osobnich-udaju)