Prodej komerčních prostor 544 m2, Kmochova 561, Kolín
Dobrý den,
pokud jste investor, podnikatel nebo developer hledající výjimečný projekt v centru města, zbystřete.
Nabízím k prodeji jedinečnou nemovitost přímo v centru města Kolína, na adrese Kmochova 561. Jedná se o známý objekt s výraznou historií a silným investičním potenciálem. Budova není památkově chráněna, což umožňuje široké možnosti budoucího využití či přestavby.
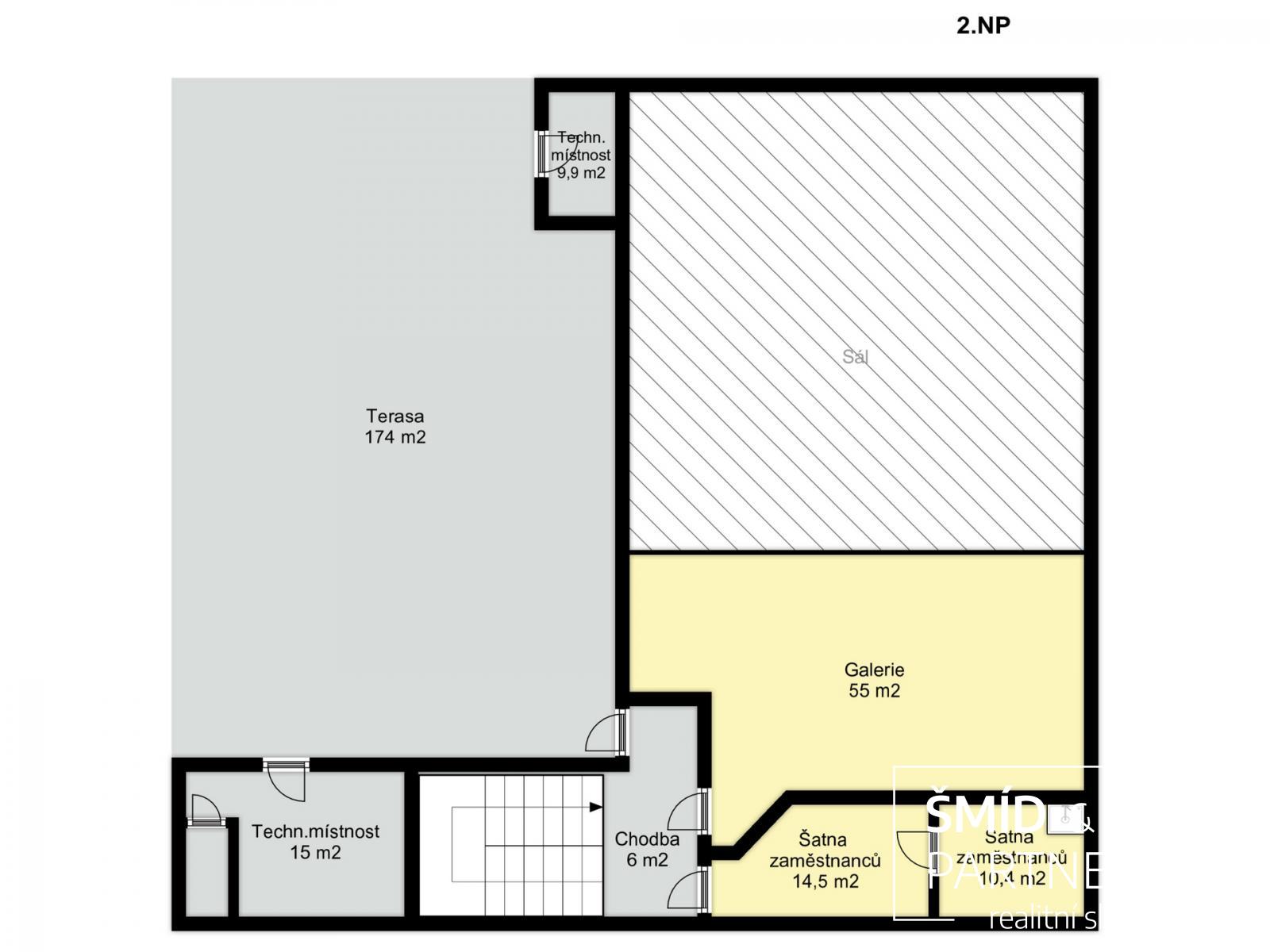
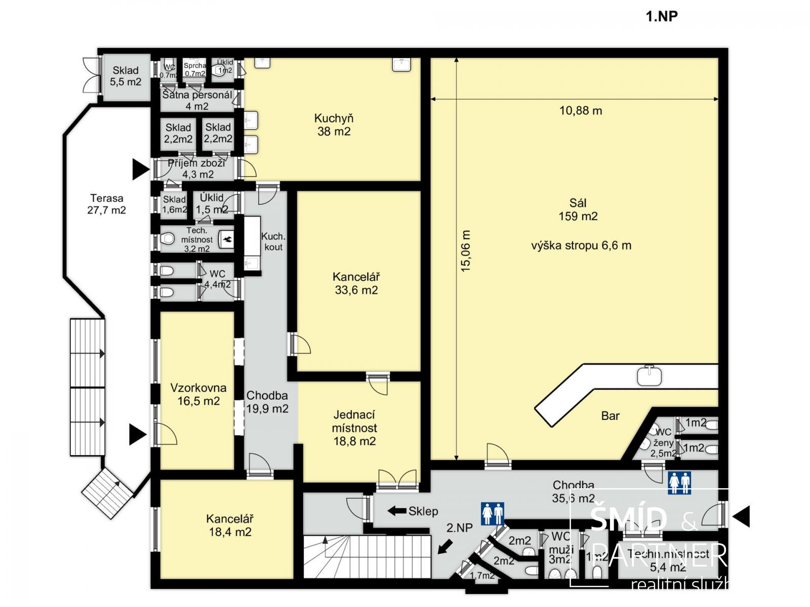
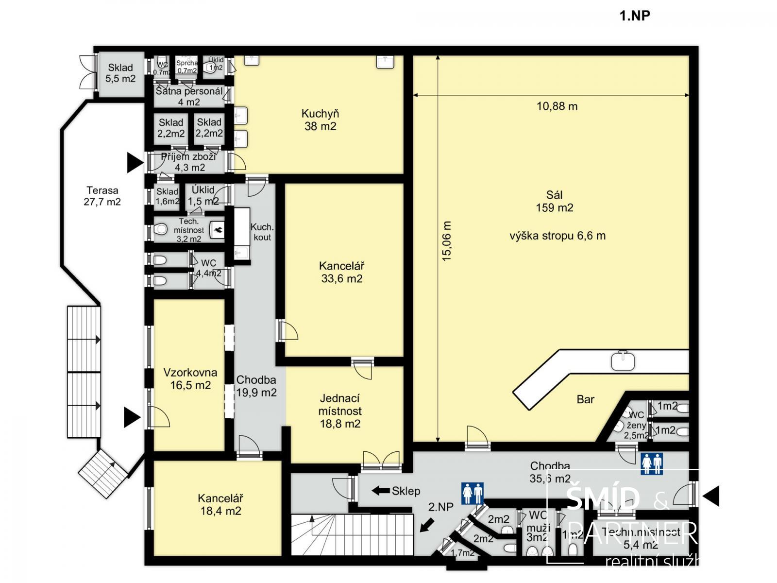
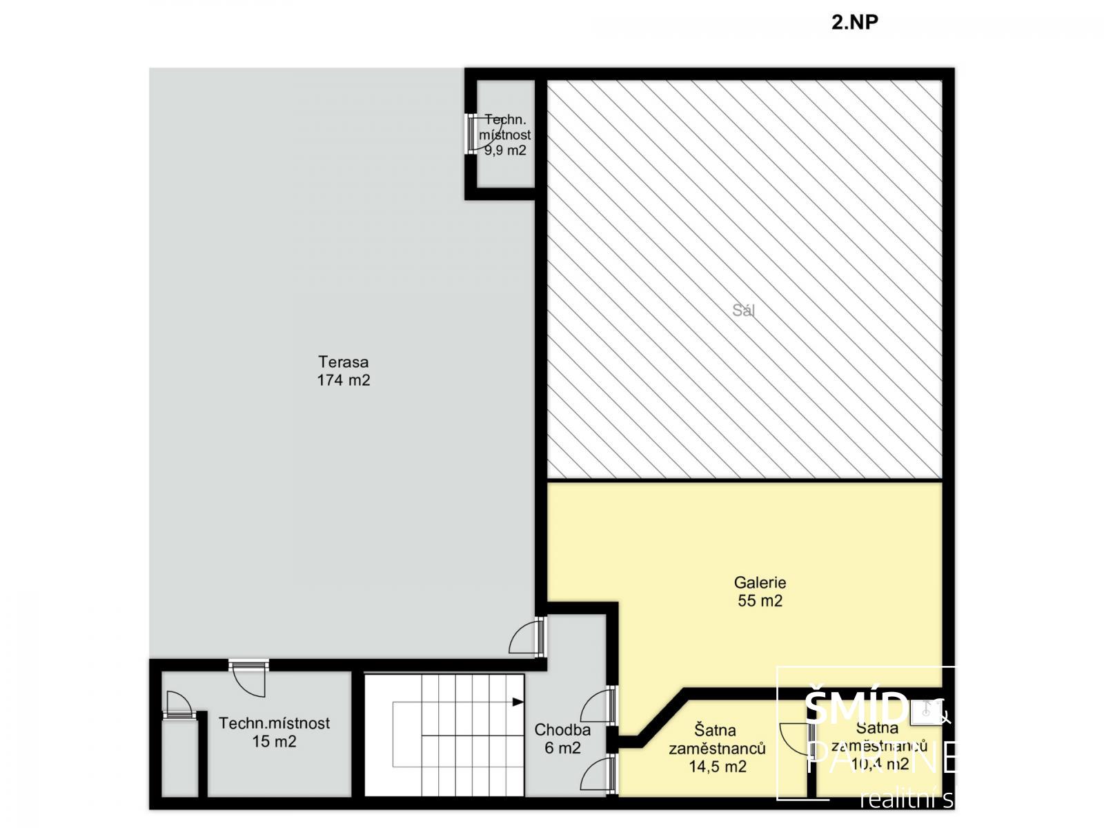
Hlavní objekt bývalého Francova kina byl postaven v roce 1912, ve 40. letech přejmenován na kino Oko a v 90. letech využíván jako diskoklub. Aktuálně se zde nachází prostorný sál s balkonem, dva bary a kancelářské zázemí. Elektroinstalace je částečně v mědi a částečně v hliníku.
Zadní část objektu, původně sloužící mimo jiné jako restaurace, má dva samostatné vstupy z ulice Politických vězňů. Část této přístavby byla v roce 2020 upravena pro kancelářské využití, zbývající část zůstává v původním technickém stavu.
Objekt je rozdělen na dvě funkční části, které jsou napojeny na ústřední plynové vytápění. Každá část má vlastní měření spotřeby vody a elektřiny. Celková užitná plocha činí 544 m a k dispozici je také větší množství sociálních zařízení.
Zadní přístavba bývalé restaurace byla zkolaudována, ale bohužel nedošlo k jejímu zákresu na katastrálním úřadě. S ohledem na možné budoucí stavební úpravy či změnu využití objektu je tato skutečnost řešitelná v návaznosti na záměr budoucího vlastníka.
Vzhledem ke stáří objektu je nutné počítat s technickým stavem odpovídajícím jeho věku, včetně výskytu lokální vlhkosti.
Dle územního plánu se nemovitost nachází v ploše smíšeného městského území (SO2).
Celková plocha pozemku činí 573 m.
Vzhledem k rozsahu a potenciálu objektu doporučuji osobní prohlídku, případně Vám rád poskytnu podrobnější informace na vyžádání.
Pomocí naší hypoteční kalkulačky si můžete udělat orientační představu o výši měsíčních splátek hypotéky. O vše ostatní se pak postaráme my ve spolupráci s našimi obchodními partnery.
35 629 Kč
* Odhadovaná měsíční splátka vychází z výše úvěru Kč s pevnou úrokovou sazbou % po celou dobu trvání úvěru.
Uživatel serveru RealityMIX.cz (dále jen „Server“) dostupného na internetové adrese (URL) https://www.realitymix.cz, který provozuje společnost DALTEN media s.r.o., se sídlem Na Harfě 916/9a, Praha 9, 190 00, IČO: 271 35 306 (dále jen „Správce“) jako provozovateli tohoto Serveru uděluje svůj výslovný souhlas v souladu s ustanovením § 5 zákona č. 101/2000 Sb. O ochraně osobních údajů a o změně některých zákonů, v platném znění (dále jen „zákon o ochraně osobních údajů“), se zpracováním uživatelem poskytnutých osobních údajů a dalších dat.
Uživatel poskytuje Správci osobní údaje v rozsahu: jméno, příjmení, e-mailová adresa, telefonický kontakt a další data, a to z důvodu projeveného zájmu o nemovitost, kde prostřednictvím služby Serveru Správce osloví Uživatel inzerenta uvedeného v detailu
nemovitosti - ŠMÍD & PARTNERS (IČ 24122955) se zájmem o jeho služby.
Uživatel tyto osobní údaje poskytuje dobrovolně a bere na vědomí, že součástí služeb Správce, které Správce Uživateli poskytuje, je vyhledání všech Uživateli vyhovujících (dle parametrů - cena, typ nemovitosti, lokalita atd.) nemovitostí. Správce za tímto účelem provozuje aplikace Hlídací pes a newsletter. Tyto služby je možné z každého zaslaného emailu odhlásit. Souhlas se zpracováním osobních údajů Uživatel poskytuje Správci na dobu neurčitou s tím, že svůj udělený souhlas může Uživatel kdykoliv na drese správce info@realitymix.cz odvolat. Správce garantuje Uživateli i další práva uvedené v ustanovení §11 a §21 zákoba č. 101/200 Sb. Ve znění pozdějších předpisů.
Více informací o zpracování údajů získáte zde (realitymix.cz/zasady-ochrany-osobnich-udaju)