Pronájem slunného bytu 3+1 s balkonem, Kolín - ul. Jateční 797
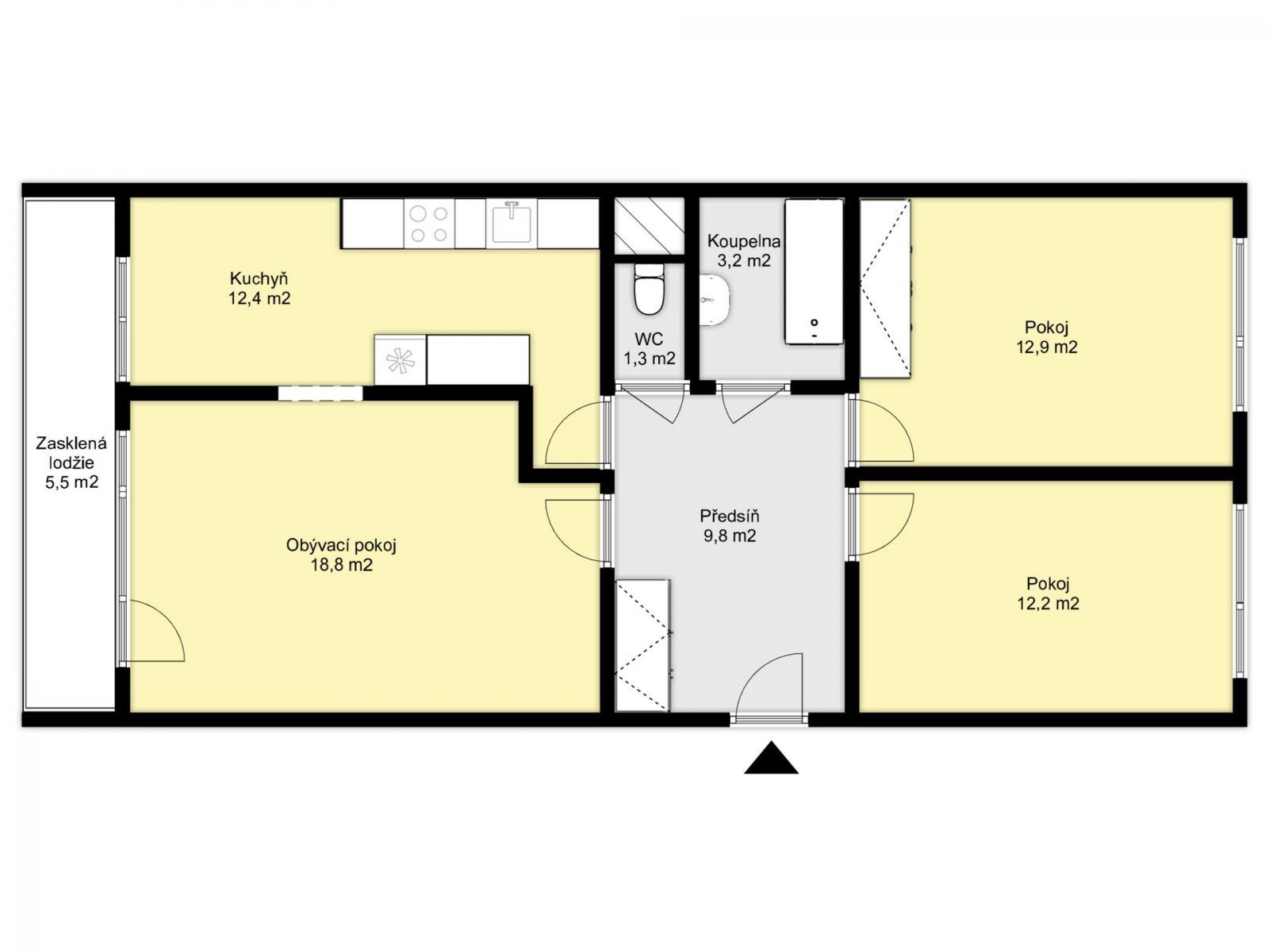
Nabízím Vám k dlouhodobému pronájmu prostorný a světlý byt 3+1 o rozloze 70 m2, který se nachází v klidné části Kolína. K bytu náleží zasklený balkon o velikosti 5,5 m2, z nějž se otevírá krásný výhled na okolní pole a rodinné domy.
Byt je situován ve zrekonstruovaném bytovém domě, který prošel kompletní revitalizací včetně zateplení, výměny oken, renovace stoupaček a modernizace výtahu. Nabízí nerušené výhledy ze všech pokojů jak na město, tak na okolní přírodu, což je v městské zástavbě velmi neobvyklé.
Dispozice bytu zahrnuje zděné jádro s oddělenou toaletou a koupelnou. Byt se pronajímá částečně vybavený tak, jak je vidět na fotografiích v inzerci.
Bytový dům se nachází v lokalitě, která kombinuje všechny výhody městského bydlení s blízkostí přírody. V dosahu máte školy, školky, nemocnici, náměstí a veškeré další městské služby, zároveň však můžete snadno vyrazit na procházky do přírody, například do nedaleké obce Polepy.
Měsíční nájemné činí 16 900,-Kč plus zálohy na služby 8 257,-Kč (počítáno pro 4 dospělé osoby). Elektřina se převádí na nájemníka.
Při podpisu nájemní smlouvy se skládá vratná kauce ve výši 33 800,-Kč, první nájemné 16 900,-Kč, zálohy na služby 8 257,-Kč a provize RK ve výši 16 900,-Kč + DPH.
Pro více informací a prohlídku bytu mě neváhejte kontaktovat.
Cena:
16 900 Kč / (za měsíc)
Dispozice/podlahová plocha:
3+1/70 m²
Číslo zakázky:
REALITYMIX-826
Podrobné informace
Dispozice bytu:3+1
Číslo podlaží v domě:6
Počet podlaží objektu:1
Užitná plocha:75 m²
Celková podlahová plocha:70 m²
Druh objektu:panelová
Stav objektu:po rekonstrukci
Vlastnictví:osobní
Balkon:5 m²
Vybaveno:ano
Umístění objektu:klidná část obce
Doprava:vlak, dálnice, silnice, MHD, autobus
Elektřina:Elektro - 230 V
Voda:Zdroj pro celý objekt
Topení:Ústřední - dálkové
Odpad:Kanalizace
Energetická náročnost budovy:C - Úsporná
Energetický ukazatel podle vyhlášky:č. 78/2013 Sb.
Uživatel serveru RealityMIX.cz (dále jen „Server“) dostupného na internetové adrese (URL) https://www.realitymix.cz, který provozuje společnost DALTEN media s.r.o., se sídlem Na Harfě 916/9a, Praha 9, 190 00, IČO: 271 35 306 (dále jen „Správce“) jako provozovateli tohoto Serveru uděluje svůj výslovný souhlas v souladu s ustanovením § 5 zákona č. 101/2000 Sb. O ochraně osobních údajů a o změně některých zákonů, v platném znění (dále jen „zákon o ochraně osobních údajů“), se zpracováním uživatelem poskytnutých osobních údajů a dalších dat.
Uživatel poskytuje Správci osobní údaje v rozsahu: jméno, příjmení, e-mailová adresa, telefonický kontakt a další data, a to z důvodu projeveného zájmu o nemovitost, kde prostřednictvím služby Serveru Správce osloví Uživatel inzerenta uvedeného v detailu
nemovitosti - ŠMÍD & PARTNERS (IČ 24122955) se zájmem o jeho služby.
Uživatel tyto osobní údaje poskytuje dobrovolně a bere na vědomí, že součástí služeb Správce, které Správce Uživateli poskytuje, je vyhledání všech Uživateli vyhovujících (dle parametrů - cena, typ nemovitosti, lokalita atd.) nemovitostí. Správce za tímto účelem provozuje aplikace Hlídací pes a newsletter. Tyto služby je možné z každého zaslaného emailu odhlásit. Souhlas se zpracováním osobních údajů Uživatel poskytuje Správci na dobu neurčitou s tím, že svůj udělený souhlas může Uživatel kdykoliv na drese správce info@realitymix.cz odvolat. Správce garantuje Uživateli i další práva uvedené v ustanovení §11 a §21 zákoba č. 101/200 Sb. Ve znění pozdějších předpisů.
Více informací o zpracování údajů získáte zde (realitymix.cz/zasady-ochrany-osobnich-udaju)