Riegrova, Kolín - dvougenerační bydlení nebo investice v provorepublikové vile
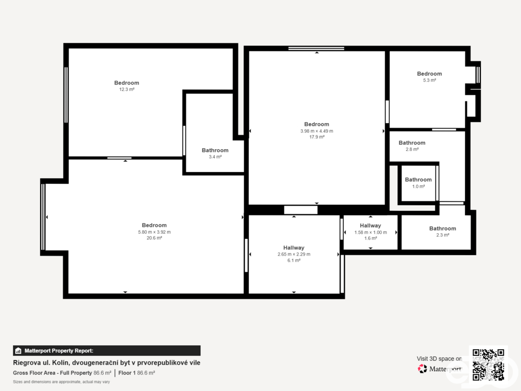
Nabízím k prodeji byt o celkové ploše cca 81 m² v ulici Riegrova 379, Kolín II, aktuálně řešený jako dvě samostatně přístupné jednotky 2+kk a 1+kk – ideální kombinace vlastního bydlení a příjmu z pronájmu.
Nemovitost se nachází v klidné vilové čtvrti jen pár minut chůze od centra, s rychlým napojením na Prahu a zároveň v docházkové vzdálenosti přírody i sportovišť.
Byt vznikl úpravou původní dispozice 3+kk a nabízí velmi flexibilní využití – jak pro vlastní bydlení, tak jako investici.
- bydlení + nájem (2+kk pro vlastní potřebu, 1+kk k pronájmu)
- dvougenerační řešení
- investice se dvěma jednotkami
Menší jednotku lze využít k pronájmu, který může částečně pokrýt náklady na financování. V budoucnu je možné prostor opět využít pro vlastní potřeby (např. pro děti nebo pracovnu).
Byt se nachází v prvorepublikové vile z roku 1928 se zahradou, která prošla rekonstrukcí včetně zateplení fasády (cca 16 cm). PENB zatím není zpracován, proto je dočasně uváděna třída G.
Byt je nabíznen ve stavu po kompletní rekonstrukci, která momentálně probíhá:
nové rozvody elektřiny, vody a plynu
nové omítky a koupelny
zachovaná špaletová okna včetně původních kliček
renovované parkety (možnost volby finální úpravy – vosk / lak a odstín)
Součástí ceny je základní kuchyňská linka bez spotřebičů.
Na přání je možné za příplatek realizovat kuchyňskou linku dle vlastního návrhu.
Dispozice:
2+kk – obývací prostor s kuchyňskou částí, ložnice, koupelna
1+kk – obytný prostor s kuchyňskou částí, koupelna a menší samostatná místnost s oknem, kterou lze využít jako šatnu, pracovnu nebo i pro občasné přespání
Společné prostory domu jsou rovněž po renovaci, včetně původních teracových podlah.
Lokalita:
Klidná vilová čtvrť s výbornou dostupností – do centra Kolína dojdete během několika minut, stejně jako k obchodům a službám.
Za rohem je napojení na hlavní tah směrem na Prahu a dálnici D11.
Zároveň oceníte blízkost přírody a volnočasových aktivit – v docházkové vzdálenosti je zahrádkářská kolonie, vodárna a oblíbená lokalita Peklo s rybníkem a ferratou. Na druhou stranu se přes lávku dostanete ke sportovištím v Borkách a na cyklostezky podél Labe.
Další potenciál domu:
V blízké době budou v domě k dispozici i další jednotky (např. ateliér se zimní zahradou nebo obdobný byt ve 2. NP), což otevírá možnosti další investice nebo kombinace bydlení a podnikání.
Součástí inzerce je kompletní virtuální prohlídka celého bytu, která vám umožní detailně si projít dispozici ještě před osobní návštěvou.
Pro více informací nebo domluvení osobní prohlídky mě kontaktujte prostřednictvím odpovědního formuláře.
Uživatel serveru RealityMIX.cz (dále jen „Server“) dostupného na internetové adrese (URL) https://www.realitymix.cz, který provozuje společnost DALTEN media s.r.o., se sídlem Na Harfě 916/9a, Praha 9, 190 00, IČO: 271 35 306 (dále jen „Správce“) jako provozovateli tohoto Serveru uděluje svůj výslovný souhlas v souladu s ustanovením § 5 zákona č. 101/2000 Sb. O ochraně osobních údajů a o změně některých zákonů, v platném znění (dále jen „zákon o ochraně osobních údajů“), se zpracováním uživatelem poskytnutých osobních údajů a dalších dat.
Uživatel poskytuje Správci osobní údaje v rozsahu: jméno, příjmení, e-mailová adresa, telefonický kontakt a další data, a to z důvodu projeveného zájmu o nemovitost, kde prostřednictvím služby Serveru Správce osloví Uživatel inzerenta uvedeného v detailu
nemovitosti - eDO reality, s.r.o. (IČ 07268602) se zájmem o jeho služby.
Uživatel tyto osobní údaje poskytuje dobrovolně a bere na vědomí, že součástí služeb Správce, které Správce Uživateli poskytuje, je vyhledání všech Uživateli vyhovujících (dle parametrů - cena, typ nemovitosti, lokalita atd.) nemovitostí. Správce za tímto účelem provozuje aplikace Hlídací pes a newsletter. Tyto služby je možné z každého zaslaného emailu odhlásit. Souhlas se zpracováním osobních údajů Uživatel poskytuje Správci na dobu neurčitou s tím, že svůj udělený souhlas může Uživatel kdykoliv na drese správce info@realitymix.cz odvolat. Správce garantuje Uživateli i další práva uvedené v ustanovení §11 a §21 zákoba č. 101/200 Sb. Ve znění pozdějších předpisů.
Více informací o zpracování údajů získáte zde (realitymix.cz/zasady-ochrany-osobnich-udaju)