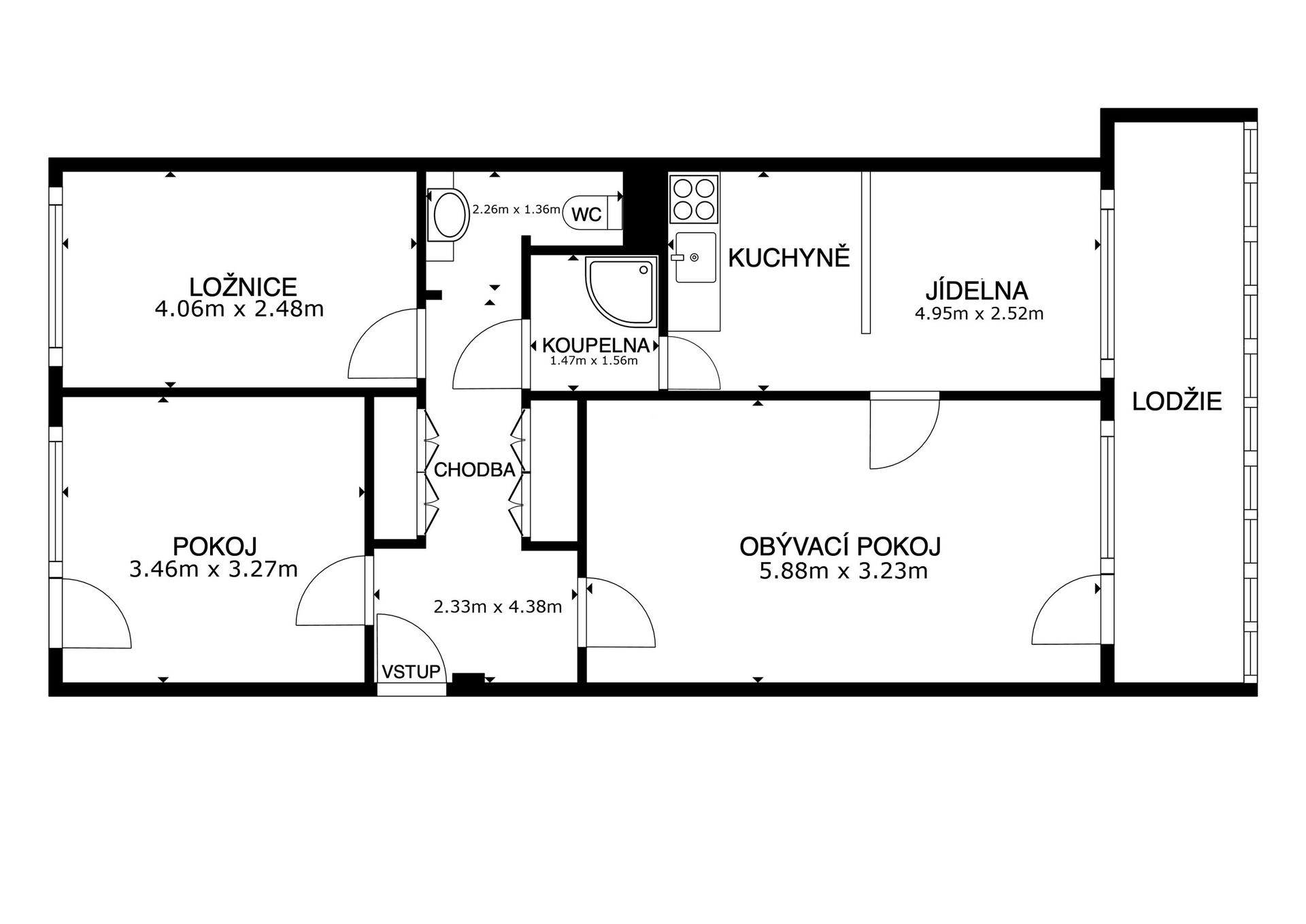
Dovoluji si vám nabídnout bytovou jednotku o dispozici 3+1 s lodžií, která se nachází ve 4. patře revitalizovaného panelového domu.
Byt o užitné ploše 69,5 m² nabízí praktické a pohodlné dispoziční řešení s dostatkem úložných prostor pro každodenní život. Součástí bytu je lodžie 6 m², komora na patře a sklepní kóje 2 m² umístěná v suterénu domu. Díky velkým oknům s orientací na jihozápad a severovýchod je interiér příjemně světlý po celý den.
Dům prošel zásadní rekonstrukcí – disponuje plastovými okny, zateplenou fasádou, novými stoupacími rozvody a modernizovaným výtahem.
Lokalita je velmi vyhledávaná a nabízí kompletní občanskou vybavenost v docházkové vzdálenosti – základní i mateřskou školu, gymnázium, aquapark Vodní svět Kolín, stejně jako nákupní možnosti (Kaufland, Penny a další). Zastávka MHD se nachází pouhé tři minuty chůze od domu.
Pomocí naší hypoteční kalkulačky si můžete udělat orientační představu o výši měsíčních splátek hypotéky. O vše ostatní se pak postaráme my ve spolupráci s našimi obchodními partnery.
21 053 Kč
* Odhadovaná měsíční splátka vychází z výše úvěru Kč s pevnou úrokovou sazbou % po celou dobu trvání úvěru.
Prodáváte nemovitost a potřebujete zjistit její reálnou hodnotu?
Uživatel serveru RealityMIX.cz (dále jen „Server“) dostupného na internetové adrese (URL) https://www.realitymix.cz, který provozuje společnost DALTEN media s.r.o., se sídlem Na Harfě 916/9a, Praha 9, 190 00, IČO: 271 35 306 (dále jen „Správce“) jako provozovateli tohoto Serveru uděluje svůj výslovný souhlas v souladu s ustanovením § 5 zákona č. 101/2000 Sb. O ochraně osobních údajů a o změně některých zákonů, v platném znění (dále jen „zákon o ochraně osobních údajů“), se zpracováním uživatelem poskytnutých osobních údajů a dalších dat.
Uživatel poskytuje Správci osobní údaje v rozsahu: jméno, příjmení, e-mailová adresa, telefonický kontakt a další data, a to z důvodu projeveného zájmu o nemovitost, kde prostřednictvím služby Serveru Správce osloví Uživatel inzerenta uvedeného v detailu
nemovitosti - TOP MAKLÉŘKY (IČ 69639281) se zájmem o jeho služby.
Uživatel tyto osobní údaje poskytuje dobrovolně a bere na vědomí, že součástí služeb Správce, které Správce Uživateli poskytuje, je vyhledání všech Uživateli vyhovujících (dle parametrů - cena, typ nemovitosti, lokalita atd.) nemovitostí. Správce za tímto účelem provozuje aplikace Hlídací pes a newsletter. Tyto služby je možné z každého zaslaného emailu odhlásit. Souhlas se zpracováním osobních údajů Uživatel poskytuje Správci na dobu neurčitou s tím, že svůj udělený souhlas může Uživatel kdykoliv na drese správce info@realitymix.cz odvolat. Správce garantuje Uživateli i další práva uvedené v ustanovení §11 a §21 zákoba č. 101/200 Sb. Ve znění pozdějších předpisů.
Více informací o zpracování údajů získáte zde (realitymix.cz/zasady-ochrany-osobnich-udaju)