Prodej přízemního rodinného domu, Kolomuty, okr. Mladá Boleslav
Nabízíme k prodeji moderní přízemní rodinný dům (bungalov) v obci Kolomuty, jen pár minut jízdy od Mladé Boleslavi. Dům je situován v klidné lokalitě s krásným výhledem do okolní krajiny a nabízí ideální kombinaci soukromí, komfortu a výborné dostupnosti města.
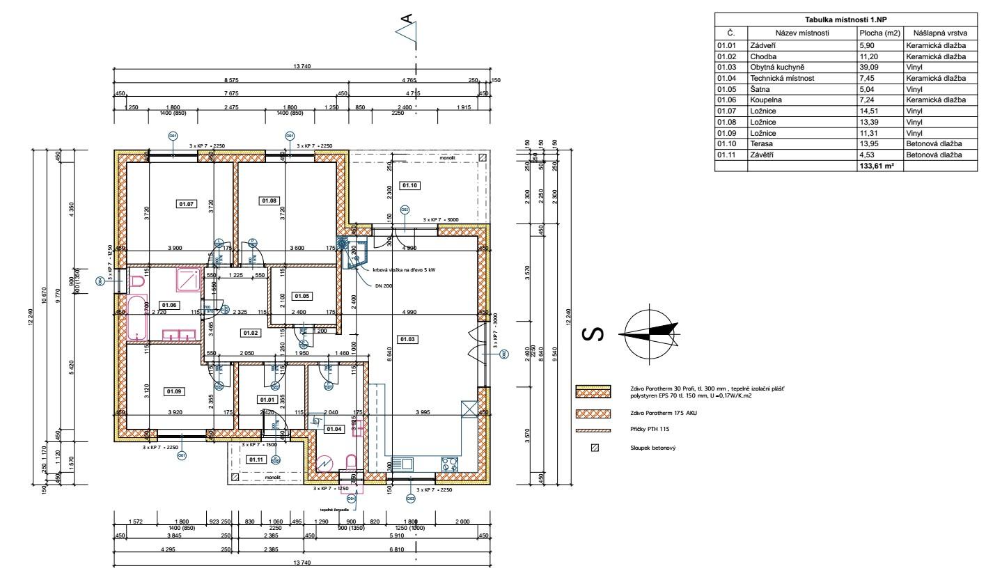
Dispozice domu je 4+kk a zahrnuje prostorný obývací pokoj s kuchyňským koutem a přímým vstupem na terasu a zahradu, tři samostatné pokoje, koupelnu s vanou i sprchovým koutem, samostatné WC, šatnu, technickou místnost a vstupní chodbu. Promyšlené řešení domu nabízí dostatek úložných prostor a pohodlí pro rodinné bydlení.
Dům je postaven z kvalitních materiálů, má valbovou střechu, plastová okna s izolačními trojskly a je připraven k dokončení dle představ nového majitele. Vytápění je řešeno tepelným čerpadlem (nižší provozní náklady) v kombinaci s podlahovým topením. Navíc k dispozici bude rekuperace s dotykovým centrálním regulátorem. Na zahradě pak oceníte akumulační nádrž (6 m3) na dešťovou vodu se vsakovacím tělesem.
Infrastruktura: vodovod, veřejná kanalizace, asfaltová silnice
Termín dokončení: květen 2026
Pozemek poskytuje dostatek prostoru pro zahradu, terasu i parkování dvou aut. Lokalita je ideální pro rodiny s dětmi klidná obec, minimum provozu, příroda na dosah a zároveň rychlé napojení na Mladou Boleslav a dálnici D10.
Hlavní výhody:
novostavba rodinného domu
dispozice 4+kk
tepelné čerpadlo nízké náklady
klidná lokalita
výborná dostupnost Mladé Boleslavi
možnost dokončení dle vlastního vkusu
Pokud hledáte moderní bydlení v příjemném prostředí s dobrou dostupností města, je tato nemovitost ideální volbou.
Velmi doporučuji prohlídku, kde Vám bude možné představit tuto nemovitost včetně veškerých podkladů, které od majitele máme k dispozici.
Koupi domu lze financovat hypotečním úvěrem s jehož vyřízením Vám může pomoci náš zkušený hypoteční poradce.
Těším se na viděnou na prohlídce!
Pomocí naší hypoteční kalkulačky si můžete udělat orientační představu o výši měsíčních splátek hypotéky. O vše ostatní se pak postaráme my ve spolupráci s našimi obchodními partnery.
46 560 Kč
* Odhadovaná měsíční splátka vychází z výše úvěru Kč s pevnou úrokovou sazbou % po celou dobu trvání úvěru.
Uživatel serveru RealityMIX.cz (dále jen „Server“) dostupného na internetové adrese (URL) https://www.realitymix.cz, který provozuje společnost DALTEN media s.r.o., se sídlem Na Harfě 916/9a, Praha 9, 190 00, IČO: 271 35 306 (dále jen „Správce“) jako provozovateli tohoto Serveru uděluje svůj výslovný souhlas v souladu s ustanovením § 5 zákona č. 101/2000 Sb. O ochraně osobních údajů a o změně některých zákonů, v platném znění (dále jen „zákon o ochraně osobních údajů“), se zpracováním uživatelem poskytnutých osobních údajů a dalších dat.
Uživatel poskytuje Správci osobní údaje v rozsahu: jméno, příjmení, e-mailová adresa, telefonický kontakt a další data, a to z důvodu projeveného zájmu o nemovitost, kde prostřednictvím služby Serveru Správce osloví Uživatel inzerenta uvedeného v detailu
nemovitosti - ALBION REALITY s.r.o. (IČ 27132269) se zájmem o jeho služby.
Uživatel tyto osobní údaje poskytuje dobrovolně a bere na vědomí, že součástí služeb Správce, které Správce Uživateli poskytuje, je vyhledání všech Uživateli vyhovujících (dle parametrů - cena, typ nemovitosti, lokalita atd.) nemovitostí. Správce za tímto účelem provozuje aplikace Hlídací pes a newsletter. Tyto služby je možné z každého zaslaného emailu odhlásit. Souhlas se zpracováním osobních údajů Uživatel poskytuje Správci na dobu neurčitou s tím, že svůj udělený souhlas může Uživatel kdykoliv na drese správce info@realitymix.cz odvolat. Správce garantuje Uživateli i další práva uvedené v ustanovení §11 a §21 zákoba č. 101/200 Sb. Ve znění pozdějších předpisů.
Více informací o zpracování údajů získáte zde (realitymix.cz/zasady-ochrany-osobnich-udaju)