Rodinný dům se zahradou, Nová Ves - Konstantinovy Lázně
Nabízíme na prodej rodinný dům se stodolou a zahradou, Nová Ves u Konstantinových Lázní.
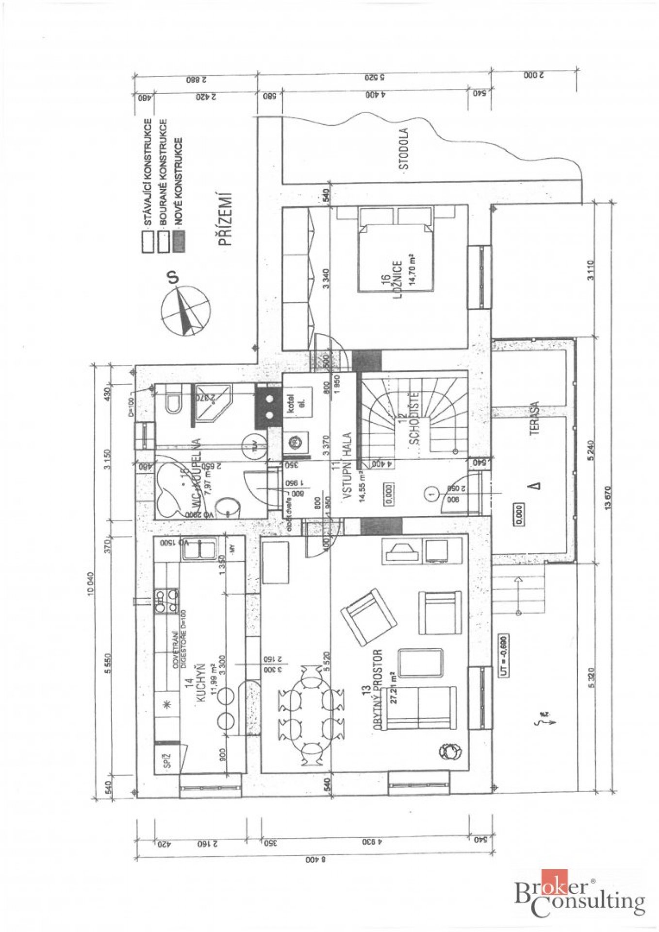
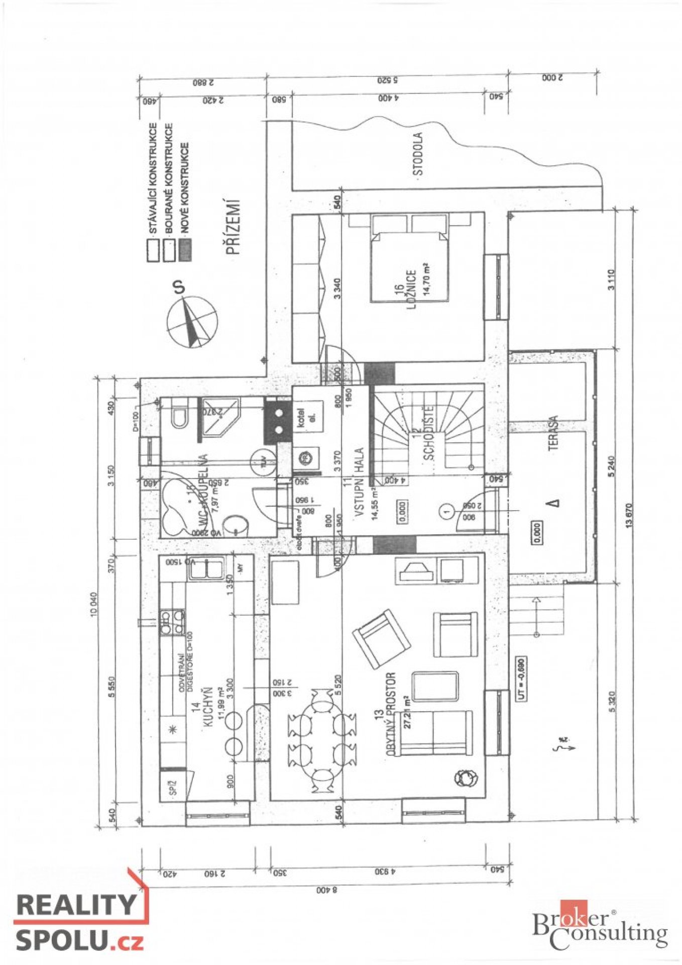
Rodinný dům dispozice 2+1 stojí na vlastním pozemku o celkové ploše 862 m2.
Dispozice:
1.NP - prostorná obytná kuchyně, obývací pokoj, ložnice, koupelna s vanou a WC, prostorná předsíň se zádveřím.
Sklep - celý dům je podsklepen např. pro skladování ovoce, úložné prostory. Ve sklepních prostorách je umístěň kotel na tuhá paliva a elektrokotel s možností využivat obě varianty pro vytápení celého domu.
Půda - půdní prostor je připraven pro další rekonstrukci a výbudování dalších pokojů, do půdního prostoru je přivedena elektroinstalace a další rozvody pro realizaci půdní vestavby.
Dům prošel před 10 lety rekonstrukcí v 1.NP, které je aktuálně využíváno k bydlení. Plastová okna, nové rozvody vody, odpady, eletroinstalace, nová koupelna atd. Ohřev vody zajišťuje elektrický bojler.
Inženýrské sítě - elektřina, městský vodovod, na pozemku je vlastní studna, odpad je řešen septikem.
K domu nálěží horpodářské stavení/ stodola, aktuálně využívaná jako garáž, dílna, skladovací prostory. Je zde možnost další přestavby na obytné prostory.
Energetická náročnost budovy G, PENB se připravuje.
Na pozemku stojí dřevěný zahradní domek, do kterého je přivedena voda, elektřina a odpad. Domek byl majiteli využíván jako letní prodejní kiosek.
Obec Nová Ves / Konstantinovy Lázně je velmi klidnou lokalitou jak na trvalé bydlení tak pro rekreaci. Před domem najdete zastávku autobusu, v obci je hospoda, Vzdálenost do Konstantinových Lázní 2 km, do Bezdružic 2,5 km. Tam najdete veškerou občanskou vybavenost. Dojezdová vzdálenost do Plzně 40 km cca 40 minut jízdy.
V Nové Vsi je skvělé sportovní vyžití, před domem najdete nově vybudovaný cyklo ovál, cykloturistika, turistika atd. V okolí krásná příroda, rozsáhlé lesy.
Konstantinovy Lázně nabízí lázeňskou pohodu, město přiipravuje v sezóně mnoho zajímavých akcí pro své návštěvníky.
Pomocí naší hypoteční kalkulačky si můžete udělat orientační představu o výši měsíčních splátek hypotéky. O vše ostatní se pak postaráme my ve spolupráci s našimi obchodními partnery.
14 575 Kč
* Odhadovaná měsíční splátka vychází z výše úvěru Kč s pevnou úrokovou sazbou % po celou dobu trvání úvěru.
Uživatel serveru RealityMIX.cz (dále jen „Server“) dostupného na internetové adrese (URL) https://www.realitymix.cz, který provozuje společnost DALTEN media s.r.o., se sídlem Na Harfě 916/9a, Praha 9, 190 00, IČO: 271 35 306 (dále jen „Správce“) jako provozovateli tohoto Serveru uděluje svůj výslovný souhlas v souladu s ustanovením § 5 zákona č. 101/2000 Sb. O ochraně osobních údajů a o změně některých zákonů, v platném znění (dále jen „zákon o ochraně osobních údajů“), se zpracováním uživatelem poskytnutých osobních údajů a dalších dat.
Uživatel poskytuje Správci osobní údaje v rozsahu: jméno, příjmení, e-mailová adresa, telefonický kontakt a další data, a to z důvodu projeveného zájmu o nemovitost, kde prostřednictvím služby Serveru Správce osloví Uživatel inzerenta uvedeného v detailu
nemovitosti - Broker Consulting, a.s. (IČ 25221736) se zájmem o jeho služby. Tato společnost je součástí seskupení/sítě/franšízového modelu realitních kanceláří, jejich seznam můžete zobrazit kliknutím na tento odkaz.
Broker Consulting, a.s. (IČ 25221736) , WikiPoradce s.r.o. (IČ 07835027) , Šroll Aleš Reality (IČ 13543253) , Blanka Svašková (IČ 174162535) , Ing. Josef Novotný (IČ 40579735) , ŘEŠENÍ BYDLENÍ s.r.o. (IČ 08062315) , Sebeobrana s.r.o. (IČ 24250686) , VIDRIERA s.r.o. (IČ 02131382) , Helena Vojtová (IČ 61553956) , Jan Lešák - reality s.r.o. (IČ 01978233) , BONITREAL BRNO s.r.o. (IČ 01483137) , SITERRA S.R.O. (IČ 26052512) , MC Real Plzeň s.r.o (IČ 29090407) , ELSIMA REALITY s.r.o. (IČ 09856960) , FM Design s.r.o. (IČ 03255697) , LJA s.r.o. (IČ 08869090) , K&P obchod s.r.o. (IČ 07644001) , Miroslav Kovařík (IČ 68814917) , Linda Bernátová s.r.o. (IČ 09644873) , S&L a partners s.r.o. (IČ 09985948) , Times Two s.r.o. (IČ 04023412) , 1. Vzájemná poradenská a.s. (IČ 26324385) , Complete Consulting s.r.o. (IČ 24232904) , MIK Marketing s.r.o. (IČ 14378043) , REALITYSPOLU (IČ 25221736)
Uživatel tyto osobní údaje poskytuje dobrovolně a bere na vědomí, že součástí služeb Správce, které Správce Uživateli poskytuje, je vyhledání všech Uživateli vyhovujících (dle parametrů - cena, typ nemovitosti, lokalita atd.) nemovitostí. Správce za tímto účelem provozuje aplikace Hlídací pes a newsletter. Tyto služby je možné z každého zaslaného emailu odhlásit. Souhlas se zpracováním osobních údajů Uživatel poskytuje Správci na dobu neurčitou s tím, že svůj udělený souhlas může Uživatel kdykoliv na drese správce info@realitymix.cz odvolat. Správce garantuje Uživateli i další práva uvedené v ustanovení §11 a §21 zákoba č. 101/200 Sb. Ve znění pozdějších předpisů.
Více informací o zpracování údajů získáte zde (realitymix.cz/zasady-ochrany-osobnich-udaju)