Prodej venkovské usedlosti s velkým potenciálem ( 1 111 m²) – Kořenec, Blanensko
Nabízíme k prodeji stylovou venkovskou usedlost v klidné obci Kořenec. Nemovitost si zachovala své původní kouzlo a nabízí velký prostor pro rekonstrukci podle vlastních představ.
Součástí prodeje je také hotová studie na přestavbu na apartmánový dům.
Dispozice a stav:
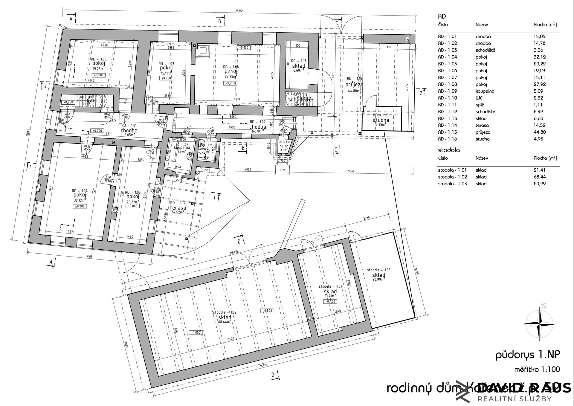
Dům tvoří několik místností, včetně dvou průchozích pokojů. Jeden z nich má krbová kamna a vstup na terasu a do uzavřeného dvora. K dispozici je i základní sociální zázemí.
Rekonstrukce již byla zahájena – interiér je vyklizený, odkryté původní dřevěné podlahy dodávají prostoru autentickou atmosféru. Střecha je ve velmi dobrém stavu (částečně nová). Navazující hospodářské prostory jsou připravené k využití – ať už jako dílna, ateliér nebo rozšíření obytné části.
Velkorysý prostor:
Celková užitná plocha činí přibližně 353 m², což nabízí opravdu široké možnosti využití – od komfortního rodinného bydlení až po realizaci investičního záměru.
Možnosti využití:
rodinné bydlení
rekreační objekt
apartmánový dům (dle studie)
podnikání
Lokalita:
Obec Kořenec leží v krásné přírodě Drahanská vrchovina, nedaleko Moravský kras. Lokalita je ideální pro milovníky klidu, přírody, turistiky i cyklistiky.
V obci se nachází také oblíbené Golf Resort Kořenec s krásnými výhledy. Základní občanská vybavenost je v místě, další služby v nedalekých Boskovice.
Základní informace:
pozemek: 1 111 m²
zastavěná plocha: 396 m²
užitná plocha: cca 353 m²
stav: započatá rekonstrukce, připraveno k dokončení
typ: usedlost s hospodářskými budovami
Nemovitost představuje zajímavou investiční příležitost i ideální místo pro vlastní bydlení nebo rekreaci.
Více informací u makléře.
Možnost zajištění financování i kompletního právního servisu.
Součástí inzerce jsou vizualizace, které slouží jako inspirace možného budoucího řešení nemovitosti.
Pomocí naší hypoteční kalkulačky si můžete udělat orientační představu o výši měsíčních splátek hypotéky. O vše ostatní se pak postaráme my ve spolupráci s našimi obchodními partnery.
16 154 Kč
* Odhadovaná měsíční splátka vychází z výše úvěru Kč s pevnou úrokovou sazbou % po celou dobu trvání úvěru.
Uživatel serveru RealityMIX.cz (dále jen „Server“) dostupného na internetové adrese (URL) https://www.realitymix.cz, který provozuje společnost DALTEN media s.r.o., se sídlem Na Harfě 916/9a, Praha 9, 190 00, IČO: 271 35 306 (dále jen „Správce“) jako provozovateli tohoto Serveru uděluje svůj výslovný souhlas v souladu s ustanovením § 5 zákona č. 101/2000 Sb. O ochraně osobních údajů a o změně některých zákonů, v platném znění (dále jen „zákon o ochraně osobních údajů“), se zpracováním uživatelem poskytnutých osobních údajů a dalších dat.
Uživatel poskytuje Správci osobní údaje v rozsahu: jméno, příjmení, e-mailová adresa, telefonický kontakt a další data, a to z důvodu projeveného zájmu o nemovitost, kde prostřednictvím služby Serveru Správce osloví Uživatel inzerenta uvedeného v detailu
nemovitosti - DRRS s.r.o. (IČ 09895035) se zájmem o jeho služby.
Uživatel tyto osobní údaje poskytuje dobrovolně a bere na vědomí, že součástí služeb Správce, které Správce Uživateli poskytuje, je vyhledání všech Uživateli vyhovujících (dle parametrů - cena, typ nemovitosti, lokalita atd.) nemovitostí. Správce za tímto účelem provozuje aplikace Hlídací pes a newsletter. Tyto služby je možné z každého zaslaného emailu odhlásit. Souhlas se zpracováním osobních údajů Uživatel poskytuje Správci na dobu neurčitou s tím, že svůj udělený souhlas může Uživatel kdykoliv na drese správce info@realitymix.cz odvolat. Správce garantuje Uživateli i další práva uvedené v ustanovení §11 a §21 zákoba č. 101/200 Sb. Ve znění pozdějších předpisů.
Více informací o zpracování údajů získáte zde (realitymix.cz/zasady-ochrany-osobnich-udaju)