Zachovalý rodinný dům s pozemkem v obci Kořenice u Kolína
V exkluzivním zastoupení majitele Vám nabízíme rodinný dům v klidné části obce Kořenice, nedaleko Kolína.
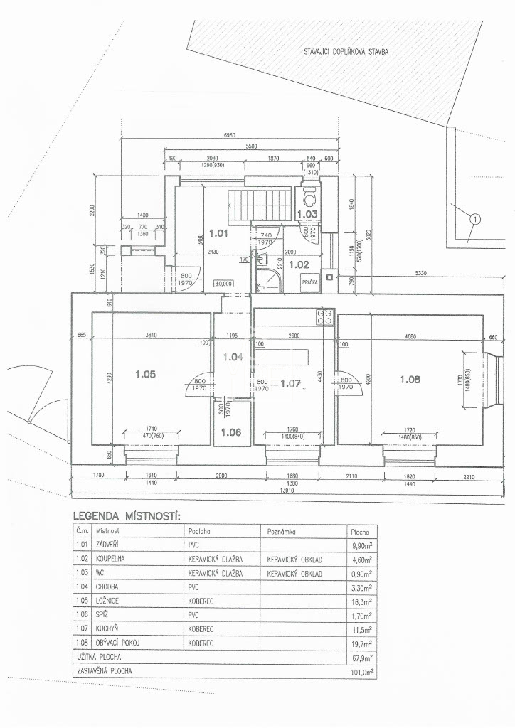
Rodinný dům o zastavěné ploše 101m2 je přízemní, zděný, částečně podsklepený, s nevyužitým podkrovím.
Přípojky: veřejný vodovod a splašková kanalizace, elektřina 230/400V, vlastní studna s vodárnou. Ohřev teplé vody zajišťuje elektrický bojler a vytápění objektu je ústřední se zdrojem tepla poloautomatickým kotlem s podavačem na tuhá paliva. Kotelna i sklad paliva se nacházejí ve sklepní části domu.
Dům je udržovaný a je vybaven starším, ale funkčním nábytkem.
Na pozemku se dále nachází zděný, podsklepený objekt užívaný jako garáž, dva skladovací prostory a prostorná, podsklepená dílna.
Na navazující zahradě je několik vzrostlých ovocných stromů, skleník a současně dostatek prostoru pro odpočinek, zahradničení a další venkovní aktivity. Dům nabízí možnost okamžitého užívání bez zásadnějších investic, případně po rekonstrukci a rozšíření o půdní prostory, může být moderním domovem i pro početnější rodinu.
Celková plocha pozemku činí 548 m2.
Kořenice nabízejí základní občanskou vybavenost - obecní úřad, obchod, hostinec a fotbalové hřiště. Dopravní obslužnost je zde zajištěna jak autobusovou dopravou, tak i vlakem.
Pomůžeme Vám s vyřízením hypotečního úvěru a také s vyřízením státní dotace na rekonstrukci domu.
Těšíme se na prohlídky.
Pomocí naší hypoteční kalkulačky si můžete udělat orientační představu o výši měsíčních splátek hypotéky. O vše ostatní se pak postaráme my ve spolupráci s našimi obchodními partnery.
19 231 Kč
* Odhadovaná měsíční splátka vychází z výše úvěru Kč s pevnou úrokovou sazbou % po celou dobu trvání úvěru.
Uživatel serveru RealityMIX.cz (dále jen „Server“) dostupného na internetové adrese (URL) https://www.realitymix.cz, který provozuje společnost DALTEN media s.r.o., se sídlem Na Harfě 916/9a, Praha 9, 190 00, IČO: 271 35 306 (dále jen „Správce“) jako provozovateli tohoto Serveru uděluje svůj výslovný souhlas v souladu s ustanovením § 5 zákona č. 101/2000 Sb. O ochraně osobních údajů a o změně některých zákonů, v platném znění (dále jen „zákon o ochraně osobních údajů“), se zpracováním uživatelem poskytnutých osobních údajů a dalších dat.
Uživatel poskytuje Správci osobní údaje v rozsahu: jméno, příjmení, e-mailová adresa, telefonický kontakt a další data, a to z důvodu projeveného zájmu o nemovitost, kde prostřednictvím služby Serveru Správce osloví Uživatel inzerenta uvedeného v detailu
nemovitosti - VČRF Reality (IČ 21618089) se zájmem o jeho služby.
Uživatel tyto osobní údaje poskytuje dobrovolně a bere na vědomí, že součástí služeb Správce, které Správce Uživateli poskytuje, je vyhledání všech Uživateli vyhovujících (dle parametrů - cena, typ nemovitosti, lokalita atd.) nemovitostí. Správce za tímto účelem provozuje aplikace Hlídací pes a newsletter. Tyto služby je možné z každého zaslaného emailu odhlásit. Souhlas se zpracováním osobních údajů Uživatel poskytuje Správci na dobu neurčitou s tím, že svůj udělený souhlas může Uživatel kdykoliv na drese správce info@realitymix.cz odvolat. Správce garantuje Uživateli i další práva uvedené v ustanovení §11 a §21 zákoba č. 101/200 Sb. Ve znění pozdějších předpisů.
Více informací o zpracování údajů získáte zde (realitymix.cz/zasady-ochrany-osobnich-udaju)