Prodej RD 5+1 s garáží, pozemkem 736m2, ul. Tesařská, Kosmonosy
Dovoluji si Vám nabídnout ke koupi samostatně stojící zděný rodinný dům v Kosmonosech v ulici Tesařská čp 111/34.
Rodinný dům s vjezdem a garáží stojí na obdélníkovém pozemku o celkové výměře 736m2 a je připojen na kanalizaci, vodovod, elektřinu i plyn.
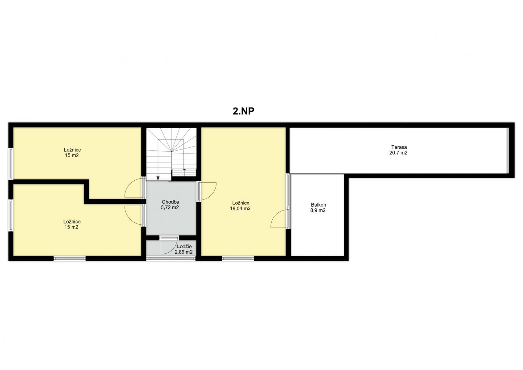
Dům je kolaudován v roce 1979, jedná se o typickou stavbu z přelomu 70. a 80. let, kdy na dvou obytných podlažích naleznete pohodlnou dispozici 5+1 - v přízemí prostorný obývací pokoj, kuchyň, jídelnu, spíž, koupelnu, samostatné WC a vstupní chodbu na kterou navazuje technické zázemí. V 1. patře pak dům nabídne 2 prostorné dětské pokoje, pohodlnou ložnici ze které je přístupná opravdu nadstandardní terasa s otevřeným výhledem do dalekého okolí a z chodby je pak přístupná ještě malá lodžie. Dům disponuje i půdním prostorem, který však nemá plnou pochůznou výšku.
Vytápění domu je ústřední, zajištěno plynovým kotlem, okna jsou v celém domě dřevěná, podlahy betonové - krytinu tvoří místy dlažba a PVC.
Dům je v dobré kondici a až do letošního roku byl trvale obýván a průběžně udržován.
Na hlavní stavbu domu navazují přístavby dílny a skladu, dále na pozemku stojí zděná garáž, která je řádně zkolaudována a vše je řádně zapsáno v katastru nemovitostí. Na pozemku položena zámková dlažba zajišťující přístup a příjezd od vjezdových vrat do garáže a do domu.
Zahrada náležející k rodinnému domu má pravidelný, obdélníkový tvar a má ideální JV situaci. Na pozemku stojí další drobné stavby v podobě dřevníku nebo kůlny.
Dům je již vhodný k rekonstrukci, avšak jeho dispoziční uspořádání nebo jeho kondice jsou skvělým výchozím bodem pro budoucího majitele, aby zde mohl vytvořit velmi komfortní a pohodlné rodinné zázemí. Okolí domu je udržované a velmi klidné se snadnou dostupností plné občanské vybavenosti.
Pro další informace mne prosím neváhejte kontaktovat.
Pomocí naší hypoteční kalkulačky si můžete udělat orientační představu o výši měsíčních splátek hypotéky. O vše ostatní se pak postaráme my ve spolupráci s našimi obchodními partnery.
35 022 Kč
* Odhadovaná měsíční splátka vychází z výše úvěru Kč s pevnou úrokovou sazbou % po celou dobu trvání úvěru.
Uživatel serveru RealityMIX.cz (dále jen „Server“) dostupného na internetové adrese (URL) https://www.realitymix.cz, který provozuje společnost DALTEN media s.r.o., se sídlem Na Harfě 916/9a, Praha 9, 190 00, IČO: 271 35 306 (dále jen „Správce“) jako provozovateli tohoto Serveru uděluje svůj výslovný souhlas v souladu s ustanovením § 5 zákona č. 101/2000 Sb. O ochraně osobních údajů a o změně některých zákonů, v platném znění (dále jen „zákon o ochraně osobních údajů“), se zpracováním uživatelem poskytnutých osobních údajů a dalších dat.
Uživatel poskytuje Správci osobní údaje v rozsahu: jméno, příjmení, e-mailová adresa, telefonický kontakt a další data, a to z důvodu projeveného zájmu o nemovitost, kde prostřednictvím služby Serveru Správce osloví Uživatel inzerenta uvedeného v detailu
nemovitosti - ŠMÍD & PARTNERS (IČ 24122955) se zájmem o jeho služby.
Uživatel tyto osobní údaje poskytuje dobrovolně a bere na vědomí, že součástí služeb Správce, které Správce Uživateli poskytuje, je vyhledání všech Uživateli vyhovujících (dle parametrů - cena, typ nemovitosti, lokalita atd.) nemovitostí. Správce za tímto účelem provozuje aplikace Hlídací pes a newsletter. Tyto služby je možné z každého zaslaného emailu odhlásit. Souhlas se zpracováním osobních údajů Uživatel poskytuje Správci na dobu neurčitou s tím, že svůj udělený souhlas může Uživatel kdykoliv na drese správce info@realitymix.cz odvolat. Správce garantuje Uživateli i další práva uvedené v ustanovení §11 a §21 zákoba č. 101/200 Sb. Ve znění pozdějších předpisů.
Více informací o zpracování údajů získáte zde (realitymix.cz/zasady-ochrany-osobnich-udaju)