Nabízíme Vám ke koupi atraktivní developerský projekt v centru města Kostelec nad Černými lesy, včetně platného stavebního povolení.
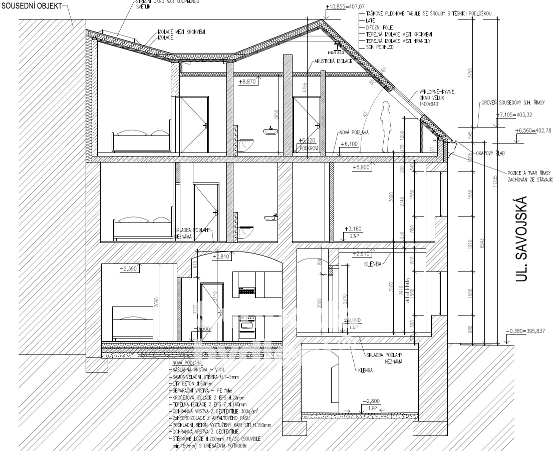
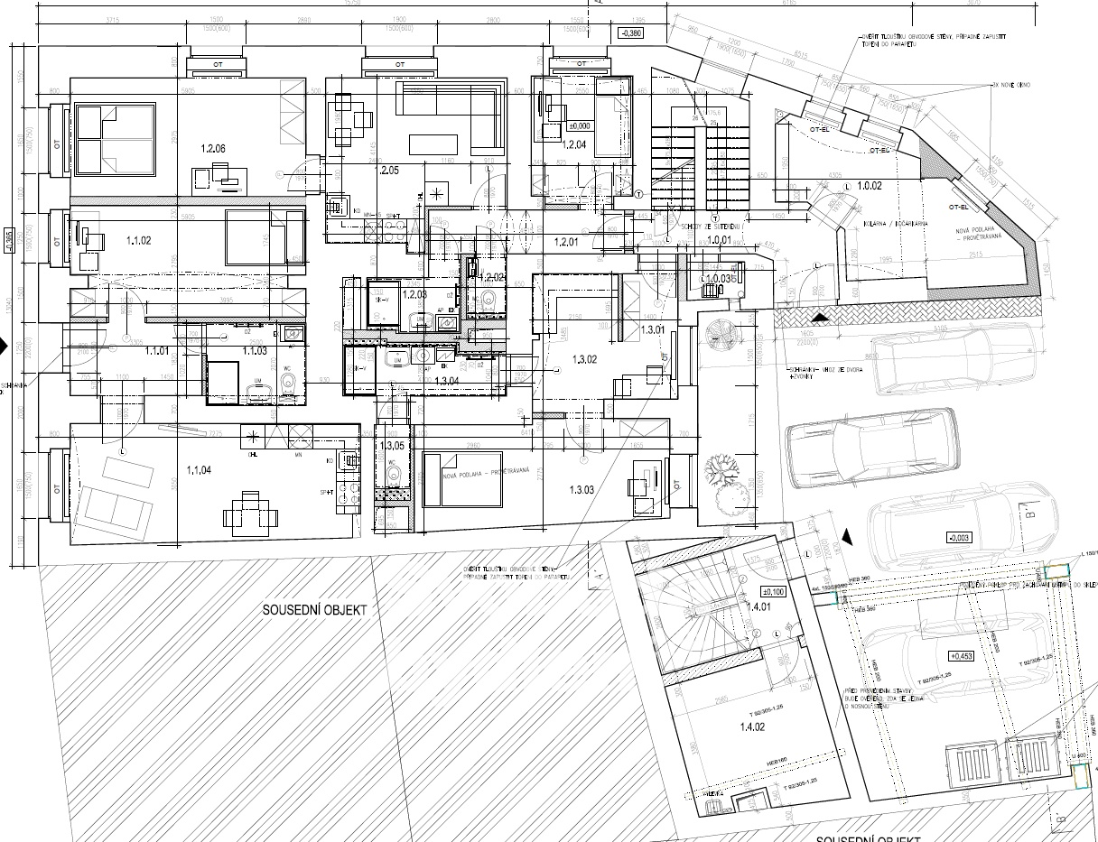
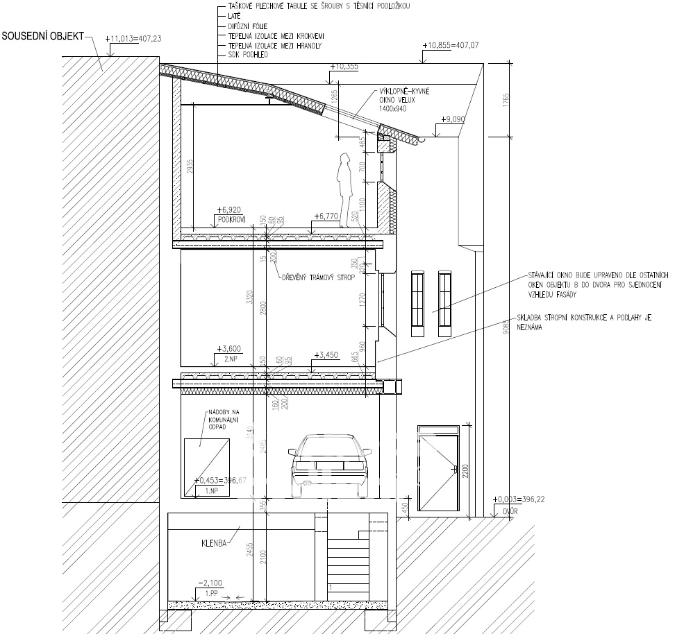
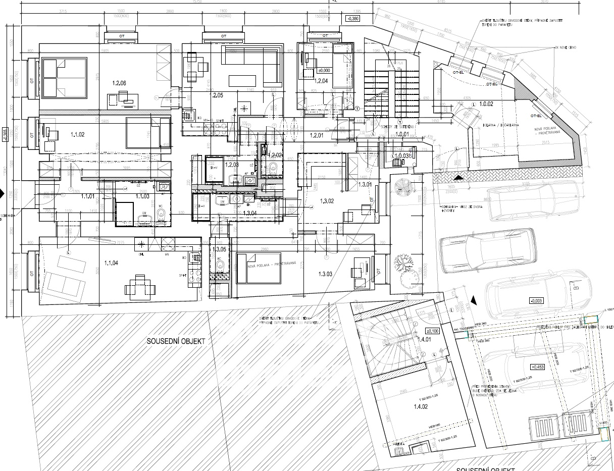
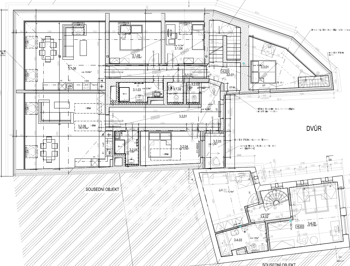
Záměrem projektu je rekonstrukce současného domu v centru města na bytový dům, obsahující osm bytových jednotek a jeden ateliér. Celková podlahová plocha realizovaných jednotek činní 576 m2. Užitná plocha projektu činní cca 682 m2.
Navrženými stavebními úpravami vzniknou jednotky o dispozicích: 2x 2+kk, 4x 3+kk, 1x 1+1, 1x 4+kk, 1x ateliér. SP umožňuje realizaci výstavby ve 3 fázích.
V projektu se počítá s kompletní rekonstrukcí stávajícího domu tak, aby byl zajištěn maximální komfort a moderní standard všem novým majitelům/nájemníkům budoucího BD.
V současnosti je objekt ve stavu ke kompletní rekonstrukci, disponuje 3-mi bytovými jednotkami a komerčním prostorem s výkladcem do hlavní ulice Pražská. Je vyklizen a připraven pro okamžité zahájení stavby.
Město Kostelec nad Černými lesy je atraktivní a vyhledávanou lokalitou pro investory i pro koncové zákazníky, kteří vyhledávají bydlení pro své vlastní potřeby či za účelem dalšího nájmu. Díky rekonstruovanému zámku, místnímu vyhlášenému pivovaru, rychlé dostupnosti do Prahy a dostačující občanské vybavenosti se jedná o místo s dostatečnou poptávkou po moderním dostupném bydlení, čímž poskytuje potenciál pro velmi výhodnou investici ve formě tohoto projektu.
Pro další informace a sjednání termínu prohlídky neváhejte kontaktovat makléře.
Pomocí naší hypoteční kalkulačky si můžete udělat orientační představu o výši měsíčních splátek hypotéky. O vše ostatní se pak postaráme my ve spolupráci s našimi obchodními partnery.
42 917 Kč
* Odhadovaná měsíční splátka vychází z výše úvěru Kč s pevnou úrokovou sazbou % po celou dobu trvání úvěru.
Uživatel serveru RealityMIX.cz (dále jen „Server“) dostupného na internetové adrese (URL) https://www.realitymix.cz, který provozuje společnost DALTEN media s.r.o., se sídlem Na Harfě 916/9a, Praha 9, 190 00, IČO: 271 35 306 (dále jen „Správce“) jako provozovateli tohoto Serveru uděluje svůj výslovný souhlas v souladu s ustanovením § 5 zákona č. 101/2000 Sb. O ochraně osobních údajů a o změně některých zákonů, v platném znění (dále jen „zákon o ochraně osobních údajů“), se zpracováním uživatelem poskytnutých osobních údajů a dalších dat.
Uživatel poskytuje Správci osobní údaje v rozsahu: jméno, příjmení, e-mailová adresa, telefonický kontakt a další data, a to z důvodu projeveného zájmu o nemovitost, kde prostřednictvím služby Serveru Správce osloví Uživatel inzerenta uvedeného v detailu
nemovitosti - Svoboda bydlení s.r.o. (IČ 27595153) se zájmem o jeho služby.
Uživatel tyto osobní údaje poskytuje dobrovolně a bere na vědomí, že součástí služeb Správce, které Správce Uživateli poskytuje, je vyhledání všech Uživateli vyhovujících (dle parametrů - cena, typ nemovitosti, lokalita atd.) nemovitostí. Správce za tímto účelem provozuje aplikace Hlídací pes a newsletter. Tyto služby je možné z každého zaslaného emailu odhlásit. Souhlas se zpracováním osobních údajů Uživatel poskytuje Správci na dobu neurčitou s tím, že svůj udělený souhlas může Uživatel kdykoliv na drese správce info@realitymix.cz odvolat. Správce garantuje Uživateli i další práva uvedené v ustanovení §11 a §21 zákoba č. 101/200 Sb. Ve znění pozdějších předpisů.
Více informací o zpracování údajů získáte zde (realitymix.cz/zasady-ochrany-osobnich-udaju)