Prodej domu 170m2, pozemek 859m2, Kostelec nad Labem
Nabízíme prodej domu v okrajové části města Kostelce nad Labem.
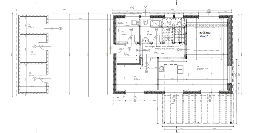
Jedná se o promyšlenou dřevostavbu, která byla postavena před 9ti lety. Praktické uspořádání domu - v dolní části se nachází obývací pokoj napojený na kuchyňský kout, praktická pracovna, která může sloužit i jako ložnice. Z obou místností je vstup na zahradu, která má příjemný výhled do krajiny. V dolní části dále naleznete koupelnu se sprchovým koutem a toaletou, úložný prostor pod schody a technickou místnost. Nechybí ani praktické zádveří.
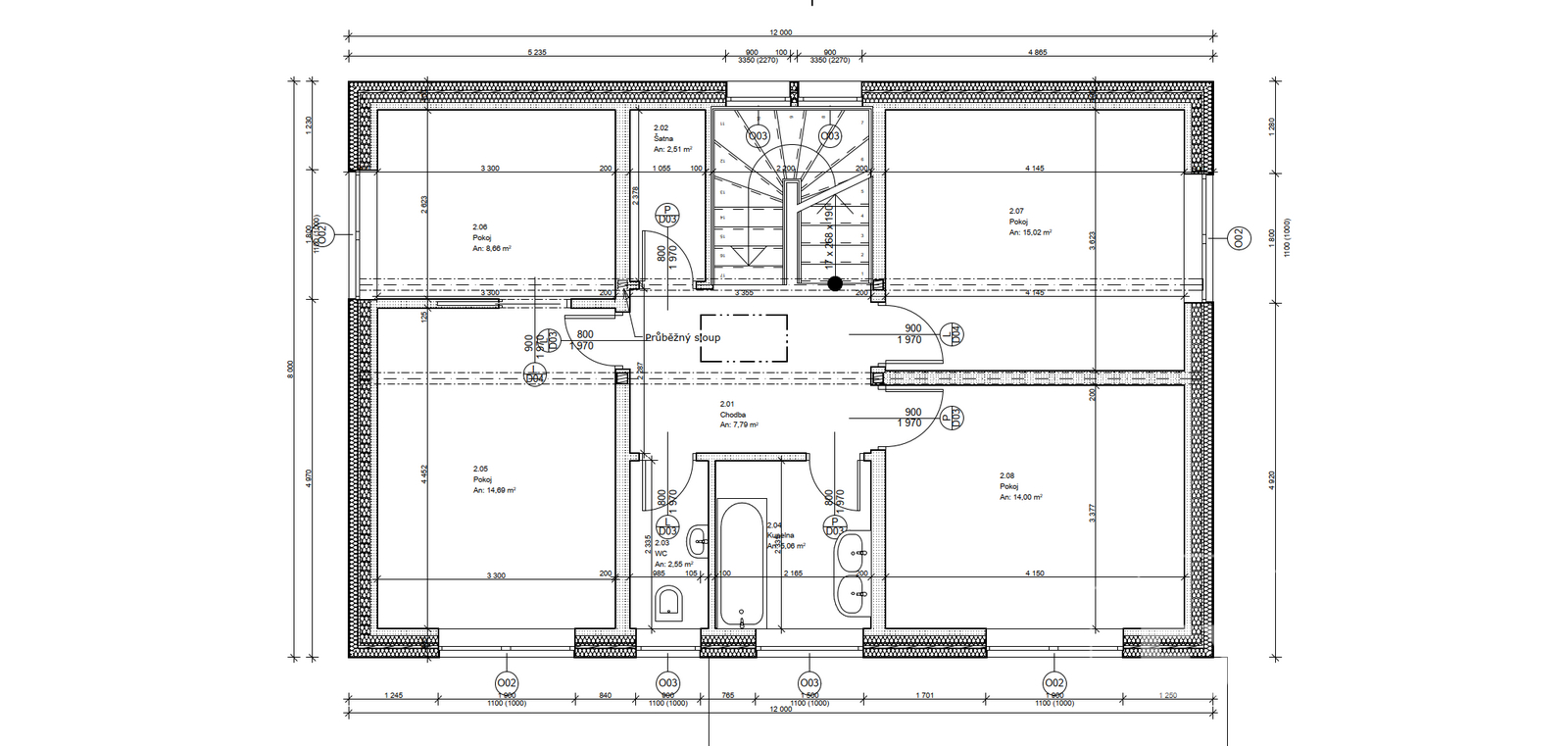
V horní části domu jsou tři samostatné pokoje, u ložnice je veliká šatna, kterou lze využívat i jako pracovnu, neboť má okno. Koupelna má vanu. Na chodbě je dále komora a vstup na půdu, která nabízí dostatek úložného prostoru pro věci, které zrovna nepotřebujete.
Celý dům je vytápěn elektrokotlem - celkové náklady na elektřinu v domě jsou 7.500,-Kč. V domě je nainstalováno podlahové vytápění. Dům je napojen na obecní vodovod a kanalizaci. Na pozemku se dále nachází vrtaná studna, která zajišťuje závlahu pro celou zahradu.
V domě je rekuperace a v obývacím pokoji je klimatizace.
Okna jsou trojskla, na oknech jsou nainstalované předokenní žaluzie. Podlaha je vinylová.
Na zahradě naleznete ještě samostatný domek, který je momentálně využíván pro skladování, lze však umístit saunu, případně vířivku. Parkovací stání je možné pro 3-4 auta, lze vybudovat přístřešek či garáž.
Celý pozemek je oplocen.
Tento praktický dům je připraven na nové majitele, kteří ocení klid maloměsta, které však má veškerou občanskou vybavenost a je kousek od Prahy - přímé spojení busem na metro Letňany - 30min.
En. štítek je formě zpracování, bude doložen, proto neuvádíme.
Pomocí naší hypoteční kalkulačky si můžete udělat orientační představu o výši měsíčních splátek hypotéky. O vše ostatní se pak postaráme my ve spolupráci s našimi obchodními partnery.
64 739 Kč
* Odhadovaná měsíční splátka vychází z výše úvěru Kč s pevnou úrokovou sazbou % po celou dobu trvání úvěru.
Uživatel serveru RealityMIX.cz (dále jen „Server“) dostupného na internetové adrese (URL) https://www.realitymix.cz, který provozuje společnost DALTEN media s.r.o., se sídlem Na Harfě 916/9a, Praha 9, 190 00, IČO: 271 35 306 (dále jen „Správce“) jako provozovateli tohoto Serveru uděluje svůj výslovný souhlas v souladu s ustanovením § 5 zákona č. 101/2000 Sb. O ochraně osobních údajů a o změně některých zákonů, v platném znění (dále jen „zákon o ochraně osobních údajů“), se zpracováním uživatelem poskytnutých osobních údajů a dalších dat.
Uživatel poskytuje Správci osobní údaje v rozsahu: jméno, příjmení, e-mailová adresa, telefonický kontakt a další data, a to z důvodu projeveného zájmu o nemovitost, kde prostřednictvím služby Serveru Správce osloví Uživatel inzerenta uvedeného v detailu
nemovitosti - EXAFIN one, s.r.o. (IČ 25710486) se zájmem o jeho služby. Tato společnost je součástí seskupení/sítě/franšízového modelu realitních kanceláří, jejich seznam můžete zobrazit kliknutím na tento odkaz.
Kadlec, realitní kancelář, s.r.o. - pobočka - Kladno (IČ 25710486 ) , EXAFIN one, s.r.o. (IČ 25710486)
Uživatel tyto osobní údaje poskytuje dobrovolně a bere na vědomí, že součástí služeb Správce, které Správce Uživateli poskytuje, je vyhledání všech Uživateli vyhovujících (dle parametrů - cena, typ nemovitosti, lokalita atd.) nemovitostí. Správce za tímto účelem provozuje aplikace Hlídací pes a newsletter. Tyto služby je možné z každého zaslaného emailu odhlásit. Souhlas se zpracováním osobních údajů Uživatel poskytuje Správci na dobu neurčitou s tím, že svůj udělený souhlas může Uživatel kdykoliv na drese správce info@realitymix.cz odvolat. Správce garantuje Uživateli i další práva uvedené v ustanovení §11 a §21 zákoba č. 101/200 Sb. Ve znění pozdějších předpisů.
Více informací o zpracování údajů získáte zde (realitymix.cz/zasady-ochrany-osobnich-udaju)