Nabízíme Vám ke koupi výjimečnou novostavbu, rodinný dům s dispozicí 5+kk s dvěma koupelnami, rozsáhlou zahradou a stáním pro dvě auta. ODKAZ NA VIRTUÁLNÍ PROHLÍDKU: 3D 360
Moderní dřevostavba s důrazem na kvalitu, energetickou úspornost a přírodní materiály, je postavena z KVH hranolů, konstrukčních desek se skelným vláknem a hustým jádrem a difúzně otevřenou, provětrávanou fasádou ze sibiřského modřínu. Velkoformátová okna v každé místnosti zajišťují potřebné množství denního světla. O požadovaný tepelný komfort se stará podlahové vytápění v kombinaci s tepelným čerpadlem vzduch-voda, které zvládne topit i chladit.
Kolaudace proběhla v únoru 2026.
ARCHITEKTURA A DISPOZICE
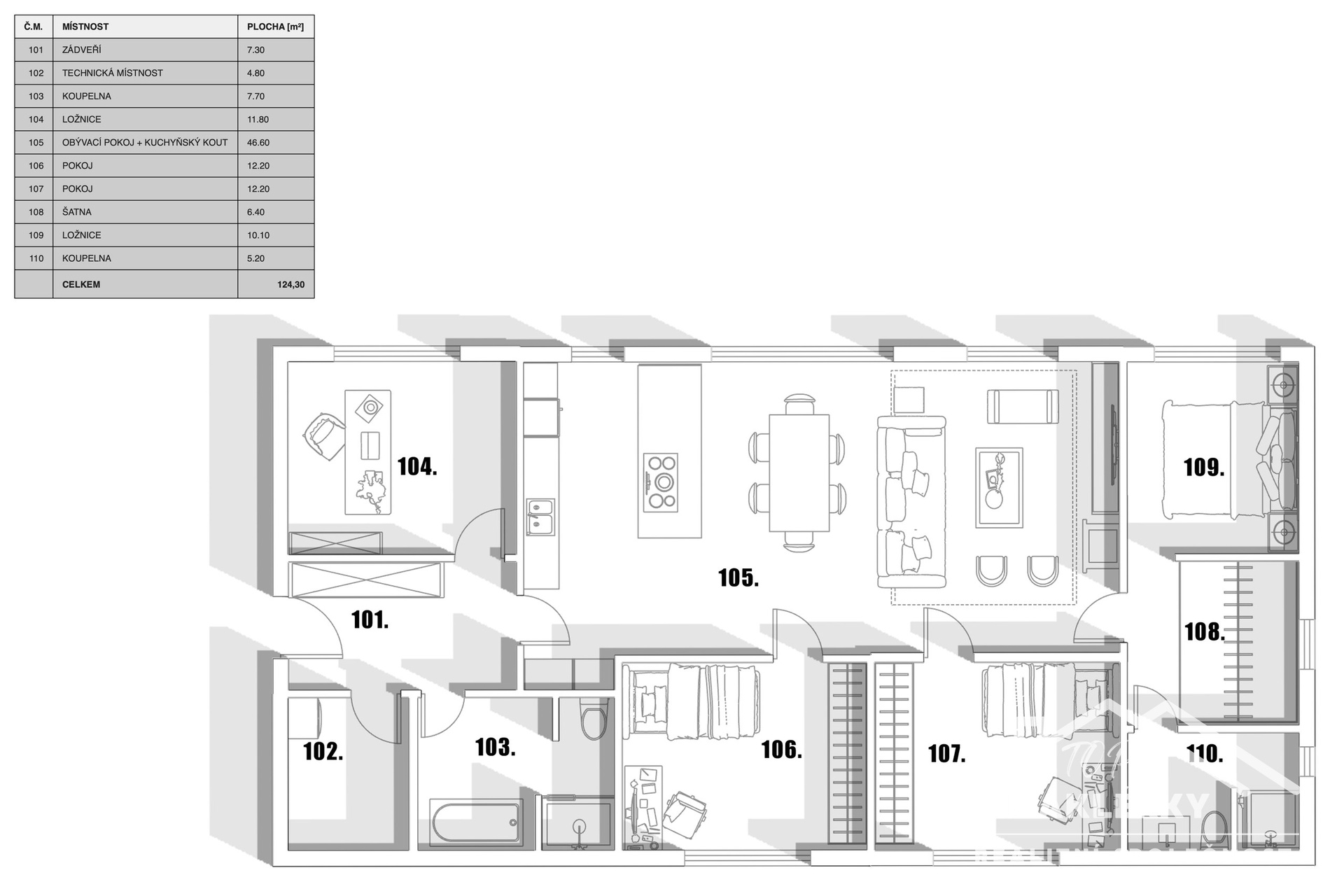
Užitná plocha: 124 m²
Zastavěná plocha: 146 m²
Pozemek: 1 312 m²
Typ domu: jednopodlažní, nepodsklepený
Dispozice: 5+kk
Důmyslná dispozice je řešena efektivně – bez slepých a nevyužitelných spojovacích chodeb. V každém pokoji je počítáno s prostorem pro vestavěnou skříň, přičemž další úložné prostory se nachází v podkroví se dvěma samostatnými vstupy.
Vstup tvoří praktické zádveří navazující na technické zázemí domu, hlavní koupelnu s toaletou a jeden pokoj.
Dominantou domu je pak velkorysý obývací prostor s kuchyní a jídelnou se vzdušným otevřeným stropem do krovu. Součástí tohoto prostoru je stylový komín s přípravou pro instalaci krbových kamen, která budou sloužit jako designový prvek, k navození romantické atmosféry a zároveň funkční, bivalentní zdroj, který je schopen pokrýt primární potřebu tepla domu.
Přímo z hlavního obývacího prostoru je vstup do dalších dvou pokojů a zadní části domu, kterou tvoří klidová zóna, ložnice s vlastní šatnou a samostatnou koupelnou s toaletou.
KONSTRUKCE A TECHNICKÉ ŘEŠENÍ
• Odvětrávaná podkladní vrstva pod základovou deskou jako efektivní opatření proti pronikání radonu z podloží
• Nosné I nenosné konstrukce ze sušených, hoblovaných KVH hranolů
• SDK desky RigiStabil se speciálním jádrem vyztuženým skelnými vlákny, s možností bodového mechanického zatížení až 80 kg
• Izolace z minerální vlny
• Difúzně otevřená skladba konstrukcí
• Provětrávaná fasáda ze sibiřského modřínu
• Velkoformátová okna Inoutic s trojskly a nízkým součinitelem prostupu tepla
Energetická náročnost budovy: třída B – velmi úsporná.
TECHNOLOGIE A ENERGETIKA
• Síťové napájení 400 V / 25 A
• Voda a kanalizace napojena na městský rozvod
• V každém pokoji rozvod STA, DATA, WiFi repeater a příprava pro EZS a noční světlo
• Tepelné čerpadlo vzduch–voda Panasonic schopné topit i chladit
• Teplovodní podlahové vytápění Rehau – 10 samostatně regulovatelných zón
• Rozvod vody v systému Rehau Rautitan
• Teplá voda s cirkulací
• Zásobník TUV Dražice 250 l
• Fotovoltaická elektrárna 2,7 kWp, sloužící výhradně k ohřevu teplé vody, pokrývá téměř celoroční potřebu
• Tlaková kanalizace Presskan
• Retenční nádrž na dešťovou vodu 6 m3
ZAHRADA
Mírně svažitý pozemek o velikosti 1 312 m² se vzrostlými plodícími stromy (jabloně, hrušně, ořechy), které zadržují vláhu na pozemku a v horkých letních dnech zajišťují chladivý stín, poskytuje dostatek prostoru pro relaxaci i vlastní zahradní projekty. Zahradní domek pro uskladnění techniky či hobby zázemí.
LOKALITA
Klidná část středočeského města Kouřim, cca 1 km od centra, v těsné blízkosti Skanzenu - Muzea lidových staveb, s málo pravděpodobnou další výstavbou v těsném okolí.
Dostupnost:
• Kostelec and Černými lesy – cca 10 min
• Český Brod – cca 15 min
• Kolín – cca 20 min
• Říčany – cca 25 min
• Praha – cca 30 min
CO ZBÝVÁ DOKONČIT
• Jedna koupelna (obklady, dlažba, sanita částečně k dispozici)
• Instalace odtahových ventilátorů z koupelen
• Instalace vnitřních dveří
• Dopojení zadních svodů do retenční nádrže
• Dokončení dlažby parkovacího stání a chodníčku
• Terasa, oplocení a příp. terénní úpravy
V prezentaci je k dispozici 2D a 3D půdorys s výměrami a vizualizace, pro inspiraci.
Pokud hledáte nový domov pro svou rodinu a chcete kvalitní, nízkoenergetický dům v klidné lokalitě, tak se na mě můžete obrátit. Ráda Vám poskytnu více informací k této nemovitosti a provedu Vás na osobní prohlídce.
Pomocí naší hypoteční kalkulačky si můžete udělat orientační představu o výši měsíčních splátek hypotéky. O vše ostatní se pak postaráme my ve spolupráci s našimi obchodními partnery.
46 925 Kč
* Odhadovaná měsíční splátka vychází z výše úvěru Kč s pevnou úrokovou sazbou % po celou dobu trvání úvěru.
Uživatel serveru RealityMIX.cz (dále jen „Server“) dostupného na internetové adrese (URL) https://www.realitymix.cz, který provozuje společnost DALTEN media s.r.o., se sídlem Na Harfě 916/9a, Praha 9, 190 00, IČO: 271 35 306 (dále jen „Správce“) jako provozovateli tohoto Serveru uděluje svůj výslovný souhlas v souladu s ustanovením § 5 zákona č. 101/2000 Sb. O ochraně osobních údajů a o změně některých zákonů, v platném znění (dále jen „zákon o ochraně osobních údajů“), se zpracováním uživatelem poskytnutých osobních údajů a dalších dat.
Uživatel poskytuje Správci osobní údaje v rozsahu: jméno, příjmení, e-mailová adresa, telefonický kontakt a další data, a to z důvodu projeveného zájmu o nemovitost, kde prostřednictvím služby Serveru Správce osloví Uživatel inzerenta uvedeného v detailu
nemovitosti - TOP MAKLÉŘKY (IČ 69639281) se zájmem o jeho služby.
Uživatel tyto osobní údaje poskytuje dobrovolně a bere na vědomí, že součástí služeb Správce, které Správce Uživateli poskytuje, je vyhledání všech Uživateli vyhovujících (dle parametrů - cena, typ nemovitosti, lokalita atd.) nemovitostí. Správce za tímto účelem provozuje aplikace Hlídací pes a newsletter. Tyto služby je možné z každého zaslaného emailu odhlásit. Souhlas se zpracováním osobních údajů Uživatel poskytuje Správci na dobu neurčitou s tím, že svůj udělený souhlas může Uživatel kdykoliv na drese správce info@realitymix.cz odvolat. Správce garantuje Uživateli i další práva uvedené v ustanovení §11 a §21 zákoba č. 101/200 Sb. Ve znění pozdějších předpisů.
Více informací o zpracování údajů získáte zde (realitymix.cz/zasady-ochrany-osobnich-udaju)