Chcete koupit pozemek a obratem začít stavět? Zde je díky platnému stavebnímu povolení taková příležitost.
Nabízíme k prodeji rovinatý pozemek v obci Kozlov u Jihlavy. Jedná se o velmi atraktivní lokalitu, která kombinuje klid venkovského prostředí s výbornou dostupností do krajského města Jihlava, kam se pohodlně dostanete během několika minut jízdy. To samé platí i o nájezdu na dálnici D1. Pozemek se nachází v obci s funkčním zázemím najdete zde mateřskou a základní školu, hospodu, obchod nebo sportovní areál.
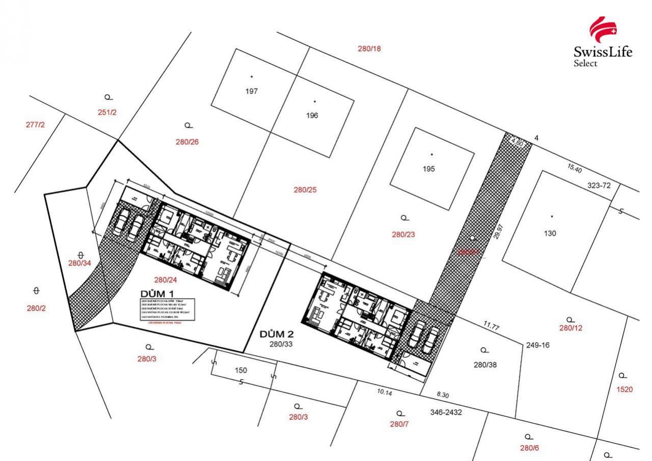
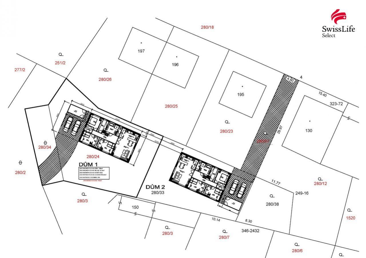
Samotný pozemek je rovinatý, s kvalitní půdou a nabízí ideální podmínky pro výstavbu rodinného domu. Možností je také na již rozděleném pozemku postavit dva rodinné domy s tím, že každý by měl svoje napojení na sítě a svůj příjezd, jak je patrno z mapky a přiložené studie. Zde se tedy jedná o prodej menší části nabízeného pozemku, a to o velikosti 607 metrů.
Na pozemku je k dispozici dřevěná kůlna k uložení nářadí, což se na stavbě vždy hodí. Veškeré inženýrské sítě se nacházejí na hranici pozemku, což výrazně usnadňuje napojení a snižuje náklady na budoucí výstavbu.
Kozlov je vyhledávanou lokalitou díky své poloze, příjemné atmosféře a okolní přírodě. Místo je ideální pro ty, kteří hledají klidné bydlení s veškerým komfortem a rychlým spojením do města.
Pro více informací nebo sjednání prohlídky nás neváhejte kontaktovat. Rádi Vám poskytneme veškeré detaily a pomůžeme i s kompletním právním a finančním servisem.
Pomocí naší hypoteční kalkulačky si můžete udělat orientační představu o výši měsíčních splátek hypotéky. O vše ostatní se pak postaráme my ve spolupráci s našimi obchodními partnery.
8 356 Kč
* Odhadovaná měsíční splátka vychází z výše úvěru Kč s pevnou úrokovou sazbou % po celou dobu trvání úvěru.
Uživatel serveru RealityMIX.cz (dále jen „Server“) dostupného na internetové adrese (URL) https://www.realitymix.cz, který provozuje společnost DALTEN media s.r.o., se sídlem Na Harfě 916/9a, Praha 9, 190 00, IČO: 271 35 306 (dále jen „Správce“) jako provozovateli tohoto Serveru uděluje svůj výslovný souhlas v souladu s ustanovením § 5 zákona č. 101/2000 Sb. O ochraně osobních údajů a o změně některých zákonů, v platném znění (dále jen „zákon o ochraně osobních údajů“), se zpracováním uživatelem poskytnutých osobních údajů a dalších dat.
Uživatel poskytuje Správci osobní údaje v rozsahu: jméno, příjmení, e-mailová adresa, telefonický kontakt a další data, a to z důvodu projeveného zájmu o nemovitost, kde prostřednictvím služby Serveru Správce osloví Uživatel inzerenta uvedeného v detailu
nemovitosti - Swiss Life Select Reality (IČ 24260444) se zájmem o jeho služby. Tato společnost je součástí seskupení/sítě/franšízového modelu realitních kanceláří, jejich seznam můžete zobrazit kliknutím na tento odkaz.
Fincentrum a.s. (IČ 24260444) , Swiss Life Select Reality (IČ 24260444)
Uživatel tyto osobní údaje poskytuje dobrovolně a bere na vědomí, že součástí služeb Správce, které Správce Uživateli poskytuje, je vyhledání všech Uživateli vyhovujících (dle parametrů - cena, typ nemovitosti, lokalita atd.) nemovitostí. Správce za tímto účelem provozuje aplikace Hlídací pes a newsletter. Tyto služby je možné z každého zaslaného emailu odhlásit. Souhlas se zpracováním osobních údajů Uživatel poskytuje Správci na dobu neurčitou s tím, že svůj udělený souhlas může Uživatel kdykoliv na drese správce info@realitymix.cz odvolat. Správce garantuje Uživateli i další práva uvedené v ustanovení §11 a §21 zákoba č. 101/200 Sb. Ve znění pozdějších předpisů.
Více informací o zpracování údajů získáte zde (realitymix.cz/zasady-ochrany-osobnich-udaju)