Prodej novostavby rodinného domu 130 m², Králův Dvůr - Křižatky
Nabízíme k prodeji rodinný dům na klíč v krásné lokalitě Králův Dvůr, část obce Křižatky, v jednom z nejhezčích míst na Berounsku.
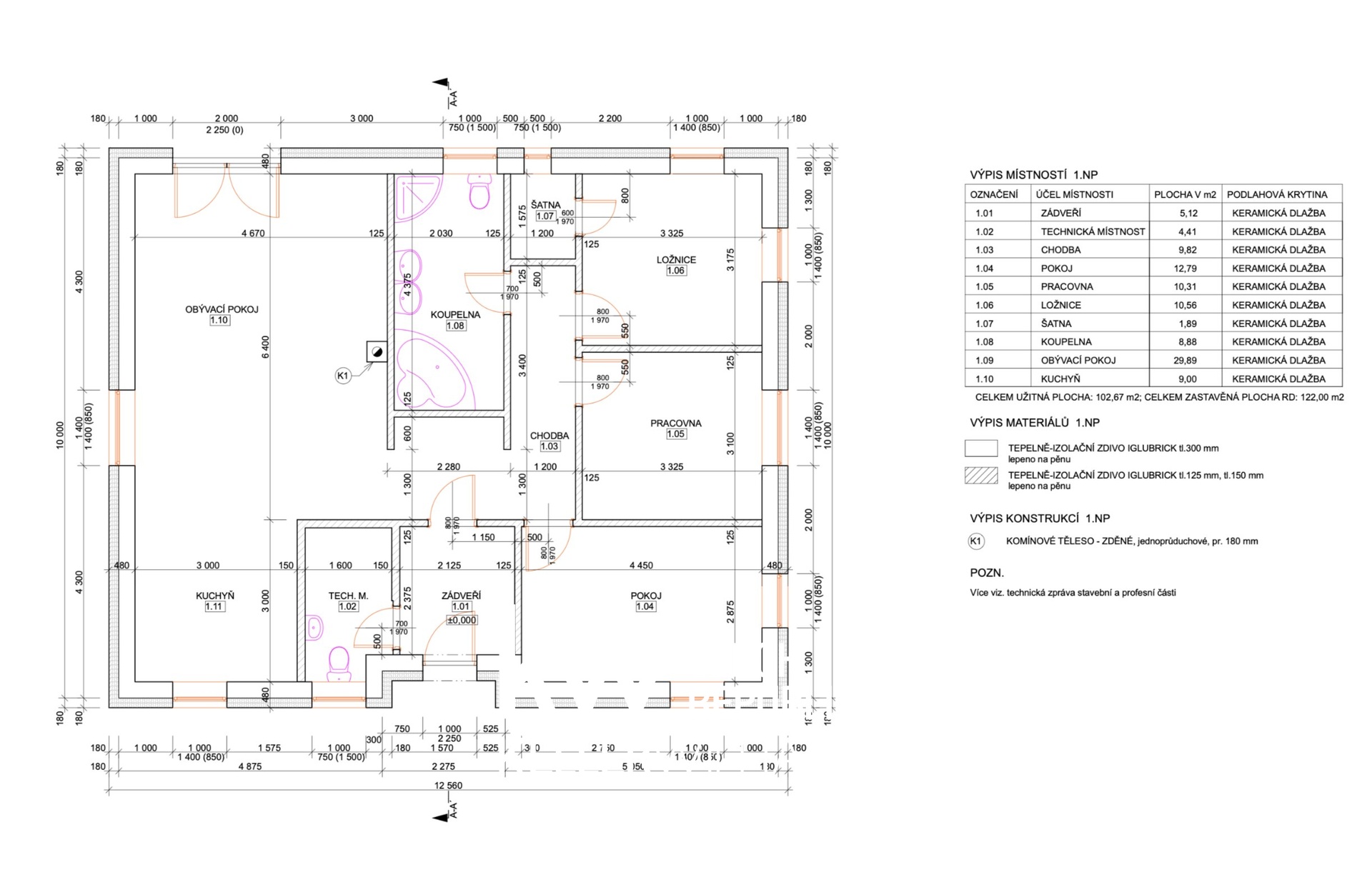
Tento projekt výstavby Vám umožní přizpůsobit si budoucí domov přesně podle vašich představ. Dům o zastavěné ploše 126 m² nabízí:
- Tři prostorné ložnice pro pohodlné bydlení celé rodiny, jedna z ložnic se šatnou.
- Velký obývací pokoj propojený s kuchyní, ideální pro společné chvíle s rodinou a přáteli.
- Prostornou koupelnu a technickou místnost s druhou toaletou pro maximální komfort.
- Zádveří.
V základním provedení dům nabízí podlahové vytápění, vinylové podlahy a úsporné tepelné čerpadlo. K dispozici jsou dvě parkovací stání před domem. Dům lze dle Vašich požadavků zmenšit nebo zvětšit, případně dojednat jakýkoliv nadstandard. Kuchyňská linka a oplocení nejsou zahrnuty v ceně.
Výhody lokality:
- Výborná dopravní dostupnost: Blízkost dálnice D5 umožňuje snadný přístup do Prahy i Plzně.
- Veřejná doprava: Zastávky autobusu v blízkosti zajišťují pohodlné spojení s okolními městy.
- Vzdělání: V Berouně a Králově Dvoře najdete mateřské, základní i střední školy.
- Zdravotní péče: Blízká poliklinika a Berounská nemocnice poskytují veškeré potřebné zdravotní služby.
- Příroda: Okolí nabízí nádherné přírodní scenérie, ideální pro procházky a relaxaci.
Tento dům je ideální volbou pro ty, kteří hledají klidné bydlení v blízkosti přírody, s výbornou dostupností do města. Neváhejte nás kontaktovat pro více informací a sjednání prohlídky!
Uvedené výměry jsou orientační. Veškeré zveřejněné údaje obsažené v tomto inzerátu mají pouze informativní charakter a nejsou nabídkou ve smyslu § 1731 nebo § 1732 občanského zákoníku, ani se nejedná o veřejný příslib dle § 1733 občanského zákoníku.
Pomocí naší hypoteční kalkulačky si můžete udělat orientační představu o výši měsíčních splátek hypotéky. O vše ostatní se pak postaráme my ve spolupráci s našimi obchodními partnery.
70 853 Kč
* Odhadovaná měsíční splátka vychází z výše úvěru Kč s pevnou úrokovou sazbou % po celou dobu trvání úvěru.
Uživatel serveru RealityMIX.cz (dále jen „Server“) dostupného na internetové adrese (URL) https://www.realitymix.cz, který provozuje společnost DALTEN media s.r.o., se sídlem Na Harfě 916/9a, Praha 9, 190 00, IČO: 271 35 306 (dále jen „Správce“) jako provozovateli tohoto Serveru uděluje svůj výslovný souhlas v souladu s ustanovením § 5 zákona č. 101/2000 Sb. O ochraně osobních údajů a o změně některých zákonů, v platném znění (dále jen „zákon o ochraně osobních údajů“), se zpracováním uživatelem poskytnutých osobních údajů a dalších dat.
Uživatel poskytuje Správci osobní údaje v rozsahu: jméno, příjmení, e-mailová adresa, telefonický kontakt a další data, a to z důvodu projeveného zájmu o nemovitost, kde prostřednictvím služby Serveru Správce osloví Uživatel inzerenta uvedeného v detailu
nemovitosti - Keller Williams Czech Republic (IČ 07796340) se zájmem o jeho služby. Tato společnost je součástí seskupení/sítě/franšízového modelu realitních kanceláří, jejich seznam můžete zobrazit kliknutím na tento odkaz.
Keller Williams Czech Republic (IČ 07796340) , Nemovito by Keller Williams (IČ 10826971) , Keller Williams Czech Republic (IČ 07796340) , Keller Williams - centrála (IČ 06521924)
Uživatel tyto osobní údaje poskytuje dobrovolně a bere na vědomí, že součástí služeb Správce, které Správce Uživateli poskytuje, je vyhledání všech Uživateli vyhovujících (dle parametrů - cena, typ nemovitosti, lokalita atd.) nemovitostí. Správce za tímto účelem provozuje aplikace Hlídací pes a newsletter. Tyto služby je možné z každého zaslaného emailu odhlásit. Souhlas se zpracováním osobních údajů Uživatel poskytuje Správci na dobu neurčitou s tím, že svůj udělený souhlas může Uživatel kdykoliv na drese správce info@realitymix.cz odvolat. Správce garantuje Uživateli i další práva uvedené v ustanovení §11 a §21 zákoba č. 101/200 Sb. Ve znění pozdějších předpisů.
Více informací o zpracování údajů získáte zde (realitymix.cz/zasady-ochrany-osobnich-udaju)