Nabízíme k prodeji nebytové prostory v přízemí cihlového bytového domu v atraktivní lokalitě Kotojedy. Díky skvělé poloze, pouhých 7 minut jízdy od centra historické Kroměříže, představuje tento prostor ideální volbu pro realizaci Vašich podnikatelských záměrů.
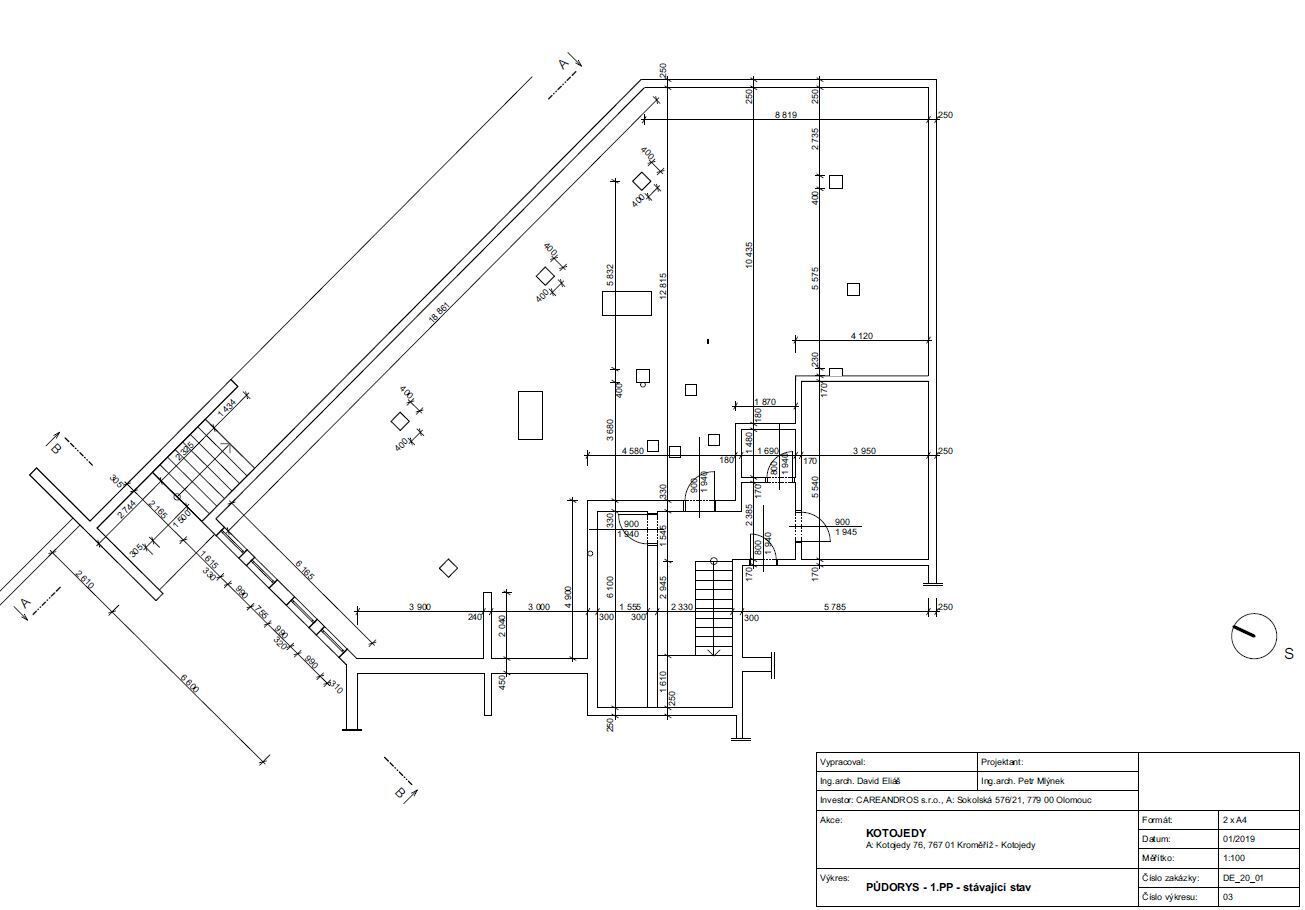
Celková užitná plocha činí 246,81 m², skládá se z hlavního komerčního prostoru (219,97 m²) – velkorysý, otevřený a snadno přizpůsobitelný prostor, který můžete upravit přesně podle svých potřeb, skladu/dílny (22,01 m²) – vhodný pro uskladnění materiálů, zboží nebo pro technické zázemí, sociálního zařízení (2x: 2,32 m² a 2,51 m²) – pohodlné a plně funkční zázemí. Díky své dispozici a velikosti jsou tyto prostory ideální pro širokou škálu podnikatelských činností, jako jsou kanceláře, lékařská ordinace, rehabilitační služby, kosmetická studia, poradenská centra nebo vzdělávací kurzy.
Nemovitost se nachází v klidné a příjemné čtvrti Kotojedy, která nabízí výhodné spojení klidného prostředí s výbornou dostupností pro Vás i Vaše klienty. Možnost odpočtu DPH.
Pro více informací nás kontaktujte – rádi Vám poskytneme veškeré detaily a domluvíme termín prohlídky.
Pomocí naší hypoteční kalkulačky si můžete udělat orientační představu o výši měsíčních splátek hypotéky. O vše ostatní se pak postaráme my ve spolupráci s našimi obchodními partnery.
7 490 Kč
* Odhadovaná měsíční splátka vychází z výše úvěru Kč s pevnou úrokovou sazbou % po celou dobu trvání úvěru.
Uživatel serveru RealityMIX.cz (dále jen „Server“) dostupného na internetové adrese (URL) https://www.realitymix.cz, který provozuje společnost DALTEN media s.r.o., se sídlem Na Harfě 916/9a, Praha 9, 190 00, IČO: 271 35 306 (dále jen „Správce“) jako provozovateli tohoto Serveru uděluje svůj výslovný souhlas v souladu s ustanovením § 5 zákona č. 101/2000 Sb. O ochraně osobních údajů a o změně některých zákonů, v platném znění (dále jen „zákon o ochraně osobních údajů“), se zpracováním uživatelem poskytnutých osobních údajů a dalších dat.
Uživatel poskytuje Správci osobní údaje v rozsahu: jméno, příjmení, e-mailová adresa, telefonický kontakt a další data, a to z důvodu projeveného zájmu o nemovitost, kde prostřednictvím služby Serveru Správce osloví Uživatel inzerenta uvedeného v detailu
nemovitosti - ADRAS REALITY s.r.o. (IČ 28561325) se zájmem o jeho služby.
Uživatel tyto osobní údaje poskytuje dobrovolně a bere na vědomí, že součástí služeb Správce, které Správce Uživateli poskytuje, je vyhledání všech Uživateli vyhovujících (dle parametrů - cena, typ nemovitosti, lokalita atd.) nemovitostí. Správce za tímto účelem provozuje aplikace Hlídací pes a newsletter. Tyto služby je možné z každého zaslaného emailu odhlásit. Souhlas se zpracováním osobních údajů Uživatel poskytuje Správci na dobu neurčitou s tím, že svůj udělený souhlas může Uživatel kdykoliv na drese správce info@realitymix.cz odvolat. Správce garantuje Uživateli i další práva uvedené v ustanovení §11 a §21 zákoba č. 101/200 Sb. Ve znění pozdějších předpisů.
Více informací o zpracování údajů získáte zde (realitymix.cz/zasady-ochrany-osobnich-udaju)