Prodej rodinného domu, 224 m, pozemek 368 m klidná část Krupky
Cena: 5 900 000 Kč
Nabízíme k prodeji samostatně stojící rodinný dům v klidné části města Krupka, který zaujme především svou velkorysou podlahovou plochou a variabilitou využití pro rodinné bydlení.
Dům nabízí celkovou podlahovou plochu cca 224 m a je rozdělen do několika podlaží:
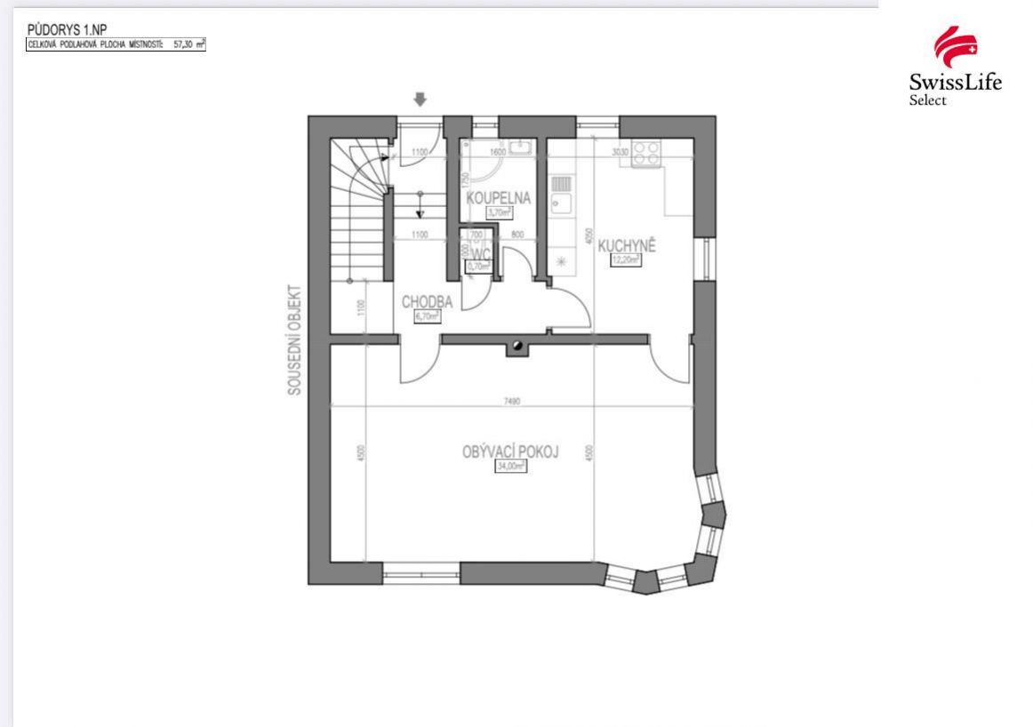
1. nadzemní podlaží (cca 57 m): koupelna, WC, kuchyně s jídelnou propojená s obývacím pokojem
2. nadzemní podlaží (cca 58 m): koupelna, WC a tři samostatné pokoje
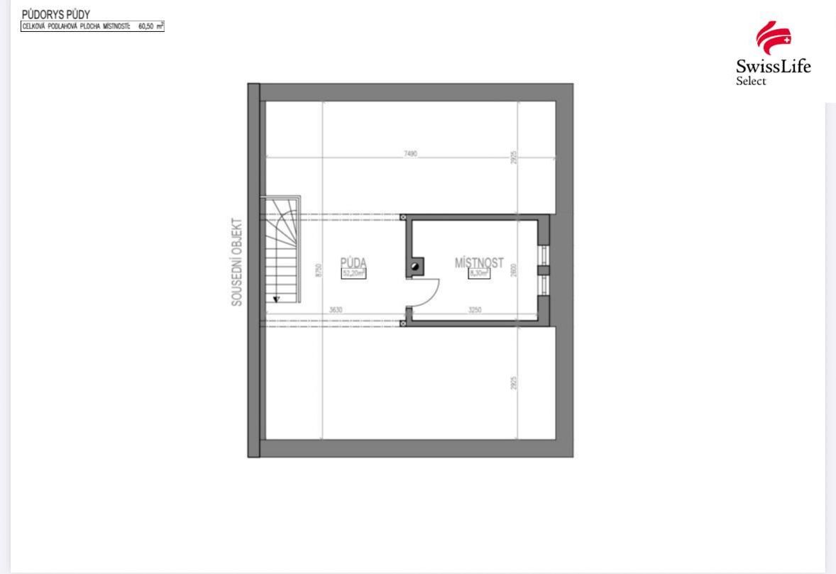
Podkroví (cca 60 m): prostorná půda s možností vybudování dalších obytných místností nebo rozšíření obytné části domu
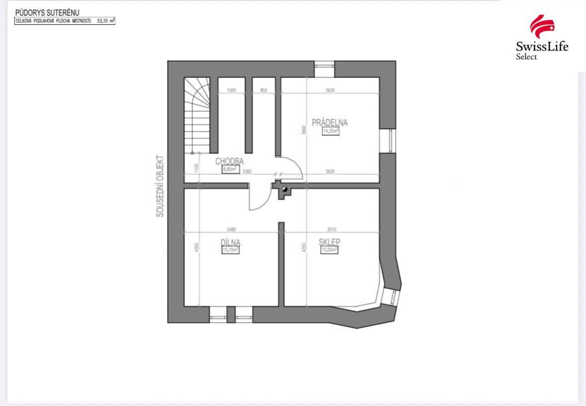
Suterén (cca 55 m): suchý, plnohodnotně využitelný prostor s přívodem vody a elektřiny, vhodný například pro dílnu, technické zázemí nebo skladování
Dům je ve zachovalém stavu s původním interiérem, což nabízí novému majiteli možnost úprav dle vlastních představ. Velkou výhodou jsou již provedené nové elektrické rozvody v mědi a plastová okna.
Součástí nemovitosti je také garáž o velikosti cca 23 m s montážní jámou, která ocení zejména motoristé. Na pozemku o velikosti 368 m se dále nachází dvě kůlny a skleník, což poskytuje dostatek prostoru pro zahradničení i praktické využití.
Dům je napojen na vodovodní řád, odpad je řešen jímkou s přepadem do veřejné kanalizace. Vytápění je řešeno plynem. Střecha byla opravena přibližně před 20 lety.
Velkou výhodou je přístup na pozemek z přední i zadní strany a možnost parkování nejen v garáži, ale i přímo před domem.
Nemovitost je ideální volbou pro rodinu, která hledá prostorné a klidné bydlení s možností dalšího rozšíření a přizpůsobení podle vlastních představ.
V případě zájmu o více informací nebo sjednání osobní prohlídky mě neváhejte kontaktovat.
V případě více zájemců o nemovitost, si majitel vyhrazuje právo prodat nemovitost zájemci s nejvyšší nabídkou.
Pomocí naší hypoteční kalkulačky si můžete udělat orientační představu o výši měsíčních splátek hypotéky. O vše ostatní se pak postaráme my ve spolupráci s našimi obchodními partnery.
23 888 Kč
* Odhadovaná měsíční splátka vychází z výše úvěru Kč s pevnou úrokovou sazbou % po celou dobu trvání úvěru.
Uživatel serveru RealityMIX.cz (dále jen „Server“) dostupného na internetové adrese (URL) https://www.realitymix.cz, který provozuje společnost DALTEN media s.r.o., se sídlem Na Harfě 916/9a, Praha 9, 190 00, IČO: 271 35 306 (dále jen „Správce“) jako provozovateli tohoto Serveru uděluje svůj výslovný souhlas v souladu s ustanovením § 5 zákona č. 101/2000 Sb. O ochraně osobních údajů a o změně některých zákonů, v platném znění (dále jen „zákon o ochraně osobních údajů“), se zpracováním uživatelem poskytnutých osobních údajů a dalších dat.
Uživatel poskytuje Správci osobní údaje v rozsahu: jméno, příjmení, e-mailová adresa, telefonický kontakt a další data, a to z důvodu projeveného zájmu o nemovitost, kde prostřednictvím služby Serveru Správce osloví Uživatel inzerenta uvedeného v detailu
nemovitosti - Swiss Life Select Reality (IČ 24260444) se zájmem o jeho služby. Tato společnost je součástí seskupení/sítě/franšízového modelu realitních kanceláří, jejich seznam můžete zobrazit kliknutím na tento odkaz.
Fincentrum a.s. (IČ 24260444) , Swiss Life Select Reality (IČ 24260444)
Uživatel tyto osobní údaje poskytuje dobrovolně a bere na vědomí, že součástí služeb Správce, které Správce Uživateli poskytuje, je vyhledání všech Uživateli vyhovujících (dle parametrů - cena, typ nemovitosti, lokalita atd.) nemovitostí. Správce za tímto účelem provozuje aplikace Hlídací pes a newsletter. Tyto služby je možné z každého zaslaného emailu odhlásit. Souhlas se zpracováním osobních údajů Uživatel poskytuje Správci na dobu neurčitou s tím, že svůj udělený souhlas může Uživatel kdykoliv na drese správce info@realitymix.cz odvolat. Správce garantuje Uživateli i další práva uvedené v ustanovení §11 a §21 zákoba č. 101/200 Sb. Ve znění pozdějších předpisů.
Více informací o zpracování údajů získáte zde (realitymix.cz/zasady-ochrany-osobnich-udaju)