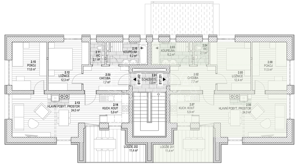
Novostavba bytu 3 + kk 77,2m2 s lodžií 11,4m2 , Kunčice nad Labem u Vrchlabí
Nabízíme k prodeji moderní a útulný byt 3 + kk 77,2m2 s lodžií 11,4m2 v první etapě novostavby domu v obci Kunčice nad Labem, ideální pro rodiny s dětmi. Nachází se v klidné lokalitě, pouhých 5 minut autem od Vrchlabí, a nabízí jedinečné spojení pohodlí a přírody, s blízkostí lyžařských středisek Herlíkovice a Špindlerův Mlýn, či Černý Důl nebo Janské Lázně v dojezdové vzdálenosti.
Byt o celkové ploše 88 m² se nachází ve druhém patře domu a poskytuje dostatek prostoru pro každodenní rodinný život. Pokoje přirozeně vytváří prostor pro hravost a fantazii vašich nejmenších, zatímco obývací místnost s moderní architekturou a příjemným prosvětlením vytváří ideální prostředí pro rodinné chvíle. V bytě je příprava na kuchyňskou linku.
S vybavením bytu vám rádi pomůžeme.
Pro uložení sportovního či jiného vybavení má byt k dispozici prostorný sklep a parkovací místo pro vůz máte na privátním parkovišti na pozemku před domem.
Jedním z největších benefitů této nemovitosti je rozsáhlá zahrada, kde děti mohou běhat, hrát si a objevovat přírodu, zatímco rodiče mohou trávit čas a užívat si klid a pohodu. Zahrada je dostatečně prostorná pro pořádání rodinných oslav a setkání s přáteli.
Dům je vytápěn moderním tepleným čerpadlem, které zajišťuje plný komfort během celého roku.
Lokalita nabízí možnosti koupání v Labi, které navazuje přímo na pozemek, což je dokonalá aktivita pro letní dny. A okolí nabízí širokou škálu příležitostí pro výlety a rekreaci v přírodě. Ideální místo pro rodiny hledající bezpečné a přátelské prostředí pro své děti, či vás - sportovně laděné cyklisty, turisty nebo lyžaře.
Součástí ceny bytu je parkovací stání a venkovní sklepní kóje umístěná u parkovacích stání.
Majitel každého bytu získává v ceně bytu podíl 1/8 na pozemku zahrady přiléhající k domu, velikost každého podílu je cca 400m².
V případě zájmu o prohlídku mě neváhejte kontaktovat.
Pomocí naší hypoteční kalkulačky si můžete udělat orientační představu o výši měsíčních splátek hypotéky. O vše ostatní se pak postaráme my ve spolupráci s našimi obchodními partnery.
24 252 Kč
* Odhadovaná měsíční splátka vychází z výše úvěru Kč s pevnou úrokovou sazbou % po celou dobu trvání úvěru.
Prodáváte nemovitost a potřebujete zjistit její reálnou hodnotu?
Uživatel serveru RealityMIX.cz (dále jen „Server“) dostupného na internetové adrese (URL) https://www.realitymix.cz, který provozuje společnost DALTEN media s.r.o., se sídlem Na Harfě 916/9a, Praha 9, 190 00, IČO: 271 35 306 (dále jen „Správce“) jako provozovateli tohoto Serveru uděluje svůj výslovný souhlas v souladu s ustanovením § 5 zákona č. 101/2000 Sb. O ochraně osobních údajů a o změně některých zákonů, v platném znění (dále jen „zákon o ochraně osobních údajů“), se zpracováním uživatelem poskytnutých osobních údajů a dalších dat.
Uživatel poskytuje Správci osobní údaje v rozsahu: jméno, příjmení, e-mailová adresa, telefonický kontakt a další data, a to z důvodu projeveného zájmu o nemovitost, kde prostřednictvím služby Serveru Správce osloví Uživatel inzerenta uvedeného v detailu
nemovitosti - QARA s.r.o. (IČ 01740113) se zájmem o jeho služby. Tato společnost je součástí seskupení/sítě/franšízového modelu realitních kanceláří, jejich seznam můžete zobrazit kliknutím na tento odkaz.
QARA s.r.o. Ostrava (IČ 01740113) , QARA s.r.o. Brno (IČ 01740113) , QARA s.r.o. (IČ 01740113)
Uživatel tyto osobní údaje poskytuje dobrovolně a bere na vědomí, že součástí služeb Správce, které Správce Uživateli poskytuje, je vyhledání všech Uživateli vyhovujících (dle parametrů - cena, typ nemovitosti, lokalita atd.) nemovitostí. Správce za tímto účelem provozuje aplikace Hlídací pes a newsletter. Tyto služby je možné z každého zaslaného emailu odhlásit. Souhlas se zpracováním osobních údajů Uživatel poskytuje Správci na dobu neurčitou s tím, že svůj udělený souhlas může Uživatel kdykoliv na drese správce info@realitymix.cz odvolat. Správce garantuje Uživateli i další práva uvedené v ustanovení §11 a §21 zákoba č. 101/200 Sb. Ve znění pozdějších předpisů.
Více informací o zpracování údajů získáte zde (realitymix.cz/zasady-ochrany-osobnich-udaju)