Prodej rodinného domu 6kk, 252 m2 + garáž + pozemek 1150 m2, Kunice - Vidovice, okr. Praha - Východ
Nabízíme k prodeji rodinný dům, který je ideální volbou pro ty, kteří hledají kvalitní a poctivě postavené bydlení. Dům si stavěl majitel pro sebe a svoji rodinu. Díky tomu bylo při výstavbě prováděno vše s maximální péčí a důrazem na dlouhou životnost. Byly použity výhradně jen kvalitní stavební materiály a poctivé řemeslné zpracování. Dům má promyšlené detaily včetně komfortní dispozice navržené tak, aby měla rodina své zázemí a každý člen rodiny své pohodlí i soukromí.
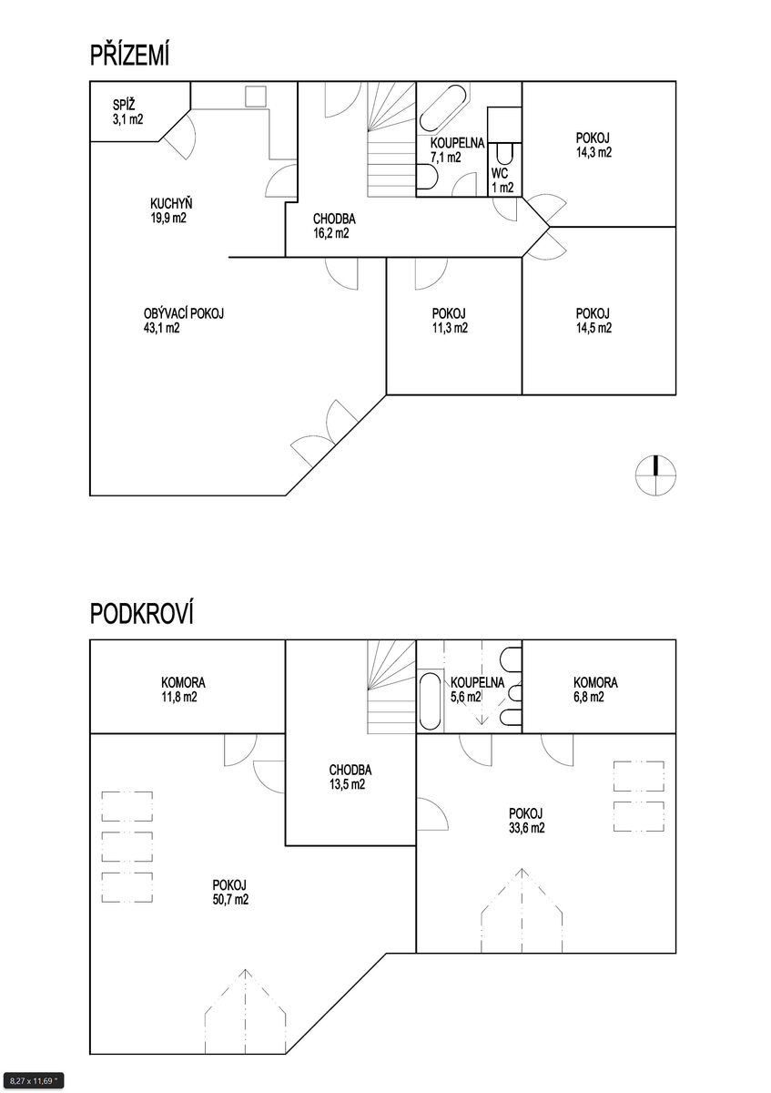
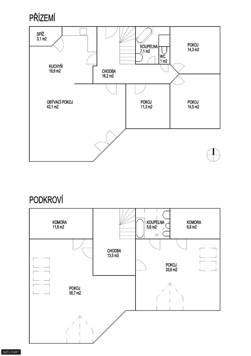
Prostorný dům stojí na velkorysém pozemku 1150 m2. Je samostatný, dvoupodlažní, o dispozici 6+kk, velikosti 252 m2 + terasa + garáž 33 m2. Nachází se v klidné části obce Kunice - Vidovice, okres Praha - Východ, v ulici Járy Cimrmana. Součástí pozemku je krásná, udržovaná zahrada o velikosti 955 m2. Orientace domu je na slunný západ - 5 pokojů, terasa je na jih, kuchyně, spíž a koupelny jsou na sever a 1 ložnice je na východ. V přízemí domu se nachází vstupní chodba, obývací pokoj s jídelnou, kuchyně, prostorná spíž, 3 neprůchozí ložnice, hlavní koupelna s umývadlem, rohovou vanou i sprchovým koutem a samostatné WC. V patře jsou 2 velké samostatné pokoje - jeden se vstupem do vlastní samostatné šatny a do vlastní koupelny (vana, umývadlo, WC, pisoár) a druhý prostorný pokoj se vstupem do samostatné šatny.
Dům je částečně zařízený nábytkem - jedná se převážně o úložné prostory, stoly a cca 3 postele. Kuchyňská linka zn. Sýkora je vybavena novou indukční varnou deskou, el. troubou, digestoří, myčkou a malou lednicí. V domě byly použity jen kvalitní a drahé materiály - dubové dřevěné podlahy, keramická dlažba, obklady v hlavní koupelně od firmy Villeroy & Boch, skříně, dveře, zárubně a schody jsou výhradně jen z masivu, kvalitní dřevěná eurookna TWW, funkční kachlová kamna v kuchyni z Kamnářství Jan Janoušek, nové osvětlení v obývacím pokoji a kuchyni, nejtišší tepelné čerpadlo na trhu Acond Pro R, centrální vysavač Electrolux, elektronický zabezpečovací systém Rokonet Orbit-Pro apod. Na pozemku je vlastní studna vhodná k zalévání zahrady a závlaha Hunter Pro - C. Kanalizace je obecní. Parkování je možné v prostorné garáži i na pozemku za bránou, která je kovaná, s el. pohony a na dálkové ovládání.
Dům se nachází ve velmi klidné části obce. Díky velkorysému pozemku a sousednímu pozemku, který není užíván a náleží stejnému majiteli, je zaručené maximální soukromí a klid. V okolí je krásná příroda - pro milovníky turistiky a cyklosportu ideální. Poblíž domu je možné se napojit na cyklotrasu s příznačným názvem Krajem Josefa Lady.
Obec Kunice - Vidovice se nachází 10 km od Říčan. Napojení na D1 je necelých 6 km od domu a do centra Prahy je to pouhých 20 min autem. Cca 3 min chůze je zastávka busu č. 461 s přímým spojením na 5 km vzdálené vlakové nádraží Strančice, odkud jezdí přímé spoje do několika částí Prahy až na samotné Hlavní nádraží (34 min).
Dům je ve výborném technickém stavu, je kompletně nově vymalován a připraven k okamžitému nastěhování bez nutnosti dalších investic.
Cena:
18 600 000 Kč
Poznámka:
Neplatíte provizi. Nízké měsíční náklady - cca 300 Kč/1 osoba + el. energie cca 4.000 Kč/měsíc
Pomocí naší hypoteční kalkulačky si můžete udělat orientační představu o výši měsíčních splátek hypotéky. O vše ostatní se pak postaráme my ve spolupráci s našimi obchodními partnery.
75 306 Kč
* Odhadovaná měsíční splátka vychází z výše úvěru Kč s pevnou úrokovou sazbou % po celou dobu trvání úvěru.
Uživatel serveru RealityMIX.cz (dále jen „Server“) dostupného na internetové adrese (URL) https://www.realitymix.cz, který provozuje společnost DALTEN media s.r.o., se sídlem Na Harfě 916/9a, Praha 9, 190 00, IČO: 271 35 306 (dále jen „Správce“) jako provozovateli tohoto Serveru uděluje svůj výslovný souhlas v souladu s ustanovením § 5 zákona č. 101/2000 Sb. O ochraně osobních údajů a o změně některých zákonů, v platném znění (dále jen „zákon o ochraně osobních údajů“), se zpracováním uživatelem poskytnutých osobních údajů a dalších dat.
Uživatel poskytuje Správci osobní údaje v rozsahu: jméno, příjmení, e-mailová adresa, telefonický kontakt a další data, a to z důvodu projeveného zájmu o nemovitost, kde prostřednictvím služby Serveru Správce osloví Uživatel inzerenta uvedeného v detailu
nemovitosti - KUZO Partners s.r.o. (IČ 27602974) se zájmem o jeho služby.
Uživatel tyto osobní údaje poskytuje dobrovolně a bere na vědomí, že součástí služeb Správce, které Správce Uživateli poskytuje, je vyhledání všech Uživateli vyhovujících (dle parametrů - cena, typ nemovitosti, lokalita atd.) nemovitostí. Správce za tímto účelem provozuje aplikace Hlídací pes a newsletter. Tyto služby je možné z každého zaslaného emailu odhlásit. Souhlas se zpracováním osobních údajů Uživatel poskytuje Správci na dobu neurčitou s tím, že svůj udělený souhlas může Uživatel kdykoliv na drese správce info@realitymix.cz odvolat. Správce garantuje Uživateli i další práva uvedené v ustanovení §11 a §21 zákoba č. 101/200 Sb. Ve znění pozdějších předpisů.
Více informací o zpracování údajů získáte zde (realitymix.cz/zasady-ochrany-osobnich-udaju)